Výnos až 8,5%, investiční dům v srdci Šumavy. KORUNA , o výměře 658m2. V Sušici na náměstí.
Dům s příběhem. Stabilní výnos až 8,5% ročně podle využití. . Luxusní prostor k využití.
V samém srdci malebné Sušice, na jejím historickém náměstí, stojí budova, kterou místní dobře znají – dům Koruna. Nese v sobě odkaz doby, kdy byl obchod a bydlení úzce propojeno s centrem města. A dnes?
Koruna je výjimečný dům, který byl v minulosti kompletně zbourán a v roce 2003 znovu postaven jako moderní víceúčelový objekt s respektem k původnímu charakteru místa.
V roce 2014 byla dokončena i podkrovní bytová jednotka – luxusní byt 3+kk s galerií, který může sloužit k bydlení, podnikání, nebo krátkodobému ubytování na špičkové úrovni.
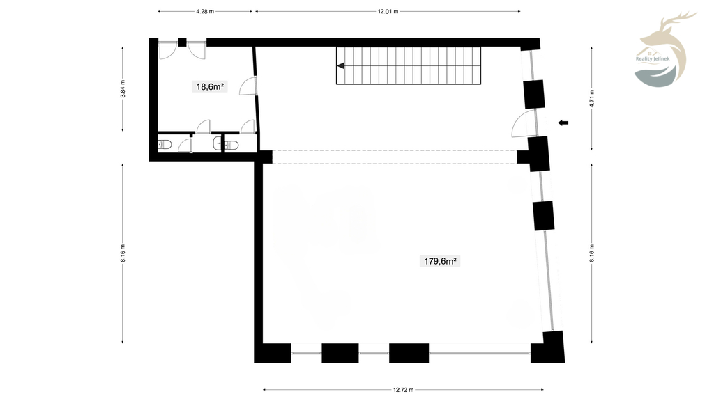
Celková výměra domu činí 628,52 m² rozdělených do tří plnohodnotných podlaží:
1. NP (202,10 m²) – 2. NP (190,40 m²) zavedený obchodní prostor, aktuálně dlouhodobě pronajatý silnému nájemci z oblasti maloobchodu
3. NP (236,02 m²) – luxusní byt 4+kk s velkorysým prostorem, galerií a výjimečnou atmosférou
K domu náleží 1/14 podílu na uzavřeném dvoře a parkovišti, které jsou v této lokalitě obrovskou výhodou.
Proč právě Sušice?
Sušice je žádaná lokalita po celý rok – brána Šumavy, oblíbený výchozí bod turistů, cyklistů, rodin i seniorů.
Historické centrum žije, lidé sem jezdí nejen na dovolenou, ale i za službami, gastro scénou a nákupy.
A právě dům Koruna je součástí tohoto živého organismu – přímo na náměstí, na místě s vysokou průchodností a viditelností. Pro investora, který umí spojit výnos s lokalitou, jde o mimořádnou příležitost.
Uživatel serveru RealityMIX.cz (dále jen „Server“) dostupného na internetové adrese (URL) https://www.realitymix.cz, který provozuje společnost DALTEN media s.r.o., se sídlem Na Harfě 916/9a, Praha 9, 190 00, IČO: 271 35 306 (dále jen „Správce“) jako provozovateli tohoto Serveru uděluje svůj výslovný souhlas v souladu s ustanovením § 5 zákona č. 101/2000 Sb. O ochraně osobních údajů a o změně některých zákonů, v platném znění (dále jen „zákon o ochraně osobních údajů“), se zpracováním uživatelem poskytnutých osobních údajů a dalších dat.
Uživatel poskytuje Správci osobní údaje v rozsahu: jméno, příjmení, e-mailová adresa, telefonický kontakt a další data, a to z důvodu projeveného zájmu o nemovitost, kde prostřednictvím služby Serveru Správce osloví Uživatel inzerenta uvedeného v detailu
nemovitosti - Marcel Jelínek (IČ 69248621) se zájmem o jeho služby.
Uživatel tyto osobní údaje poskytuje dobrovolně a bere na vědomí, že součástí služeb Správce, které Správce Uživateli poskytuje, je vyhledání všech Uživateli vyhovujících (dle parametrů - cena, typ nemovitosti, lokalita atd.) nemovitostí. Správce za tímto účelem provozuje aplikace Hlídací pes a newsletter. Tyto služby je možné z každého zaslaného emailu odhlásit. Souhlas se zpracováním osobních údajů Uživatel poskytuje Správci na dobu neurčitou s tím, že svůj udělený souhlas může Uživatel kdykoliv na drese správce info@realitymix.cz odvolat. Správce garantuje Uživateli i další práva uvedené v ustanovení §11 a §21 zákoba č. 101/200 Sb. Ve znění pozdějších předpisů.
Více informací o zpracování údajů získáte zde (realitymix.cz/zasady-ochrany-osobnich-udaju)