Prodej bytu 3+1, 67 m², Na Sídlišti, Světlá nad Sázavou
Hledáte byt po kompletní rekonstrukci, kde už stačí jen převzít klíče, nastěhovat se a neřešit žádné další investice? Máme pro vás byt 3+1 ve Světlé nad Sázavou, který se nachází v ulici Na Sídlišti, jen kousek od centra města.
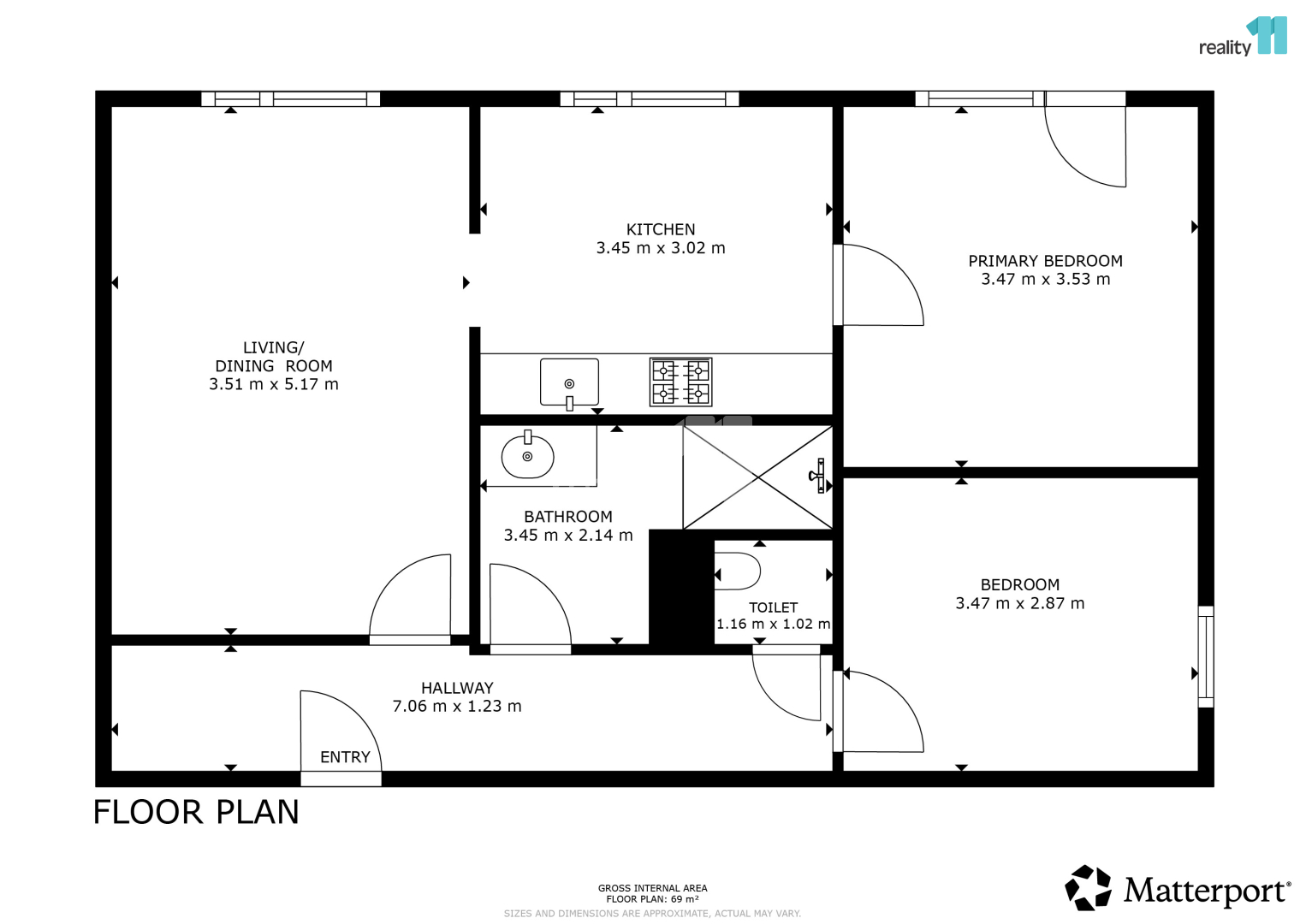
Byt nabízí užitnou plochu 67 m² a bonusem je balkón o velikosti 4 m², ideální místo pro ranní kávu nebo chvíle odpočinku. Praktickým benefitem je také komora o velikosti 2 m² umístěná mimo bytovou jednotku, která poskytuje další prostor pro uskladnění věcí.
Dispozičně je byt řešen jako 3+1 a nabízí obývací pokoj, ložnici, kuchyni, další pokoj, koupelnu, samostatné WC a prostornou chodbu, která poskytuje dostatek prostoru pro umístění úložných prostor.
V rámci rekonstrukce došlo k celkové výměně elektroinstalace a vodovodních rozvodů. Byt má nové omítky a všude byla položena nová podlahová krytina. Díky tomu nabízí bydlení bez nutnosti dalších investic.
Velkou výhodou je také samotná lokalita. Ulice Na Sídlišti ve Světlé nad Sázavou patří mezi vyhledávané části města – v docházkové vzdálenosti najdete obchody, školy, školky i další občanskou vybavenost a zároveň jste jen pár minut chůze od centra.
K bytu je k dispozici také 3D virtuální prohlídka, kterou vám na vyžádání velmi rádi zašleme.
Pokud vás tato nabídka zaujala, neváhejte mě kontaktovat pro více informací nebo domluvení osobní prohlídky. Budu se na vás těšit při společném setkání. Ev. číslo: 28124.
Pomocí naší hypoteční kalkulačky si můžete udělat orientační představu o výši měsíčních splátek hypotéky. O vše ostatní se pak postaráme my ve spolupráci s našimi obchodními partnery.
20 203 Kč
* Odhadovaná měsíční splátka vychází z výše úvěru Kč s pevnou úrokovou sazbou % po celou dobu trvání úvěru.
Prodáváte nemovitost a potřebujete zjistit její reálnou hodnotu?
Uživatel serveru RealityMIX.cz (dále jen „Server“) dostupného na internetové adrese (URL) https://www.realitymix.cz, který provozuje společnost DALTEN media s.r.o., se sídlem Na Harfě 916/9a, Praha 9, 190 00, IČO: 271 35 306 (dále jen „Správce“) jako provozovateli tohoto Serveru uděluje svůj výslovný souhlas v souladu s ustanovením § 5 zákona č. 101/2000 Sb. O ochraně osobních údajů a o změně některých zákonů, v platném znění (dále jen „zákon o ochraně osobních údajů“), se zpracováním uživatelem poskytnutých osobních údajů a dalších dat.
Uživatel poskytuje Správci osobní údaje v rozsahu: jméno, příjmení, e-mailová adresa, telefonický kontakt a další data, a to z důvodu projeveného zájmu o nemovitost, kde prostřednictvím služby Serveru Správce osloví Uživatel inzerenta uvedeného v detailu
nemovitosti - Reality 11 (IČ 29132886) se zájmem o jeho služby. Tato společnost je součástí seskupení/sítě/franšízového modelu realitních kanceláří, jejich seznam můžete zobrazit kliknutím na tento odkaz.
Dumrealit.cz (IČ 00537861) , HOME 4 PEOPLE (IČ 29132886) , Reality 11 (IČ 29132886) , REAL ESTATE CZECH REPUBLIC a.s. (IČ 29132886) , Národní Realitní Holding a.s. (IČ 02918897)
Uživatel tyto osobní údaje poskytuje dobrovolně a bere na vědomí, že součástí služeb Správce, které Správce Uživateli poskytuje, je vyhledání všech Uživateli vyhovujících (dle parametrů - cena, typ nemovitosti, lokalita atd.) nemovitostí. Správce za tímto účelem provozuje aplikace Hlídací pes a newsletter. Tyto služby je možné z každého zaslaného emailu odhlásit. Souhlas se zpracováním osobních údajů Uživatel poskytuje Správci na dobu neurčitou s tím, že svůj udělený souhlas může Uživatel kdykoliv na drese správce info@realitymix.cz odvolat. Správce garantuje Uživateli i další práva uvedené v ustanovení §11 a §21 zákoba č. 101/200 Sb. Ve znění pozdějších předpisů.
Více informací o zpracování údajů získáte zde (realitymix.cz/zasady-ochrany-osobnich-udaju)