Název: Statek U Dubu
Místo: obec Svojetín, okres Rakovník, cca 3 km od dálnice D6 (Praha - Karlovy Vary)
Doba jízdy: 30 minut (Praha – Svojetín)
Rozloha pozemku: cca 4800 m2
Stavební povolení: Výst/Ve – MÚ Rakovník
Vydáno dne 13. 3. 2026
Vybavení areálu: Vyhřívaný bazén se slanou vodou, rybník, tenisový kurt (antuka), vířivka, sauna, parkoviště, penzion, hlavní dům, dřevostavba u rybníka
Prostory a kapacity:
- 8 pokojů k ubytování (17 osob)
- Společenský sál (cca 80 osob)
- Rytířský společenský sál (cca 20 osob + bar)
- Hospoda (cca 20 osob + kuchyně)
- Byt (2 pokoje+koupelna a WC)
- Byt (3 pokoje+WC)
- Dřevostavba u rybníka (2 pokoje – 3 až 4 osoby)
Stávající podlahová plocha - cca 800 m2.
Hlavní budova je registrovaná jako rodinný dům, vedlejší budova jako ubytovací zařízení. Možnost financování koupě privátní i podnikatelskou půjčkou.
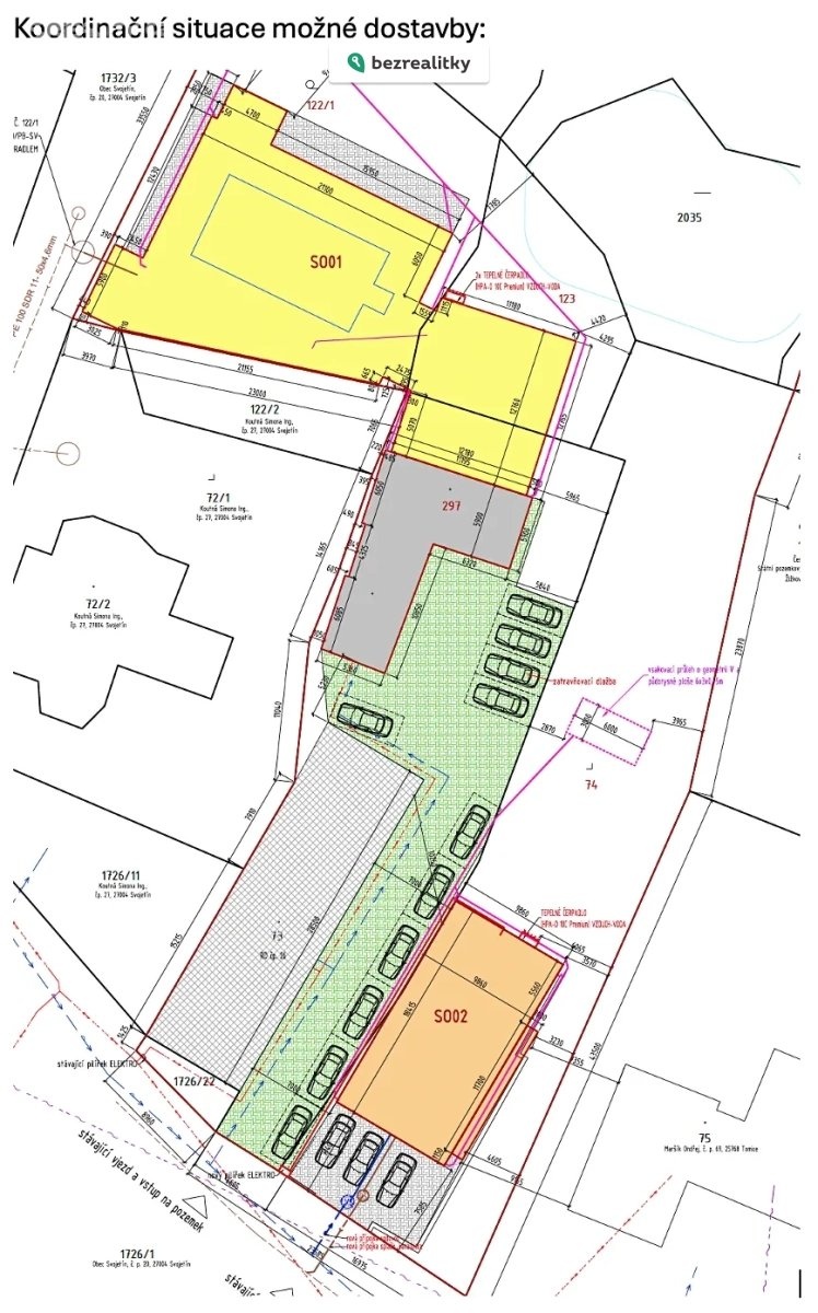
Parametry možné dostavby dle vydaného SP:
- Přístavba penzionu - zastavěná plocha 518 m2 (2 patra)
- Novostavba rodinného domu - zastavěná plocha 193 m2 (2 patra)
- Kanalizační přípojka Svojetín č.p. 26
Podlahová plocha dostaveb – cca 1400 m2.
Prodejní cena: 23 000 000,- CZK
Možnost využití:
- Ubytovací zařízení
- Dostavba a pronájem bytů
- Rekreační zařízení
- Zastřešení bazénu a wellness
- Změna na DPS
- Nadstandardní rodinné vícegenerační bydlení
Realitní zprostředkovatelé, nevolejte a nepište nám, pouze v případě zájmu o prohlídku objektu s konkrétním identifikovaným klientem. Jsme ochotni vyplatit provizi, ale nemáme zájem o exkluzivní distribuci a nemáme čas na realitní turistiku.
V případě efektivního jednání je decentní rozprava o ceně možná.
Děkujeme za pochopení. Tato nemovitost je určena výhradně přímým zájemcům o koupi. Na inzerát můžete také reagovat přímo na webu Bezrealitky.
Pomocí naší hypoteční kalkulačky si můžete udělat orientační představu o výši měsíčních splátek hypotéky. O vše ostatní se pak postaráme my ve spolupráci s našimi obchodními partnery.
93 121 Kč
* Odhadovaná měsíční splátka vychází z výše úvěru Kč s pevnou úrokovou sazbou % po celou dobu trvání úvěru.
reklama
reklama
Mapa
* Umístění na mapě je na základě GPS informací dodaných realitní kanceláří.
* Pozice na mapě je pouze orientační.
Souhlas se zpracováním osobních údajů
Uživatel serveru RealityMIX.cz (dále jen „Server“) dostupného na internetové adrese (URL) https://www.realitymix.cz, který provozuje společnost DALTEN media s.r.o., se sídlem Na Harfě 916/9a, Praha 9, 190 00, IČO: 271 35 306 (dále jen „Správce“) jako provozovateli tohoto Serveru uděluje svůj výslovný souhlas v souladu s ustanovením § 5 zákona č. 101/2000 Sb. O ochraně osobních údajů a o změně některých zákonů, v platném znění (dále jen „zákon o ochraně osobních údajů“), se zpracováním uživatelem poskytnutých osobních údajů a dalších dat.
Uživatel poskytuje Správci osobní údaje v rozsahu: jméno, příjmení, e-mailová adresa, telefonický kontakt a další data, a to z důvodu projeveného zájmu o nemovitost, kde prostřednictvím služby Serveru Správce osloví Uživatel inzerenta uvedeného v detailu
nemovitosti - Bezrealitky s.r.o. (IČ 08063168) se zájmem o jeho služby.
Uživatel tyto osobní údaje poskytuje dobrovolně a bere na vědomí, že součástí služeb Správce, které Správce Uživateli poskytuje, je vyhledání všech Uživateli vyhovujících (dle parametrů - cena, typ nemovitosti, lokalita atd.) nemovitostí. Správce za tímto účelem provozuje aplikace Hlídací pes a newsletter. Tyto služby je možné z každého zaslaného emailu odhlásit. Souhlas se zpracováním osobních údajů Uživatel poskytuje Správci na dobu neurčitou s tím, že svůj udělený souhlas může Uživatel kdykoliv na drese správce info@realitymix.cz odvolat. Správce garantuje Uživateli i další práva uvedené v ustanovení §11 a §21 zákoba č. 101/200 Sb. Ve znění pozdějších předpisů.
Více informací o zpracování údajů získáte zde (realitymix.cz/zasady-ochrany-osobnich-udaju)