Prodej bytu 3+1 83m and sup2;s balkonem, Tábor - Sokolovská
Byt 3+1 v panelovém domě, po celkové revitalizaci, v ulici Sokolovská. Jde o velmi pěkné místo k bydlení, před domem dětské hřiště, přes ulici škola a školka, v blízkosti také tenisová hala a zimní stadion.
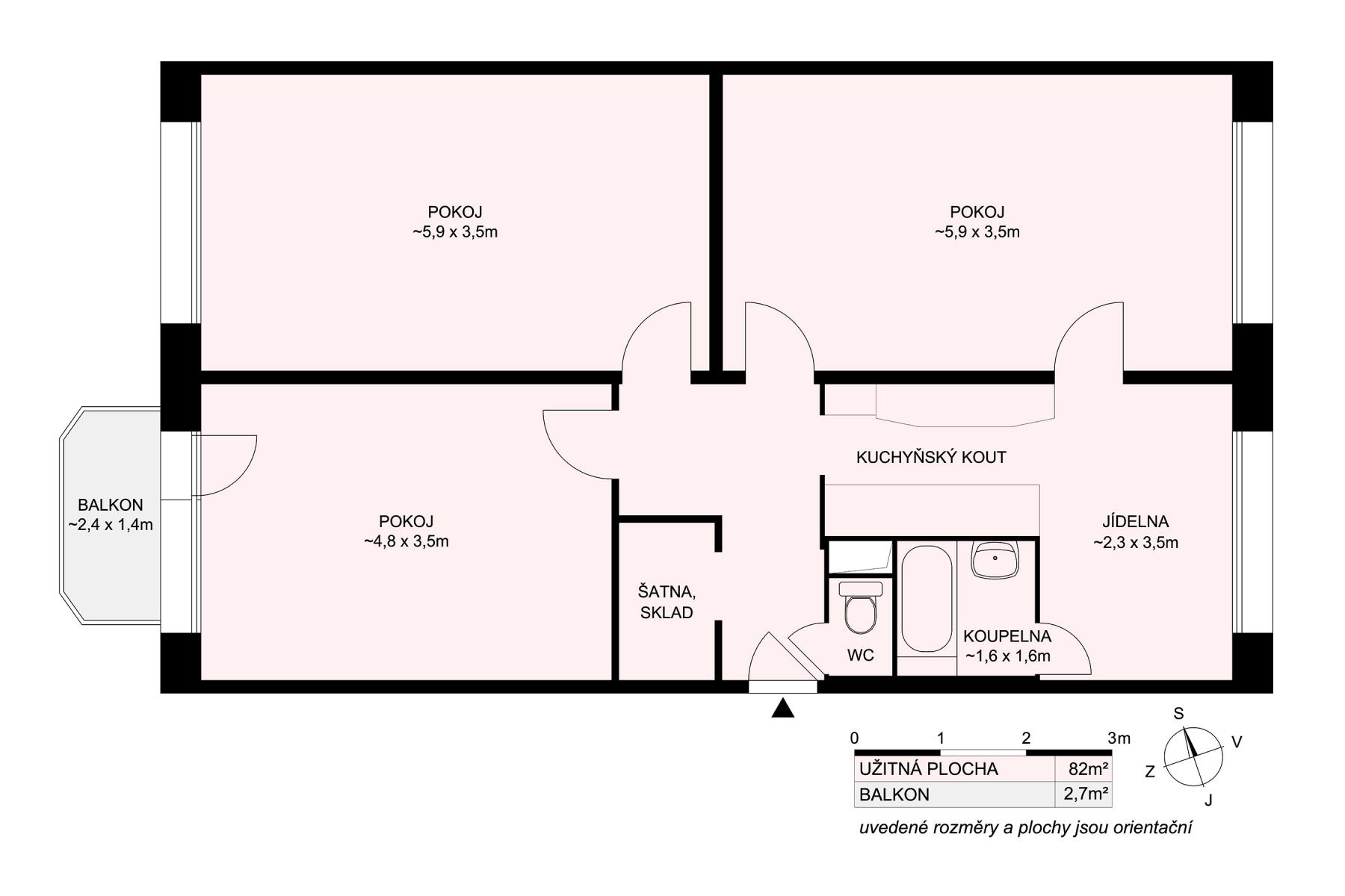
Byt má všechny pokoje neprůchozí a velkou výhodou je, že jej můžete zrekonstruovat naprosto dle vašich potřeb.
Prohlédněte si virtuální prohlídku, umístěnou ve fotogalerii.
Byt je balkonem orientovaný na jih, dům i lokalita jsou klidné. Umístění je ve čtvrtém patře, výtah je v plánu.
Byt je vytápěn ústředním topením, okna plastová. Na podlahách lino a koberce, v koupelně dlažba.
Byt je veliký dle prohlášení vlastníka 83,49 m and sup2;, jednotlivé rozlohy místností a příslušenství:
kuchyně 12.44 m2
pokoj 20.44 m2
pokoj 20.44 m2
pokoj 16.53 m2
balkon 1.22 m2
koupelna 2.70 m2
WC 1.43 m2
předsíň 5.72 m2
šatna 2.18 m2
sklep 1.61 m
V současné době jsou celkové náklady (vyjma elektřiny) 5.026,-Kč/měsíčně. Z toho fond oprav 1.638,-Kč.
Energetický štítek nebyl zatím dodán, uvádím tedy G. Bude doplněno.
Uvedené výměry jsou orientační. Veškeré zveřejněné údaje obsažené v tomto inzerátu mají pouze informativní charakter a nejsou nabídkou ve smyslu § 1731 nebo § 1732 občanského zákoníku, ani se nejedná o veřejný příslib dle § 1733 občanského zákoníku.
Vybraná fota obsahují vizualizaci možného stavu.
V případě více zájemců bude nemovitost prodána nejlepší nabídce a majitel si vyhrazuje právo vybrat kupujícího na základě jim zvolených kritérií.
Pomocí naší hypoteční kalkulačky si můžete udělat orientační představu o výši měsíčních splátek hypotéky. O vše ostatní se pak postaráme my ve spolupráci s našimi obchodními partnery.
16 964 Kč
* Odhadovaná měsíční splátka vychází z výše úvěru Kč s pevnou úrokovou sazbou % po celou dobu trvání úvěru.
Prodáváte nemovitost a potřebujete zjistit její reálnou hodnotu?
Uživatel serveru RealityMIX.cz (dále jen „Server“) dostupného na internetové adrese (URL) https://www.realitymix.cz, který provozuje společnost DALTEN media s.r.o., se sídlem Na Harfě 916/9a, Praha 9, 190 00, IČO: 271 35 306 (dále jen „Správce“) jako provozovateli tohoto Serveru uděluje svůj výslovný souhlas v souladu s ustanovením § 5 zákona č. 101/2000 Sb. O ochraně osobních údajů a o změně některých zákonů, v platném znění (dále jen „zákon o ochraně osobních údajů“), se zpracováním uživatelem poskytnutých osobních údajů a dalších dat.
Uživatel poskytuje Správci osobní údaje v rozsahu: jméno, příjmení, e-mailová adresa, telefonický kontakt a další data, a to z důvodu projeveného zájmu o nemovitost, kde prostřednictvím služby Serveru Správce osloví Uživatel inzerenta uvedeného v detailu
nemovitosti - QARA s.r.o. (IČ 01740113) se zájmem o jeho služby. Tato společnost je součástí seskupení/sítě/franšízového modelu realitních kanceláří, jejich seznam můžete zobrazit kliknutím na tento odkaz.
QARA s.r.o. Ostrava (IČ 01740113) , QARA s.r.o. Brno (IČ 01740113) , QARA s.r.o. (IČ 01740113)
Uživatel tyto osobní údaje poskytuje dobrovolně a bere na vědomí, že součástí služeb Správce, které Správce Uživateli poskytuje, je vyhledání všech Uživateli vyhovujících (dle parametrů - cena, typ nemovitosti, lokalita atd.) nemovitostí. Správce za tímto účelem provozuje aplikace Hlídací pes a newsletter. Tyto služby je možné z každého zaslaného emailu odhlásit. Souhlas se zpracováním osobních údajů Uživatel poskytuje Správci na dobu neurčitou s tím, že svůj udělený souhlas může Uživatel kdykoliv na drese správce info@realitymix.cz odvolat. Správce garantuje Uživateli i další práva uvedené v ustanovení §11 a §21 zákoba č. 101/200 Sb. Ve znění pozdějších předpisů.
Více informací o zpracování údajů získáte zde (realitymix.cz/zasady-ochrany-osobnich-udaju)