Výjimečný dům na polosamotě s vlastním lesem, loukou a potokem – 6 597 m² soukromí
Výjimečný dům na polosamotě s vlastním lesem, loukou a potokem – 6 597 m² soukromí
Ticho má svou hodnotu. A pokud patříte mezi ty, kdo v něm slyší víc… čtěte dál.
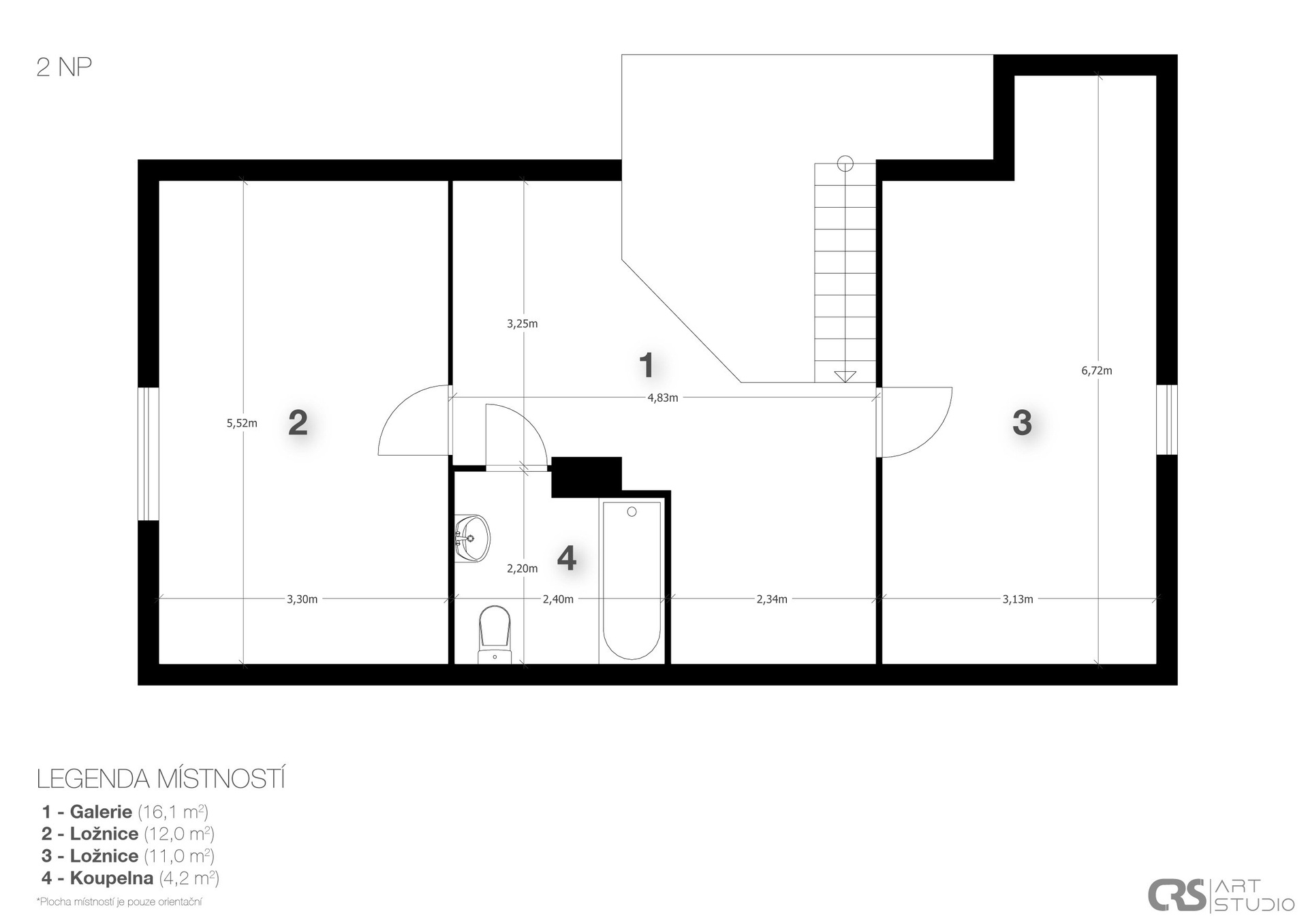
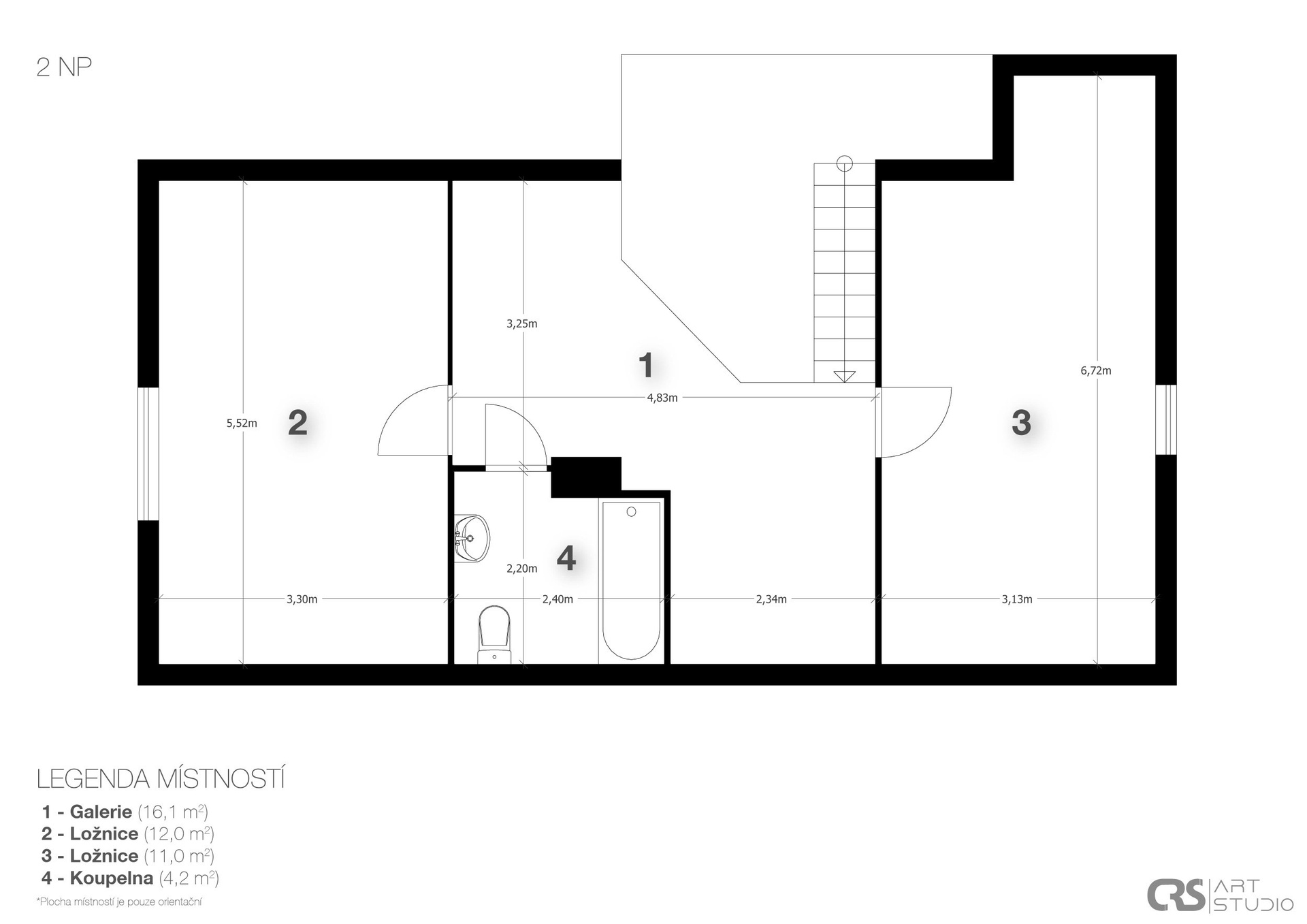
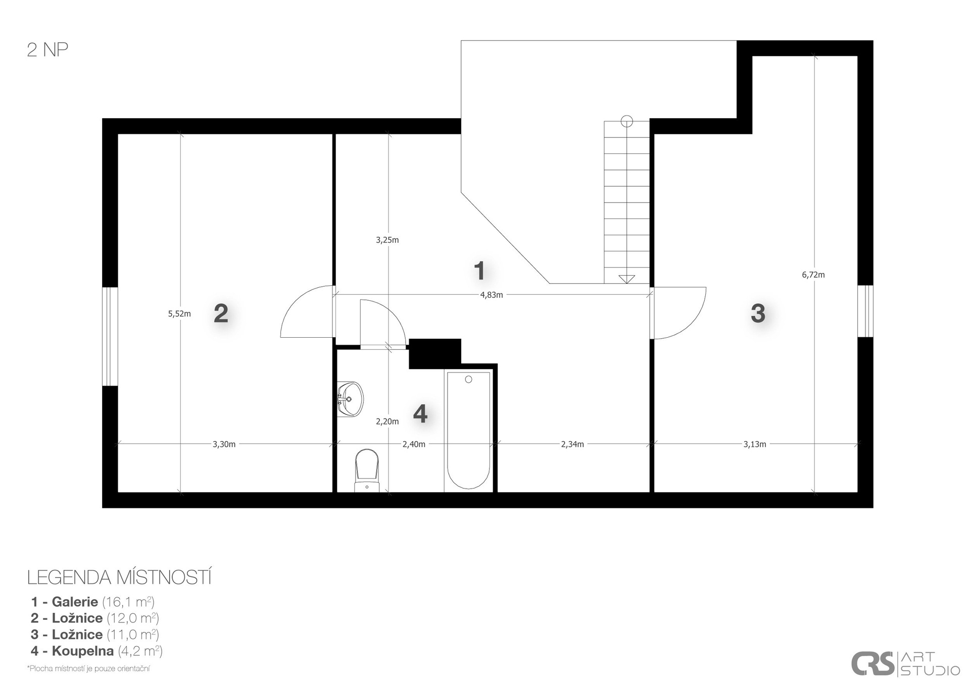
Na prodej nabízíme moderní zděný dům (4+KK, 107 m² užitné plochy, zastavěná plocha 156 m², pozemek 6 441 m², kolaudace 2013) zasazený do vlastního přírodního areálu. Pozemkem protéká potok, který přirozeně odděluje zahradu a louku od vlastního lesa a vytváří naprosté soukromí a klid.
Dům, který Vás nebude omezovat, má tyto přednosti:
* Polosamota, příjezd po vlastní lesní cestě
* Vlastní les, louka a zahrada – ideální pro soběstačnost či chov zvířat
* Zimní zahrada + terasa 18 m² s výhledem do lesa
* Světlý otevřený obytný prostor s krbem a podlahovým topením
* 3 ložnice, 2 koupelny + sprcha s WC se samostatným vstupem
* Vlastní studna (pitná voda)
* Vytápění: elektrický kotel + krbová kamna s výměníkem
Potenciál využití:
* Rodinné bydlení v naprostém klidu
* Farmaření, chov koní, včelaření, pěstování
* Wellness, terapie, jóga, retreaty
* Ateliér nebo podnikání z domova
* Možnost umístění tiny house či relaxačních modulů
Skvělá dostupnost:
* Tábor – cca 10 minut autem
* Vlaková zastávka 1 km
* Autobus u příjezdu
Nemovitost, která spojuje absolutní klid přírody s velmi dobrou dostupností a širokými možnostmi využití. Ideální pro ty, kteří hledají svobodu, soukromí a prostor pro vlastní životní styl i podnikání.
Cena:
11 690 000 Kč
Poznámka:
Při rychlém průběhu prodeje cena k jednání., včetně DPH, včetně poplatků, včetně provize, včetně prá
Pomocí naší hypoteční kalkulačky si můžete udělat orientační představu o výši měsíčních splátek hypotéky. O vše ostatní se pak postaráme my ve spolupráci s našimi obchodními partnery.
47 330 Kč
* Odhadovaná měsíční splátka vychází z výše úvěru Kč s pevnou úrokovou sazbou % po celou dobu trvání úvěru.
Uživatel serveru RealityMIX.cz (dále jen „Server“) dostupného na internetové adrese (URL) https://www.realitymix.cz, který provozuje společnost DALTEN media s.r.o., se sídlem Na Harfě 916/9a, Praha 9, 190 00, IČO: 271 35 306 (dále jen „Správce“) jako provozovateli tohoto Serveru uděluje svůj výslovný souhlas v souladu s ustanovením § 5 zákona č. 101/2000 Sb. O ochraně osobních údajů a o změně některých zákonů, v platném znění (dále jen „zákon o ochraně osobních údajů“), se zpracováním uživatelem poskytnutých osobních údajů a dalších dat.
Uživatel poskytuje Správci osobní údaje v rozsahu: jméno, příjmení, e-mailová adresa, telefonický kontakt a další data, a to z důvodu projeveného zájmu o nemovitost, kde prostřednictvím služby Serveru Správce osloví Uživatel inzerenta uvedeného v detailu
nemovitosti - Bc. Šimon Jelínek - realitní makléř (IČ 87830809) se zájmem o jeho služby.
Uživatel tyto osobní údaje poskytuje dobrovolně a bere na vědomí, že součástí služeb Správce, které Správce Uživateli poskytuje, je vyhledání všech Uživateli vyhovujících (dle parametrů - cena, typ nemovitosti, lokalita atd.) nemovitostí. Správce za tímto účelem provozuje aplikace Hlídací pes a newsletter. Tyto služby je možné z každého zaslaného emailu odhlásit. Souhlas se zpracováním osobních údajů Uživatel poskytuje Správci na dobu neurčitou s tím, že svůj udělený souhlas může Uživatel kdykoliv na drese správce info@realitymix.cz odvolat. Správce garantuje Uživateli i další práva uvedené v ustanovení §11 a §21 zákoba č. 101/200 Sb. Ve znění pozdějších předpisů.
Více informací o zpracování údajů získáte zde (realitymix.cz/zasady-ochrany-osobnich-udaju)