Prodej dvougeneračního domu 290 m2, Tachlovice, Praha - Západ
Nabízíme k prodeji zděný dvou generační rodinný dům o obytné ploše 290 m2 s dalšími okolními stavbami a s krásným pozemkem 1297 m2, nacházející se žádané lokalitě v okrese Praha Západ v obci Tachlovice, pouhých 16 km jihozápadně od centra Prahy.
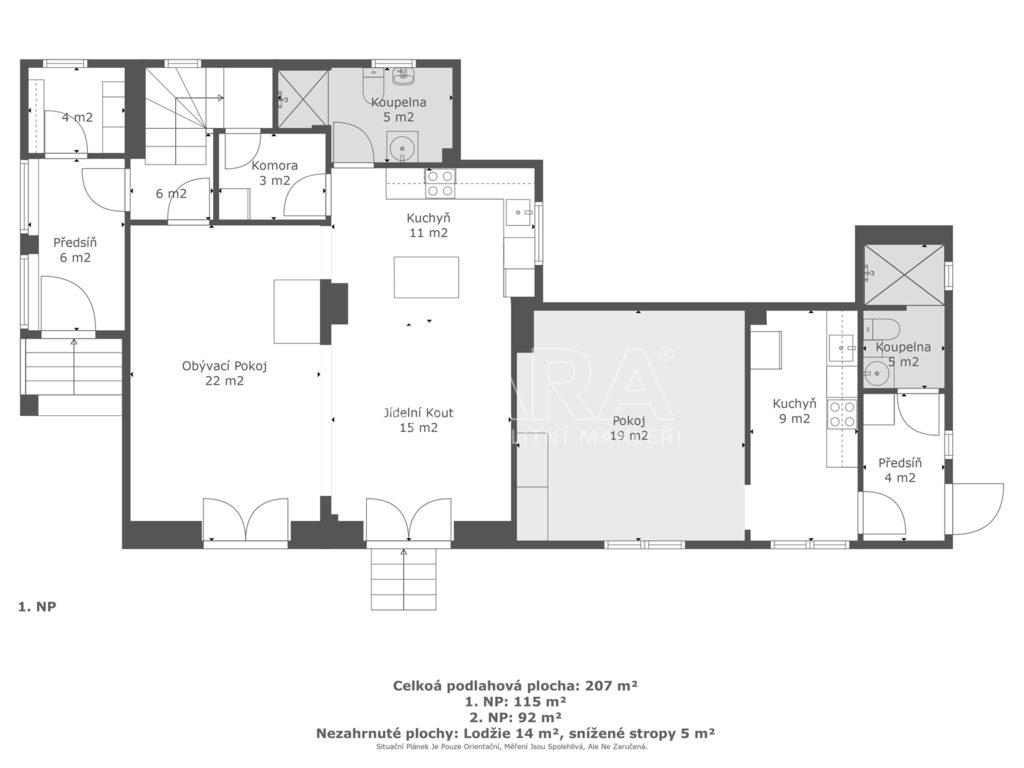
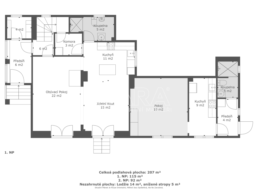
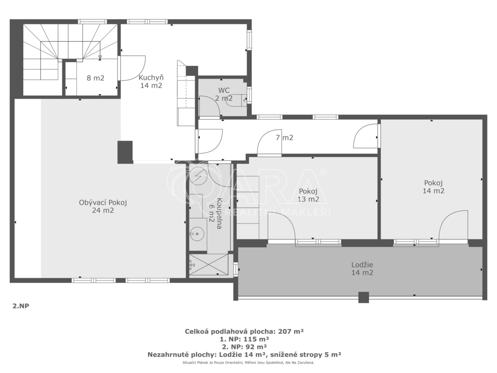
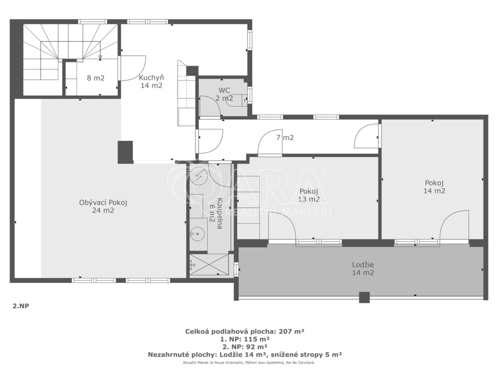
V domě se nacházejí dvě bytové jednotky se samostatným vchodem. Dům je velmi dobře a účelně navržen ke komfortnímu bydlení i odpočinku. První bytová jednotka je o dispozici 2+KK s koupelnou, toaletou, vstupní halou a nachází se v 1 NP domu. Druhá část domu je o dispozici 5+KK se dvěma lodžiemi, dvěma koupelnami s toaletou. Celé přízemí domu je po kompletní rekonstrukci, včetně nově nainstalované moderní kuchyňské linky s vestavěnými spotřebiči. V rámci rekonstrukce byly také v celém domě vyměněny okna za plastové, kompletně nová elektro instalace, rozvody vody, nový plynový kotel s rozvody a radiátory. Ohřev vody zajišťuje nový bojler.
Celá nemovitost má velký potenciál. Na pozemku se nachází další více účelová zděná stavba s menší zařízenou hospůdkou se samostatným vstupem z ulice s prostornou kanceláří a sociálním zařízením. Tuto budovu lze využívat pro podnikání s vlastním zázemím, nebo zde můžete vybudovat samostatnou bytovou jednotku.
Pozemek je kompletně oplocen. Dům je napojen na veškeré inženýrské sítě.
Přístupová komunikace je obecní a zpevněná asfaltovým povrchem.
DOHODA O CENĚ MOŽNÁ.
Nemovitost se nachází ve velmi žádané lokalitě v těsné blízkosti Prahy 15 min od letiště, 20 min autobusem linka č. 310 od Metra Zličín.
V místě je výborná občanská vybavenost. V obci je základní i mateřská škola, hřiště, restaurace, obchod s potravinami, úřad a pošta. Blízké okolí nabízí široké sportovní i volnočasové aktivity.
Velmi rád vás osobně touto nemovitostí provedu, neváhejte a objednejte si prohlídku.
Pomocí naší hypoteční kalkulačky si můžete udělat orientační představu o výši měsíčních splátek hypotéky. O vše ostatní se pak postaráme my ve spolupráci s našimi obchodními partnery.
60 690 Kč
* Odhadovaná měsíční splátka vychází z výše úvěru Kč s pevnou úrokovou sazbou % po celou dobu trvání úvěru.
Uživatel serveru RealityMIX.cz (dále jen „Server“) dostupného na internetové adrese (URL) https://www.realitymix.cz, který provozuje společnost DALTEN media s.r.o., se sídlem Na Harfě 916/9a, Praha 9, 190 00, IČO: 271 35 306 (dále jen „Správce“) jako provozovateli tohoto Serveru uděluje svůj výslovný souhlas v souladu s ustanovením § 5 zákona č. 101/2000 Sb. O ochraně osobních údajů a o změně některých zákonů, v platném znění (dále jen „zákon o ochraně osobních údajů“), se zpracováním uživatelem poskytnutých osobních údajů a dalších dat.
Uživatel poskytuje Správci osobní údaje v rozsahu: jméno, příjmení, e-mailová adresa, telefonický kontakt a další data, a to z důvodu projeveného zájmu o nemovitost, kde prostřednictvím služby Serveru Správce osloví Uživatel inzerenta uvedeného v detailu
nemovitosti - QARA s.r.o. (IČ 01740113) se zájmem o jeho služby. Tato společnost je součástí seskupení/sítě/franšízového modelu realitních kanceláří, jejich seznam můžete zobrazit kliknutím na tento odkaz.
QARA s.r.o. Ostrava (IČ 01740113) , QARA s.r.o. Brno (IČ 01740113) , QARA s.r.o. (IČ 01740113)
Uživatel tyto osobní údaje poskytuje dobrovolně a bere na vědomí, že součástí služeb Správce, které Správce Uživateli poskytuje, je vyhledání všech Uživateli vyhovujících (dle parametrů - cena, typ nemovitosti, lokalita atd.) nemovitostí. Správce za tímto účelem provozuje aplikace Hlídací pes a newsletter. Tyto služby je možné z každého zaslaného emailu odhlásit. Souhlas se zpracováním osobních údajů Uživatel poskytuje Správci na dobu neurčitou s tím, že svůj udělený souhlas může Uživatel kdykoliv na drese správce info@realitymix.cz odvolat. Správce garantuje Uživateli i další práva uvedené v ustanovení §11 a §21 zákoba č. 101/200 Sb. Ve znění pozdějších předpisů.
Více informací o zpracování údajů získáte zde (realitymix.cz/zasady-ochrany-osobnich-udaju)