Pronájem suterénního prostoru určeného pro restauraci v bezprostřední blízkosti náměstí Republiky v
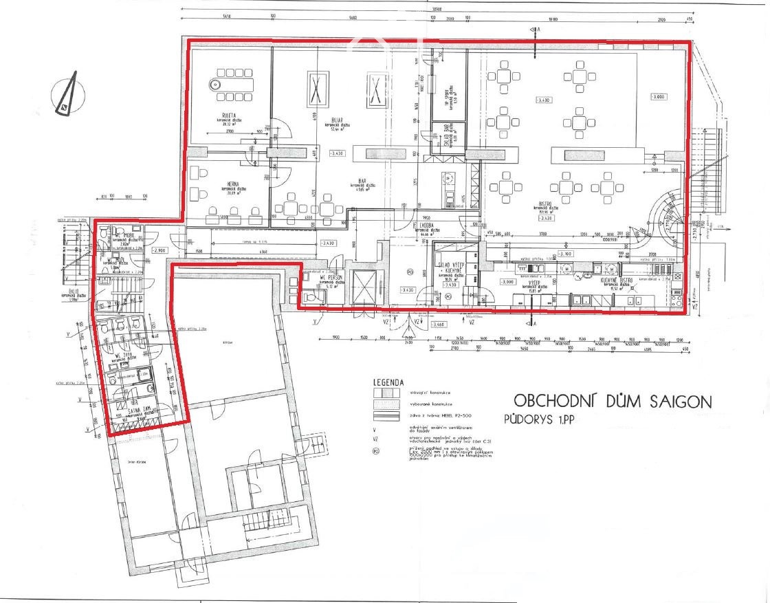
Nabízíme Vám k pronájmu prostor, ve kterém byly započaty stavební úpravy pro provoz restaurace. Celé prostory jsou o výměře 410 m2 a nacházejí se v suterénu obchodního domu v centru města Tachova v těsné blízkosti náměstí Republiky. Prostor je členěn na část kde byl původně bar a druhou část, kde majitel objektu zahájil přestavbu na restauraci. Přístup je možný z ulice K. H Borovského, kde se nachází rovněž parkoviště, či druhým vchodem z ulice B. Němcové. Prostor nabízí sociální zázemí pro zaměstnance, samostatné WC pro muže a ženy. Již byl vyzděný bar, osazena strojovna vzduchotechniky, provedena stavební příprava na kuchyni, připraveny rozvody vody, odpadů, elektřiny. Vše je patrné z fotografií. Prostory budou po dokončení vhodné na provoz restaurace, bar, kavárnu či jiného obchodního prostoru. Uvedené je možné pronajmout jako celek anebo po menších částech, na které je možné prostor rozdělit. Pro další informace kontaktujte našeho makléře.
Cena:
21 500 Kč / (za měsíc)
Poznámka:
+ režie spojené s provozem prostor dle jejich využití, kauce a provize RK
Uživatel serveru RealityMIX.cz (dále jen „Server“) dostupného na internetové adrese (URL) https://www.realitymix.cz, který provozuje společnost DALTEN media s.r.o., se sídlem Na Harfě 916/9a, Praha 9, 190 00, IČO: 271 35 306 (dále jen „Správce“) jako provozovateli tohoto Serveru uděluje svůj výslovný souhlas v souladu s ustanovením § 5 zákona č. 101/2000 Sb. O ochraně osobních údajů a o změně některých zákonů, v platném znění (dále jen „zákon o ochraně osobních údajů“), se zpracováním uživatelem poskytnutých osobních údajů a dalších dat.
Uživatel poskytuje Správci osobní údaje v rozsahu: jméno, příjmení, e-mailová adresa, telefonický kontakt a další data, a to z důvodu projeveného zájmu o nemovitost, kde prostřednictvím služby Serveru Správce osloví Uživatel inzerenta uvedeného v detailu
nemovitosti - REALITNÍ KANCELÁŘ PUBEC s.r.o. (IČ 26331004) se zájmem o jeho služby.
Uživatel tyto osobní údaje poskytuje dobrovolně a bere na vědomí, že součástí služeb Správce, které Správce Uživateli poskytuje, je vyhledání všech Uživateli vyhovujících (dle parametrů - cena, typ nemovitosti, lokalita atd.) nemovitostí. Správce za tímto účelem provozuje aplikace Hlídací pes a newsletter. Tyto služby je možné z každého zaslaného emailu odhlásit. Souhlas se zpracováním osobních údajů Uživatel poskytuje Správci na dobu neurčitou s tím, že svůj udělený souhlas může Uživatel kdykoliv na drese správce info@realitymix.cz odvolat. Správce garantuje Uživateli i další práva uvedené v ustanovení §11 a §21 zákoba č. 101/200 Sb. Ve znění pozdějších předpisů.
Více informací o zpracování údajů získáte zde (realitymix.cz/zasady-ochrany-osobnich-udaju)