Moderní rodinné sídlo v srdci Tečovic: Prostor, úspora a komfort na klíč
Hledáte dokonalé místo pro život své rodiny, kde se potkává moderní architektura s velkorysým prostorem?
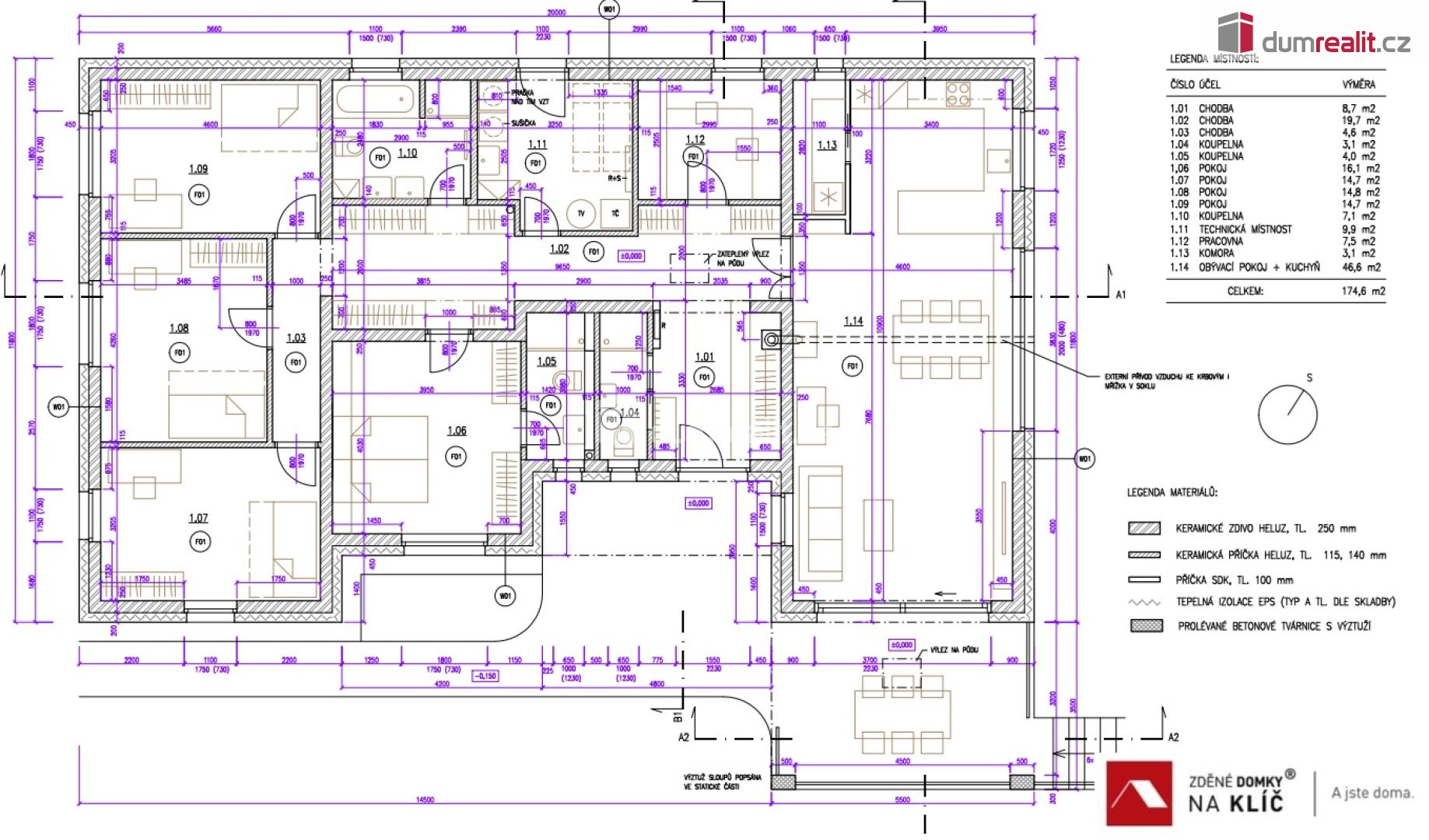
Objevte projekt nízkoenergetického domu 6+kk v oblíbené lokalitě Těčovice u Zlína.
Na slunném, rovinatém pozemku o rozloze 1 364 m² pro vás postavíme dům, který není jen stavbou, ale promyšleným domovem pro 21. století.
Čím vás tento dům nadchne?
Velkorysý prostor: Dispozice 6+kk s užitnou plochou 175 m² poskytne dostatek soukromí i pro velkou rodinu nebo domácí pracovnu.
Chytrá úspora: Díky špičkovým materiálům (Porfix) a tepelnému čerpadlu jsou měsíční náklady až 3x nižší než v běžném bytě. Šetřete tam, kde to dává smysl.
Bezstarostná realizace: Dům předáváme kompletně dokončený "na klíč" – včetně podlah, sanity, dveří a kolaudace. Stačí si vybrat kuchyni, svítidla a můžete bydlet.
Zahrada snů: Šířka pozemku 24 metrů nabízí nekonečné možnosti pro bazén, terasu nebo dětské království.
Lokalita, kterou si zamilujete
Tečovice nabízejí veškerý komfort na dosah ruky. Do Zlína dorazíte za pouhých 15 minut, přesto si doma užijete naprostý klid.
Mateřská a základní škola v docházkové vzdálenosti. Sportovní vyžití: bazén, fotbalové hřiště, dětská hřiště. Kompletní vybavenost: obchod, restaurace, pošta.
Technické standardy & Možnosti
Vytápění: Teplovodní podlahové topení a tepelné čerpadlo se zásobníkem na vodu.
Flexibilita: Chcete krb, rekuperaci, fotovoltaiku nebo venkovní žaluzie? Žádný problém. Dispozici domu rádi upravíme podle vašich přání.
Rychlost: Bydlíte do 12–13 měsíců od vydání stavebního povolení.
Cena obsahuje: Pozemek, projektovou dokumentaci, základovou desku, výstavbu na klíč, finální povrchy v interiéru i exteriéru a DPH.
Přijďte se přesvědčit na vlastní oči! Máme pro vás připravený detailní projekt a rádi vás provedeme našimi již hotovými domy, abyste si mohli sáhnout na kvalitu naší práce.
Kontaktujte našeho makléře ještě dnes a udělejte první krok ke svému novému domovu. Ev. číslo: 653942.
Cena:
Cena na vyžádání
Poznámka:
Cena včetně pozemku, projektu, stavebního povolení, výstavby domu na klíč, kolaudace a parkování
Uživatel serveru RealityMIX.cz (dále jen „Server“) dostupného na internetové adrese (URL) https://www.realitymix.cz, který provozuje společnost DALTEN media s.r.o., se sídlem Na Harfě 916/9a, Praha 9, 190 00, IČO: 271 35 306 (dále jen „Správce“) jako provozovateli tohoto Serveru uděluje svůj výslovný souhlas v souladu s ustanovením § 5 zákona č. 101/2000 Sb. O ochraně osobních údajů a o změně některých zákonů, v platném znění (dále jen „zákon o ochraně osobních údajů“), se zpracováním uživatelem poskytnutých osobních údajů a dalších dat.
Uživatel poskytuje Správci osobní údaje v rozsahu: jméno, příjmení, e-mailová adresa, telefonický kontakt a další data, a to z důvodu projeveného zájmu o nemovitost, kde prostřednictvím služby Serveru Správce osloví Uživatel inzerenta uvedeného v detailu
nemovitosti - Dumrealit.cz (IČ 00537861) se zájmem o jeho služby. Tato společnost je součástí seskupení/sítě/franšízového modelu realitních kanceláří, jejich seznam můžete zobrazit kliknutím na tento odkaz.
Dumrealit.cz (IČ 00537861) , HOME 4 PEOPLE (IČ 29132886) , Reality 11 (IČ 29132886) , REAL ESTATE CZECH REPUBLIC a.s. (IČ 29132886) , Národní Realitní Holding a.s. (IČ 02918897)
Uživatel tyto osobní údaje poskytuje dobrovolně a bere na vědomí, že součástí služeb Správce, které Správce Uživateli poskytuje, je vyhledání všech Uživateli vyhovujících (dle parametrů - cena, typ nemovitosti, lokalita atd.) nemovitostí. Správce za tímto účelem provozuje aplikace Hlídací pes a newsletter. Tyto služby je možné z každého zaslaného emailu odhlásit. Souhlas se zpracováním osobních údajů Uživatel poskytuje Správci na dobu neurčitou s tím, že svůj udělený souhlas může Uživatel kdykoliv na drese správce info@realitymix.cz odvolat. Správce garantuje Uživateli i další práva uvedené v ustanovení §11 a §21 zákoba č. 101/200 Sb. Ve znění pozdějších předpisů.
Více informací o zpracování údajů získáte zde (realitymix.cz/zasady-ochrany-osobnich-udaju)