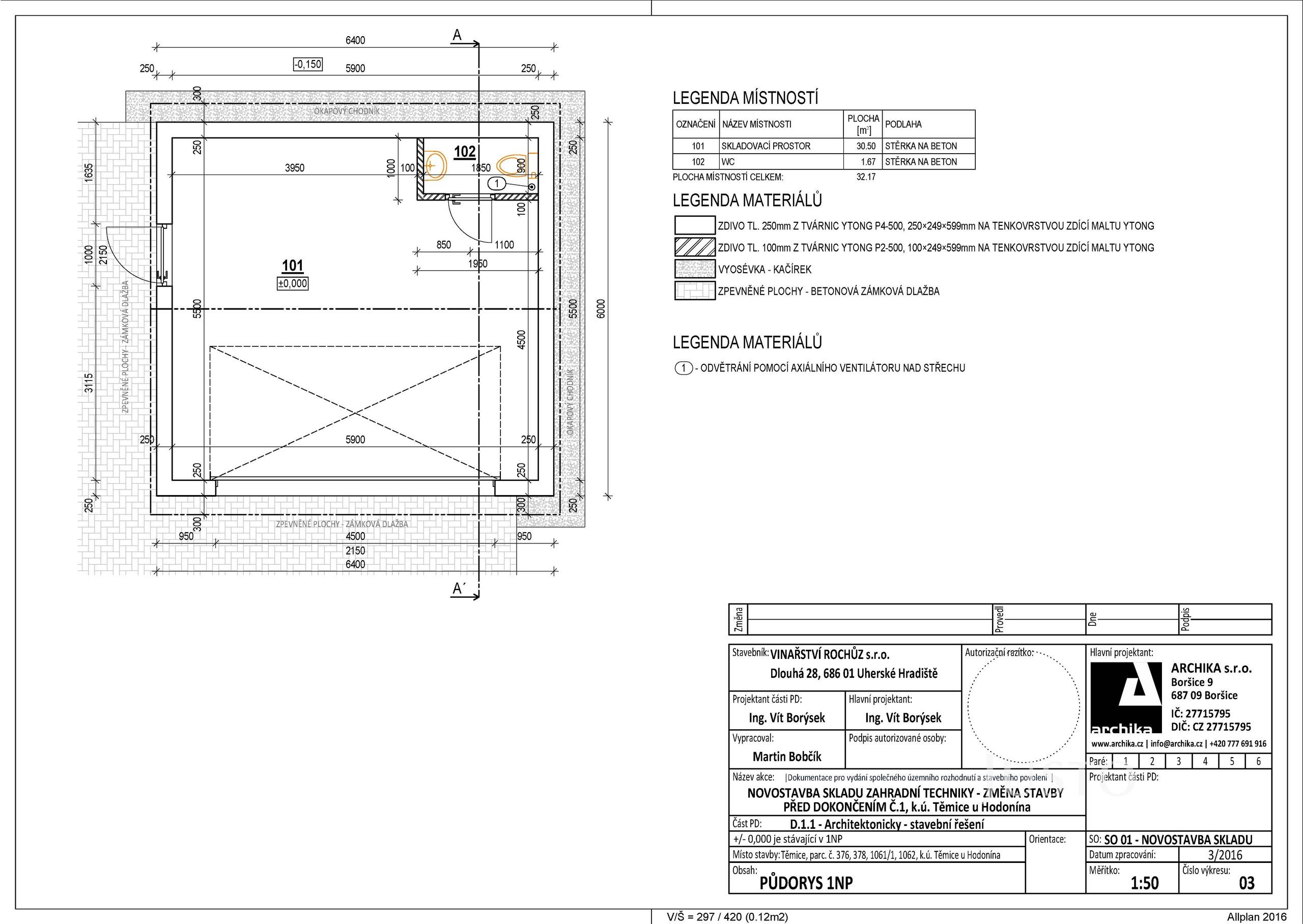
Prodej dvojgaráže 39 m² a stavebního pozemku 1127 m2, Těmice u Hodonína
Ve výhradním zastoupení majitele Vám nabízím k prodeji oplocenou moderní zemědělskou stavbu – sklad zahradní techniky - dvojgaráž, s vodovodní přípojkou, splachovacím WC, umyvadlem a funkční elektroinstalací v mědi, s pozemkem o celkové výměře 2331 m².
Objekt byl dostavěn v roce 2021, a je vybaven elektronickým zabezpečovacím systémem s napojením na mobilní telefon.
✅ Kupujete tedy hotovou, jen 4 roky starou dvojgaráž pro dvě vozidla, s přípojkami inženýrských sítí, stačí tedy přistavit nepodsklepený bungalov a máte krásné bydlení s ideálním dosahem do Kyjova i Bzence.
???? Technické parametry stavby:
- Rozměry: 6,4 × 6 m, výška hřebene 4,32 m
- Konstrukce: Ytong tl 250 mm, vazníkový krov, sedlová střecha s plechovou krytinou
- Podlaha: betonová, bez montážní jámy
- elektrická pojezdová vrata: 4500 × 2150 mm, vstupní dveře: 1000 × 2150 mm
- Přístřešek: rozšíření střechy o cca 18 m² pro skladování materiálu
⚙️ Inženýrské sítě:
- Elektroinstalace: NN rozvody, kabel NA YY 4x25mm², elektroměr
- Vodovod: napojení na veřejný řad, vodoměrná šachta
- Dešťové vody jsou svedeny do vsakovací jímky
- Kanalizace: jímka na vyvážení.
???? Pozemky:
Celková výměra pozemků činí 2 331 m², z toho:
- plocha 1 127 m² je určena územním plánem obce k bydlení v rodinných domech (Br2)
- plocha 588 m² je určena územním plánem obce zahradou (ZS)
- plocha 616 m² je určena územním plánem obce ornou půdou.
Na příjezdové cestě je položena zámková dlažba 170 × 170 mm.
???? Lokalita:
Obec Těmice se nachází v klidné lokalitě s výbornou dostupností:
Bzenec – 4 km
Kyjov a Veselí nad Moravou – 13 km
Majitel si vyhrazuje právo prodat nemovitost nejvýhodnější nabídce.
???? Neváhejte nás kontaktovat pro více informací nebo domluvení prohlídkyoj
Pomocí naší hypoteční kalkulačky si můžete udělat orientační představu o výši měsíčních splátek hypotéky. O vše ostatní se pak postaráme my ve spolupráci s našimi obchodními partnery.
10 729 Kč
* Odhadovaná měsíční splátka vychází z výše úvěru Kč s pevnou úrokovou sazbou % po celou dobu trvání úvěru.
Uživatel serveru RealityMIX.cz (dále jen „Server“) dostupného na internetové adrese (URL) https://www.realitymix.cz, který provozuje společnost DALTEN media s.r.o., se sídlem Na Harfě 916/9a, Praha 9, 190 00, IČO: 271 35 306 (dále jen „Správce“) jako provozovateli tohoto Serveru uděluje svůj výslovný souhlas v souladu s ustanovením § 5 zákona č. 101/2000 Sb. O ochraně osobních údajů a o změně některých zákonů, v platném znění (dále jen „zákon o ochraně osobních údajů“), se zpracováním uživatelem poskytnutých osobních údajů a dalších dat.
Uživatel poskytuje Správci osobní údaje v rozsahu: jméno, příjmení, e-mailová adresa, telefonický kontakt a další data, a to z důvodu projeveného zájmu o nemovitost, kde prostřednictvím služby Serveru Správce osloví Uživatel inzerenta uvedeného v detailu
nemovitosti - JUSTO Česká republika (IČ 04419995) se zájmem o jeho služby.
Uživatel tyto osobní údaje poskytuje dobrovolně a bere na vědomí, že součástí služeb Správce, které Správce Uživateli poskytuje, je vyhledání všech Uživateli vyhovujících (dle parametrů - cena, typ nemovitosti, lokalita atd.) nemovitostí. Správce za tímto účelem provozuje aplikace Hlídací pes a newsletter. Tyto služby je možné z každého zaslaného emailu odhlásit. Souhlas se zpracováním osobních údajů Uživatel poskytuje Správci na dobu neurčitou s tím, že svůj udělený souhlas může Uživatel kdykoliv na drese správce info@realitymix.cz odvolat. Správce garantuje Uživateli i další práva uvedené v ustanovení §11 a §21 zákoba č. 101/200 Sb. Ve znění pozdějších předpisů.
Více informací o zpracování údajů získáte zde (realitymix.cz/zasady-ochrany-osobnich-udaju)