Rodinný dům 3+kk s garáží, rozlehlým pozemkem a možností rozšíření, Těšany, okr. Brno-venkov.
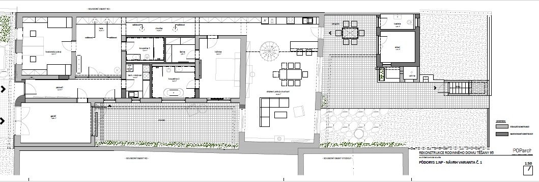
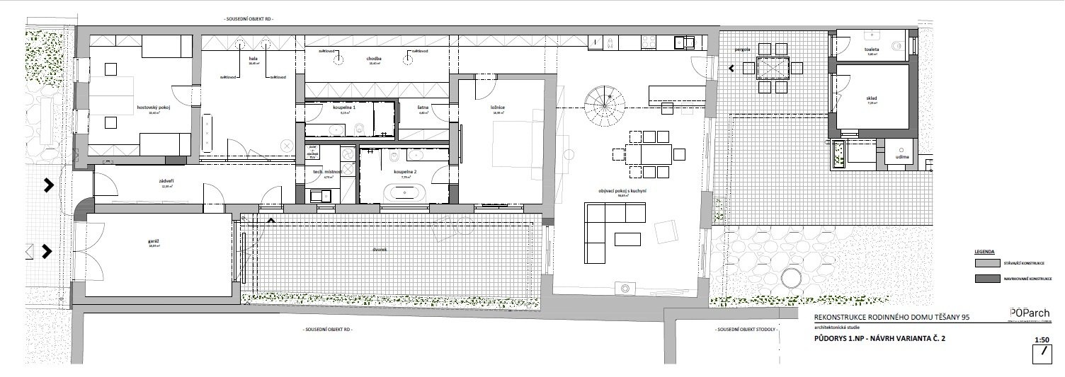
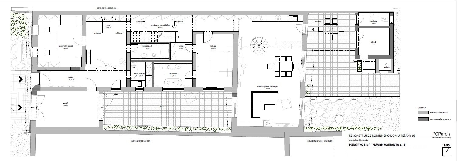
Nabízíme k prodeji rodinný dům o dispozici 3+kk s garáží a využitelným podkrovím, o celkové užitné ploše 108 m², situovaný na prostorném pozemku o výměře 1 079 m². Nemovitost se nachází na klidném okraji obce v řadové zástavbě venkovského charakteru.
Dům je jednopodlažní s půdorysem ve tvaru „L“. Na obytnou část navazuje dvorní křídlo zakončené stodolou, na kterou dále plynule navazují hospodářské objekty a samostatný sklep. Za domem se rozprostírá podlouhlá zahrada přecházející v sad, který uzavírá celý pozemek a poskytuje dostatek soukromí.
Dispoziční řešení:
• zádveří: 4,62 m²
• chodba: 20,50 m²
• ložnice: 19,42 m²
• pokoj: 17,97 m²
• obývací pokoj s kuchyňským koutem: 27,27 m²
• spíž: 5,20 m²
• koupelna: 10,25 m² (aktuálně bez vany)
• samostatné WC: 2,58 m²
• garáž: 18,95 m²
• technická místnost: 20,22 m²
• sklad: 11,40 m²
• stodola: 36,62 m²
• chlév: 12,05 m²
• dvůr: 43,85 m²
Technické informace:
Vytápění domu včetně ohřevu vody je zajištěno elektrickým kotlem. V obývacím pokoji jsou navíc instalována krbová kamna. Dům je možné napojit na plyn – přípojka se nachází před domem. Nemovitost je napojena na obecní vodovod a kanalizaci.
Možnost rozšíření:
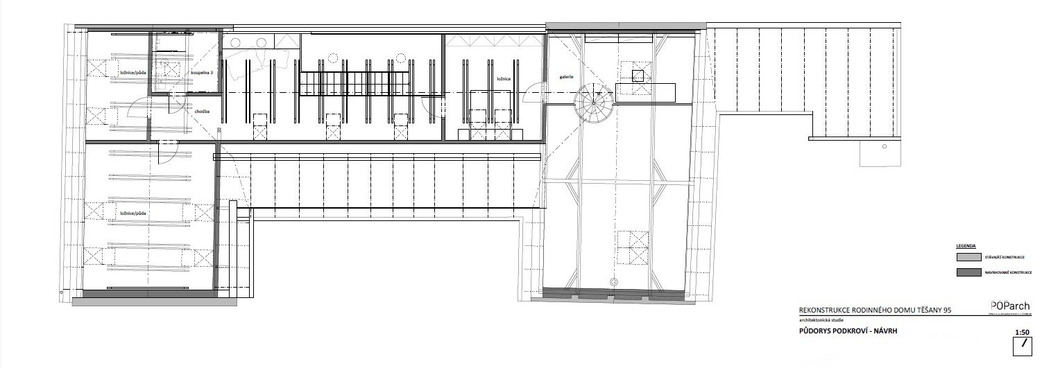
Součástí nabídky je architektonická studie s variantami možných stavebních úprav domu, podkroví i stodoly. Díky nevyužité půdě a stodole nabízí nemovitost zajímavý potenciál pro rozšíření obytné plochy dle vlastních představ.
Lokalita:
Obec Těšany se nachází přibližně 25 km jihovýchodně od Brna a je součástí Integrovaného dopravního systému Jihomoravského kraje (IDS JMK). Dopravní dostupnost zajišťuje pravidelné autobusové spojení.
V obci je k dispozici kompletní občanská vybavenost – základní a mateřská škola, sportoviště, restaurace, obchody i zdravotní služby.
Pro více informací nebo domluvení prohlídky nás neváhejte kontaktovat.
Pomocí naší hypoteční kalkulačky si můžete udělat orientační představu o výši měsíčních splátek hypotéky. O vše ostatní se pak postaráme my ve spolupráci s našimi obchodními partnery.
29 151 Kč
* Odhadovaná měsíční splátka vychází z výše úvěru Kč s pevnou úrokovou sazbou % po celou dobu trvání úvěru.
Uživatel serveru RealityMIX.cz (dále jen „Server“) dostupného na internetové adrese (URL) https://www.realitymix.cz, který provozuje společnost DALTEN media s.r.o., se sídlem Na Harfě 916/9a, Praha 9, 190 00, IČO: 271 35 306 (dále jen „Správce“) jako provozovateli tohoto Serveru uděluje svůj výslovný souhlas v souladu s ustanovením § 5 zákona č. 101/2000 Sb. O ochraně osobních údajů a o změně některých zákonů, v platném znění (dále jen „zákon o ochraně osobních údajů“), se zpracováním uživatelem poskytnutých osobních údajů a dalších dat.
Uživatel poskytuje Správci osobní údaje v rozsahu: jméno, příjmení, e-mailová adresa, telefonický kontakt a další data, a to z důvodu projeveného zájmu o nemovitost, kde prostřednictvím služby Serveru Správce osloví Uživatel inzerenta uvedeného v detailu
nemovitosti - GAUTE, a.s. (IČ 25543709) se zájmem o jeho služby. Tato společnost je součástí seskupení/sítě/franšízového modelu realitních kanceláří, jejich seznam můžete zobrazit kliknutím na tento odkaz.
Bramley, s.r.o. (IČ 26306735) , GAUTE, a.s. (IČ 25543709)
Uživatel tyto osobní údaje poskytuje dobrovolně a bere na vědomí, že součástí služeb Správce, které Správce Uživateli poskytuje, je vyhledání všech Uživateli vyhovujících (dle parametrů - cena, typ nemovitosti, lokalita atd.) nemovitostí. Správce za tímto účelem provozuje aplikace Hlídací pes a newsletter. Tyto služby je možné z každého zaslaného emailu odhlásit. Souhlas se zpracováním osobních údajů Uživatel poskytuje Správci na dobu neurčitou s tím, že svůj udělený souhlas může Uživatel kdykoliv na drese správce info@realitymix.cz odvolat. Správce garantuje Uživateli i další práva uvedené v ustanovení §11 a §21 zákoba č. 101/200 Sb. Ve znění pozdějších předpisů.
Více informací o zpracování údajů získáte zde (realitymix.cz/zasady-ochrany-osobnich-udaju)