Stavební pozemek s projektem malého domku včetně stavebního povolení v Těšovicích u Sokolova
Nabízíme k prodeji stavební pozemek o celkové výměře 275 m², situovaný v klidné části obce Těšovice s výbornou dostupností do okresního města Sokolov s kompletní občanskou vybaveností.
Pozemek je ideální pro klienty, kteří hledají úsporné a minimalistické bydlení v rekreačním objektu s nízkými náklady na výstavbu i pozdější provoz.
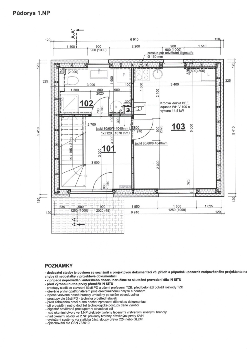
Součástí nabídky je kompletní projekt se stavebním povolením pro nízkonákladový objekt o zastavěné ploše 40,40 m². Jedná se o nepodsklepenou, jednopodlažní stavbu s půdním prostorem, která je navržena s ohledem na efektivní využití prostoru.
Projekt počítá s těmito místnostmi:
Obývací pokoj s kuchyňským koutem – 17 m²
Koupelna s WC – 5,7 m²
Zádveří – 9 m²
Půdní prostor využitelný jako úložný či relaxační
Inženýrské sítě:
Připojení na veřejný vodovod
Veřejná kanalizace
Elektrická přípojka 230 V je již na pozemku vybudovaná
Pro nízké náklady na vytápění je projekt počítán s využitím kvalitní teplovodní krbové vložky BEF AQUATIC WH V 100, která má integrovaný teplovodní výměník pro rozvod tepla do otopného systému. Tato vložka je navržena pro efektivní a čisté spalování dřeva s výkonem vhodným právě do menších objektů, a díky výměníku lze teplo s vysokou účinností využít i pro ohřev vody či topení domu.
Součástí projektu je i samostatný dřevník o zastavěné ploše 11 m², který je na pozemku již hotový – ideální pro uskladnění palivového dřeva nebo zahradního nářadí.
Těšovice – klidné a příjemné místo s dobrou dostupností do Sokolova a napojením na hlavní komunikace. Výborné místo pro ty, kteří chtějí kombinaci venkovského klidu a dostupnosti služeb města.
Pomocí naší hypoteční kalkulačky si můžete udělat orientační představu o výši měsíčních splátek hypotéky. O vše ostatní se pak postaráme my ve spolupráci s našimi obchodními partnery.
3 037 Kč
* Odhadovaná měsíční splátka vychází z výše úvěru Kč s pevnou úrokovou sazbou % po celou dobu trvání úvěru.
Uživatel serveru RealityMIX.cz (dále jen „Server“) dostupného na internetové adrese (URL) https://www.realitymix.cz, který provozuje společnost DALTEN media s.r.o., se sídlem Na Harfě 916/9a, Praha 9, 190 00, IČO: 271 35 306 (dále jen „Správce“) jako provozovateli tohoto Serveru uděluje svůj výslovný souhlas v souladu s ustanovením § 5 zákona č. 101/2000 Sb. O ochraně osobních údajů a o změně některých zákonů, v platném znění (dále jen „zákon o ochraně osobních údajů“), se zpracováním uživatelem poskytnutých osobních údajů a dalších dat.
Uživatel poskytuje Správci osobní údaje v rozsahu: jméno, příjmení, e-mailová adresa, telefonický kontakt a další data, a to z důvodu projeveného zájmu o nemovitost, kde prostřednictvím služby Serveru Správce osloví Uživatel inzerenta uvedeného v detailu
nemovitosti - Realitní kancelář Sedláček s.r.o. (IČ 29163803) se zájmem o jeho služby.
Uživatel tyto osobní údaje poskytuje dobrovolně a bere na vědomí, že součástí služeb Správce, které Správce Uživateli poskytuje, je vyhledání všech Uživateli vyhovujících (dle parametrů - cena, typ nemovitosti, lokalita atd.) nemovitostí. Správce za tímto účelem provozuje aplikace Hlídací pes a newsletter. Tyto služby je možné z každého zaslaného emailu odhlásit. Souhlas se zpracováním osobních údajů Uživatel poskytuje Správci na dobu neurčitou s tím, že svůj udělený souhlas může Uživatel kdykoliv na drese správce info@realitymix.cz odvolat. Správce garantuje Uživateli i další práva uvedené v ustanovení §11 a §21 zákoba č. 101/200 Sb. Ve znění pozdějších předpisů.
Více informací o zpracování údajů získáte zde (realitymix.cz/zasady-ochrany-osobnich-udaju)