Dům, který vám dá prostor, soukromí a klid, jaký dnes jen tak nenajdete.
Prostorný rodinný dům 5+1 na okraji obce Zaháj nabízí ideální kombinaci venkovského klidu a skvělé dostupnosti – pouhé 3 minuty od Vysokého Mýta a 18 minut od Litomyšle.
Dům stojí na rozlehlém pozemku o výměře 1 666 m², který poskytuje dostatek místa pro rodinný život, zahradu i odpočinek v naprostém soukromí.
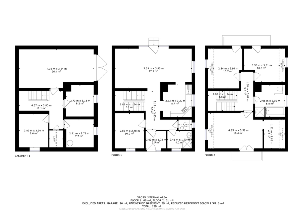
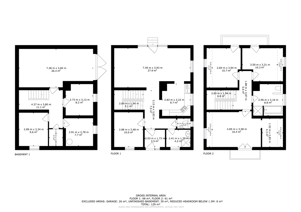
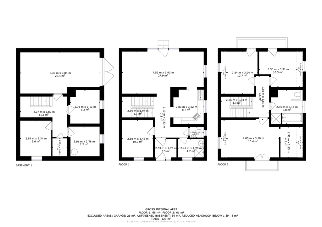
Dispozice
Přízemí:
- garáž (26,4 m²)
- 3× sklep (9,6 m² a 7,7 m²)
- kotelna (8,2 m²)
1. NP:
- obývací pokoj se vstupem na zahradu (27,9 m²)
- kuchyně (8,7 m²)
- pokoj (10 m²)
- koupelna + samostatné WC (5,5 m²)
2. NP:
- ložnice se šatnou (20,7 m²)
- 2 pokoje (10,7 m² a 10,3 m²)
- koupelna s WC (8,8 m²)
Hlavní benefity:
- pozemek o velikosti 1 666 m²
- umístění na samém kraji obce → maximální soukromí
- výhled na výběh s koňmi
- klidná lokalita obklopená přírodou
- přímý vstup na zahradu z obývacího pokoje
- garáž + sklepy + technické zázemí
- skvělá dostupnost: Vysoké Mýto (3 min), Litomyšl (18 min)
Cena na vyžádání
Pokud hledáte dům s velkým pozemkem, soukromím a dobrou dostupností, ráda vám ho osobně představím.
Pro domluvení prohlídky mě neváhejte kontaktovat.
Cena:
Cena na vyžádání
Poznámka:
cena u makléře
Datum k nastěhování:
18.03.2026
Číslo zakázky:
REALITYMIX-0002
Podrobné informace
Poloha objektu:samostatný
Druh objektu:cihlová
Stav objektu:velmi dobrý
Počet podlaží objektu:3
Typ domu:patrový
Zastavěná plocha:90 m²
Plocha parcely:1666 m²
Zahrada:1576 m²
Užitná plocha:180 m²
Umístění objektu:klidná část obce
Komunikace:asfaltová
Odpad:ČOV pro celý objekt
Energetická náročnost budovy:B - Velmi úsporná
Energetický ukazatel podle vyhlášky:č. 264/2020 Sb.
Uživatel serveru RealityMIX.cz (dále jen „Server“) dostupného na internetové adrese (URL) https://www.realitymix.cz, který provozuje společnost DALTEN media s.r.o., se sídlem Na Harfě 916/9a, Praha 9, 190 00, IČO: 271 35 306 (dále jen „Správce“) jako provozovateli tohoto Serveru uděluje svůj výslovný souhlas v souladu s ustanovením § 5 zákona č. 101/2000 Sb. O ochraně osobních údajů a o změně některých zákonů, v platném znění (dále jen „zákon o ochraně osobních údajů“), se zpracováním uživatelem poskytnutých osobních údajů a dalších dat.
Uživatel poskytuje Správci osobní údaje v rozsahu: jméno, příjmení, e-mailová adresa, telefonický kontakt a další data, a to z důvodu projeveného zájmu o nemovitost, kde prostřednictvím služby Serveru Správce osloví Uživatel inzerenta uvedeného v detailu
nemovitosti - Flek Estate s.r.o. (IČ 24611735) se zájmem o jeho služby.
Uživatel tyto osobní údaje poskytuje dobrovolně a bere na vědomí, že součástí služeb Správce, které Správce Uživateli poskytuje, je vyhledání všech Uživateli vyhovujících (dle parametrů - cena, typ nemovitosti, lokalita atd.) nemovitostí. Správce za tímto účelem provozuje aplikace Hlídací pes a newsletter. Tyto služby je možné z každého zaslaného emailu odhlásit. Souhlas se zpracováním osobních údajů Uživatel poskytuje Správci na dobu neurčitou s tím, že svůj udělený souhlas může Uživatel kdykoliv na drese správce info@realitymix.cz odvolat. Správce garantuje Uživateli i další práva uvedené v ustanovení §11 a §21 zákoba č. 101/200 Sb. Ve znění pozdějších předpisů.
Více informací o zpracování údajů získáte zde (realitymix.cz/zasady-ochrany-osobnich-udaju)