Nabízím k prodeji dvougenerační rodinný dům nacházející se v centru města Trhové Sviny. Dům stojí na stavebním pozemku o celkové výměře 248 m2. Do této výměry se zahrnuje průjezd, dvorek a stavba bez čp/če napojená na dům. K domu dále patří oplocená zahrada o výměře 88 m2.
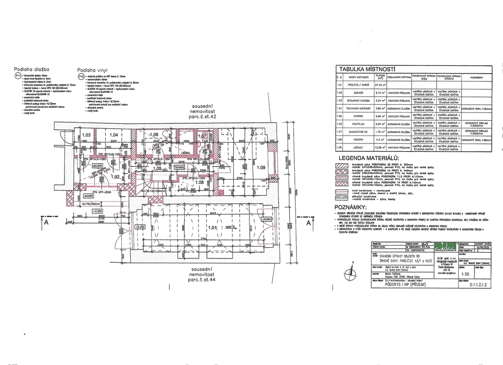
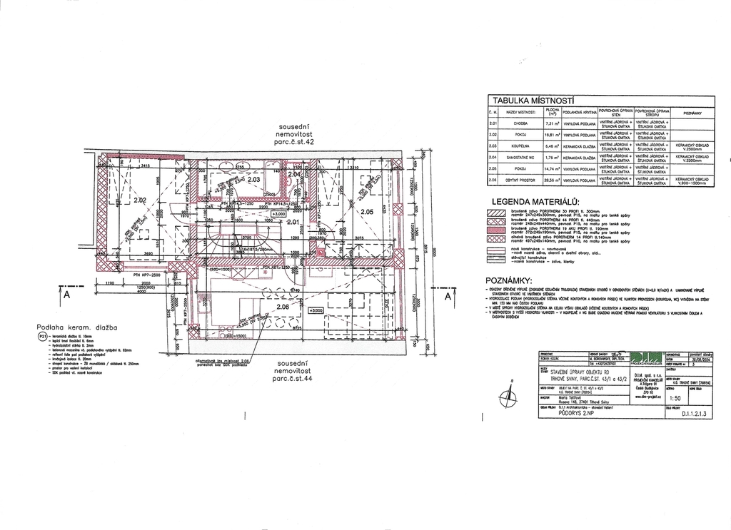
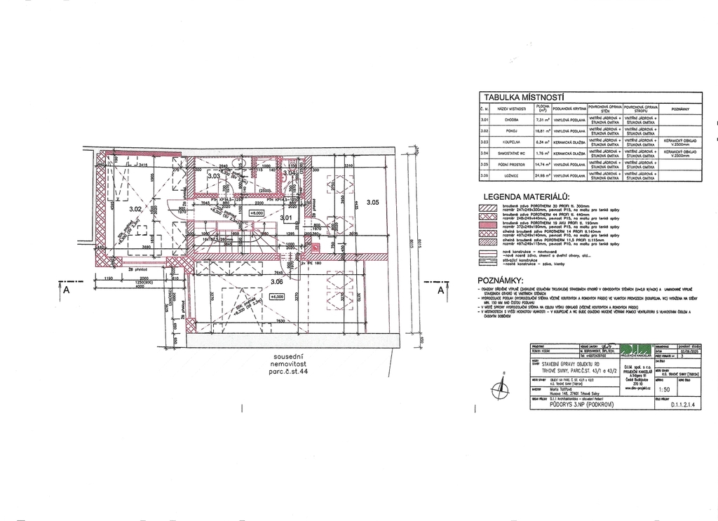
Dům je v současné době v rekonstrukci, jsou provedeny bourací práce. Jedná se o modernizaci celého objektu RD. Jsou navrhovány nové svislé nosné konstrukce, dispoziční úpravy, nové stropní konstrukce a krov vč. nového zastřešení. Bude ponechán průjezd / garáž a část obvodové stěny v 1.NP. Rodinný dům není podsklepený, jsou navržena dvě hlavní obytná podlaží a obytné podkroví.
Rodinný dům bude tvořit bytová jednotka 6+kk o podlahové ploše:
podlahová plocha 1.NP 71,99 m2
podlahová plocha 2.NP 75,64 m2
podlahová plocha 3.NP 71,94 m2
Stávající objekt je napojen na vedení inženýrských sítí vodovodu, kanalizace, teplovodu a vedení NN přes stávající přípojky. Všechny tyto stávající přípojky budou využity i v rámci stavebních úprav objektu. Nepředpokládá se vybudování nových přípojek nebo přeložek inženýrských sítí.
Na tento projekt je zpracována projektová dokumentace, je zahájeno řízení o vydání stavebního povolení a v současné době je již vydáno Vyrozumění o zahájení řízení. Odbor památkové péče tento projekt schválil. Vše je součástí prodeje domu.
Stavba bez čp/če, která je součástí celého objektu a je přímo napojena na rekonstruovaný dům je v současné době využívána jako byt o dispozici 3+kk.
Trhové Sviny jsou město a obec s rozšířenou působností v okrese České Budějovice v Jihočeském kraji. Leží devatenáct kilometrů jihovýchodně od Českých Budějovic na soutoku Farského a Svinenského potoka. Historické jádro města je městskou památkovou zónou. Samozřejmostí je veškerá občanská vybavenost.
Jedná se o velmi zajímavou nabídku a určitě doporučuji prohlídku. V případě zájmu zajistím financování na koupi nemovitosti
Pomocí naší hypoteční kalkulačky si můžete udělat orientační představu o výši měsíčních splátek hypotéky. O vše ostatní se pak postaráme my ve spolupráci s našimi obchodními partnery.
22 268 Kč
* Odhadovaná měsíční splátka vychází z výše úvěru Kč s pevnou úrokovou sazbou % po celou dobu trvání úvěru.
Uživatel serveru RealityMIX.cz (dále jen „Server“) dostupného na internetové adrese (URL) https://www.realitymix.cz, který provozuje společnost DALTEN media s.r.o., se sídlem Na Harfě 916/9a, Praha 9, 190 00, IČO: 271 35 306 (dále jen „Správce“) jako provozovateli tohoto Serveru uděluje svůj výslovný souhlas v souladu s ustanovením § 5 zákona č. 101/2000 Sb. O ochraně osobních údajů a o změně některých zákonů, v platném znění (dále jen „zákon o ochraně osobních údajů“), se zpracováním uživatelem poskytnutých osobních údajů a dalších dat.
Uživatel poskytuje Správci osobní údaje v rozsahu: jméno, příjmení, e-mailová adresa, telefonický kontakt a další data, a to z důvodu projeveného zájmu o nemovitost, kde prostřednictvím služby Serveru Správce osloví Uživatel inzerenta uvedeného v detailu
nemovitosti - Daniel Ambrůžek (IČ 60633484) se zájmem o jeho služby.
Uživatel tyto osobní údaje poskytuje dobrovolně a bere na vědomí, že součástí služeb Správce, které Správce Uživateli poskytuje, je vyhledání všech Uživateli vyhovujících (dle parametrů - cena, typ nemovitosti, lokalita atd.) nemovitostí. Správce za tímto účelem provozuje aplikace Hlídací pes a newsletter. Tyto služby je možné z každého zaslaného emailu odhlásit. Souhlas se zpracováním osobních údajů Uživatel poskytuje Správci na dobu neurčitou s tím, že svůj udělený souhlas může Uživatel kdykoliv na drese správce info@realitymix.cz odvolat. Správce garantuje Uživateli i další práva uvedené v ustanovení §11 a §21 zákoba č. 101/200 Sb. Ve znění pozdějších předpisů.
Více informací o zpracování údajů získáte zde (realitymix.cz/zasady-ochrany-osobnich-udaju)