Prodej projektu administrativní budovy (711 m² ) včetně stavebního pozemku 1011 m², Troubsko
Nabízím k prodeji projekt výstavby administrativní budovy o celkové užitné ploše 711 m² na stavebním pozemku určeném pro komerční zástavbu o výměře 1011 m² v k.ú. Troubsko.
Součástí nabídkové ceny je stavební parcela včetně projektové dokumentace se stavebním povolením. Cena stavby není zahrnuta v nabídce.
Pozemky jsou připraveny k okamžité zástavbě s vyřízeným stavebním povolením pro výstavbu dvoupatrové administrativní budovy se skladovací plochou, kancelářemi a showroomem, o celkové zastavěné ploše 371 m². Součástí navrhované budovy je také jedno podzemní podlaží (částečné).
Popis dispozičního řešení:
Velikost objektu je 13 x 28,5 m s plochou pultovou střechou.
Výška stavby je 11,87 m měřená od základu po atiku ploché pultové střechy.
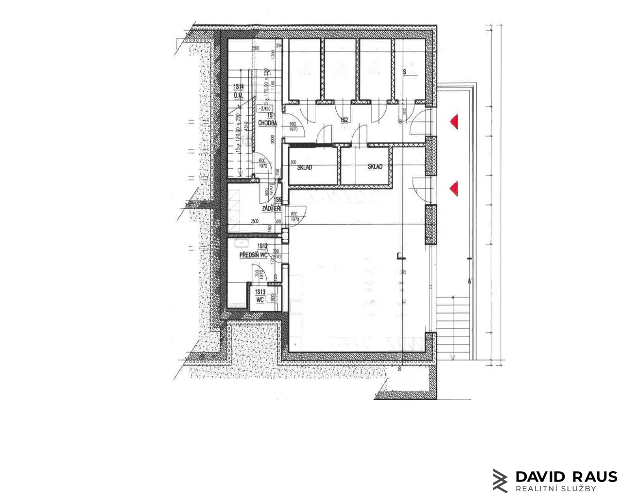
1.PP obsahuje - chodbu, zádveří, kancelář, předsíň se samostatným WC a sklady
1.NP obsahuje - chodbu se společným schodištěm, showroom s recepcí, denní místnost, předsíň se dvěma WC, technickou místnost, velkoprostorový sklad, šatnu se sprchou a WC
2.NP obsahuje - chodbu, kanceláře s hygienickým zázemím, součástí byt pro majitele - správce objektu
Celkovou výměru tvoří pozemky obdélníkového tvaru s parcelním číslem 46/5 - 85 m2,46/1 - 850m2 a č.39/43 -76m2.
Pozemky jsou situovány na strategickém místě nedaleko dálnice D1 a hlavního tahu do centra Brna.
Podle platného Územního plánu obce Troubsko jsou prodávané pozemky určené jako plochy výroby a skladování - drobná řemeslná výroba.
Hlavní využití : Pozemky staveb a zařízení malovýroby, řemeslné či přidružené výroby a skladovacích areálů. Přípustné – sběrná místa komunálního odpadu, sběrny surovin – pozemky související dopravní a technické infrastruktury – pozemky sídelní zeleně, drobná architektura – stavby veřejné dopravní infrastruktury a technické infrastruktury.
Základní informace:
Lokalita : Troubsko, ul. Zahradní
Typ : Administrativní budova
Předmět prodeje: pozemky s projektem a stavebním povolením v právní moci
Užitná plocha: 711 m²
Dispozice : 3 podlažní budova
Parkování: 15 stání
Zastavěná plocha: 371 m²
Veškeré podklady včetně projektové dokumentace a vydaného stavebního povolení financování.
Pomocí naší hypoteční kalkulačky si můžete udělat orientační představu o výši měsíčních splátek hypotéky. O vše ostatní se pak postaráme my ve spolupráci s našimi obchodními partnery.
32 460 Kč
* Odhadovaná měsíční splátka vychází z výše úvěru Kč s pevnou úrokovou sazbou % po celou dobu trvání úvěru.
Uživatel serveru RealityMIX.cz (dále jen „Server“) dostupného na internetové adrese (URL) https://www.realitymix.cz, který provozuje společnost DALTEN media s.r.o., se sídlem Na Harfě 916/9a, Praha 9, 190 00, IČO: 271 35 306 (dále jen „Správce“) jako provozovateli tohoto Serveru uděluje svůj výslovný souhlas v souladu s ustanovením § 5 zákona č. 101/2000 Sb. O ochraně osobních údajů a o změně některých zákonů, v platném znění (dále jen „zákon o ochraně osobních údajů“), se zpracováním uživatelem poskytnutých osobních údajů a dalších dat.
Uživatel poskytuje Správci osobní údaje v rozsahu: jméno, příjmení, e-mailová adresa, telefonický kontakt a další data, a to z důvodu projeveného zájmu o nemovitost, kde prostřednictvím služby Serveru Správce osloví Uživatel inzerenta uvedeného v detailu
nemovitosti - DRRS s.r.o. (IČ 09895035) se zájmem o jeho služby.
Uživatel tyto osobní údaje poskytuje dobrovolně a bere na vědomí, že součástí služeb Správce, které Správce Uživateli poskytuje, je vyhledání všech Uživateli vyhovujících (dle parametrů - cena, typ nemovitosti, lokalita atd.) nemovitostí. Správce za tímto účelem provozuje aplikace Hlídací pes a newsletter. Tyto služby je možné z každého zaslaného emailu odhlásit. Souhlas se zpracováním osobních údajů Uživatel poskytuje Správci na dobu neurčitou s tím, že svůj udělený souhlas může Uživatel kdykoliv na drese správce info@realitymix.cz odvolat. Správce garantuje Uživateli i další práva uvedené v ustanovení §11 a §21 zákoba č. 101/200 Sb. Ve znění pozdějších předpisů.
Více informací o zpracování údajů získáte zde (realitymix.cz/zasady-ochrany-osobnich-udaju)