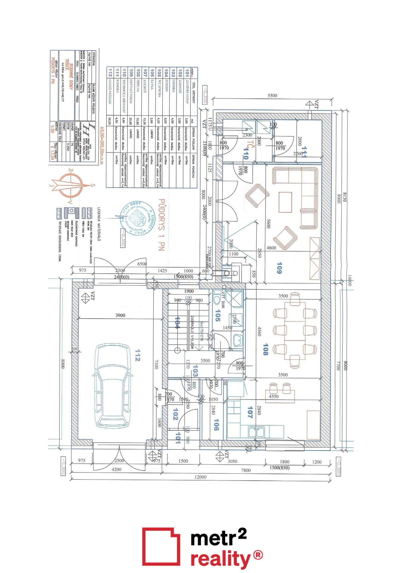
Ve výhradním zastoupení majitele si Vám dovolujeme nabídnout k prodeji novostavbu krajního řadového domu v obci Tršice, která je vzdálená 16 km od Olomouce. Dům je nyní ve výstavbě a termín dokončení je naplánovaný do konce roku 2025. Jedná se o dvoupodlažní zděný dům o dispozici 5+kk s garáží, užitná plocha domu činí krásných 173 m2 + garáž 28 m2. K domu náleží pozemek o výměře 214 m2. V přízemí se nachází vstupní chodba, ze které se vchází do koupelny s WC, kuchyně s jídelnou, obývacího pokoje, komory a garáže, v patře jsou pak čtyři samostatné ložnice, velká šatna a druhá koupelna s WC. Z obývacího pokoje se francouzským oknem dostanete na oplocený dvůr, který nabízí maximální soukromí na odpočinek. Dům bude napojen na veškeré inženýrské sítě – vodovod, kanalizace, elektřina. Vytápění bude zajišťovat tepelné čerpadlo voda – vzduch, v přízemí bude podlahové vytápění, v patře pak radiátory. Dům bude dokončen ve vysokém standardu, vyjma kuchyňské linky. Dům má sedlovou střechu, krytina poplastovaný plech, okna jsou plastová s trojskly. V interiéru budou laminátové podlahy v kombinaci s dlažbou, obložkové dýhované dveře, schodiště do patra bude monolitické s dřevěným obložením z dubového masivu. Obec Tršice nabízí svým obyvatelům veškerou občanskou vybavenost, nachází se zde mateřská i základní škola, zdravotní středisko, sportovní zařízení s tenisovými kurty, obchod aj. Velkou výhodou je velmi dobrá dopravní dostupnost do Olomouce i Přerova. V případě zájmu o bližší informace či prohlídku nás neváhejte kontaktovat.
Pomocí naší hypoteční kalkulačky si můžete udělat orientační představu o výši měsíčních splátek hypotéky. O vše ostatní se pak postaráme my ve spolupráci s našimi obchodními partnery.
34 414 Kč
* Odhadovaná měsíční splátka vychází z výše úvěru Kč s pevnou úrokovou sazbou % po celou dobu trvání úvěru.
Uživatel serveru RealityMIX.cz (dále jen „Server“) dostupného na internetové adrese (URL) https://www.realitymix.cz, který provozuje společnost DALTEN media s.r.o., se sídlem Na Harfě 916/9a, Praha 9, 190 00, IČO: 271 35 306 (dále jen „Správce“) jako provozovateli tohoto Serveru uděluje svůj výslovný souhlas v souladu s ustanovením § 5 zákona č. 101/2000 Sb. O ochraně osobních údajů a o změně některých zákonů, v platném znění (dále jen „zákon o ochraně osobních údajů“), se zpracováním uživatelem poskytnutých osobních údajů a dalších dat.
Uživatel poskytuje Správci osobní údaje v rozsahu: jméno, příjmení, e-mailová adresa, telefonický kontakt a další data, a to z důvodu projeveného zájmu o nemovitost, kde prostřednictvím služby Serveru Správce osloví Uživatel inzerenta uvedeného v detailu
nemovitosti - metr2 reality s.r.o. (IČ 27779661) se zájmem o jeho služby.
Uživatel tyto osobní údaje poskytuje dobrovolně a bere na vědomí, že součástí služeb Správce, které Správce Uživateli poskytuje, je vyhledání všech Uživateli vyhovujících (dle parametrů - cena, typ nemovitosti, lokalita atd.) nemovitostí. Správce za tímto účelem provozuje aplikace Hlídací pes a newsletter. Tyto služby je možné z každého zaslaného emailu odhlásit. Souhlas se zpracováním osobních údajů Uživatel poskytuje Správci na dobu neurčitou s tím, že svůj udělený souhlas může Uživatel kdykoliv na drese správce info@realitymix.cz odvolat. Správce garantuje Uživateli i další práva uvedené v ustanovení §11 a §21 zákoba č. 101/200 Sb. Ve znění pozdějších předpisů.
Více informací o zpracování údajů získáte zde (realitymix.cz/zasady-ochrany-osobnich-udaju)