Prodej rodinného domu 121 m and sup2;, pozemek 499 m and sup2;, Na Vyhlídce, Trubín - okres Beroun
KLIDNÉ RODINNÉ BYDLENÍ SE ZAHRADOU, TERASOU, GARÁŽÍ, DVĚMA KOUPELNAMI A SKVĚLOU DOSTUPNOSTÍ DO BEROUNA I PRAHY. TO VŠE V OBKLOPENÍ KRÁSNÉ PŘÍRODY ČESKÉHO KRASU A KŘIVOKLÁTSKA.
Tato nemovitost o dispozici 4+1 nabízí komfortní rodinné bydlení v naprosto klidném prostředí. Do Berouna se dostanete za 8 minut a do Prahy na Zličín za 17 minut. To vše v obci Trubín, obklopené krásnou přírodou Českého krasu a Křivoklátska.
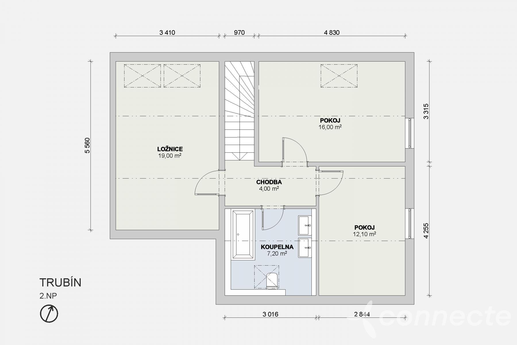
Dispozice je řešena velmi prakticky. V přízemí se nachází obývací pokoj, kuchyň, jídelní kout a první koupelna s toaletou. Z obývacího pokoje je přímý vstup na zastřešenou terasu a vlastní zahradu, což vytváří příjemné propojení vnitřního a venkovního prostoru. V podkroví pak najdete další 3 obytné místnosti, druhou koupelnu a praktický půdní úložný prostor. K parkování poslouží uzamykatelná garáž se 400 V zásuvkou, například pro nabíjení elektromobilu, a prostor před garáží pro další 2 vozidla.
Rodinný komfort je zde opravdu znát. Ráno si můžete v klidu vychutnat snídani na terase, přes den nechat děti hrát na zahradě a večer si užít příjemný klid, který dnes bývá čím dál vzácnější. Dvě koupelny navíc přinášejí pohodlnější a klidnější fungování celé domácnosti. Praktickou stránku každodenního života pak doplňuje i nové obchodní centrum Litavka, vzdálené pouhé 4 minuty od domova.
A samotnou nemovitostí to nekončí. Velkou přidanou hodnotou je také krásná příroda v okolí. V dosahu máte krásnou přírodu Českého krasu a Křivoklátska, tedy oblíbená místa pro procházky, výlety, sport a odpočinek. Pokud tedy hledáte bydlení, které nabízí více prostoru a klidu, vlastní zahradu s terasou, garáž a ideální spojení přírody s dostupností města, pak je tohle místo přesně pro Vás.
Vše výše zmíněné se jen velmi těžko přenáší přes displej. Mnohem lepší je osobní zážitek. Proto mi zavolejte a domluvte si osobní prohlídku ještě dnes. Pokud navíc chcete koupi této nemovitosti financovat prodejem té vlastní, určitě najdeme cestu, jak toho dosáhnout. Samozřejmostí je také zajištění financování.
--
Pozn:
Poslední zpracovaný PENB řadil nemovitost do energetické třídy C, nový PENB bude doplněn v nejbližší možné době.
Pomocí naší hypoteční kalkulačky si můžete udělat orientační představu o výši měsíčních splátek hypotéky. O vše ostatní se pak postaráme my ve spolupráci s našimi obchodními partnery.
42 431 Kč
* Odhadovaná měsíční splátka vychází z výše úvěru Kč s pevnou úrokovou sazbou % po celou dobu trvání úvěru.
Uživatel serveru RealityMIX.cz (dále jen „Server“) dostupného na internetové adrese (URL) https://www.realitymix.cz, který provozuje společnost DALTEN media s.r.o., se sídlem Na Harfě 916/9a, Praha 9, 190 00, IČO: 271 35 306 (dále jen „Správce“) jako provozovateli tohoto Serveru uděluje svůj výslovný souhlas v souladu s ustanovením § 5 zákona č. 101/2000 Sb. O ochraně osobních údajů a o změně některých zákonů, v platném znění (dále jen „zákon o ochraně osobních údajů“), se zpracováním uživatelem poskytnutých osobních údajů a dalších dat.
Uživatel poskytuje Správci osobní údaje v rozsahu: jméno, příjmení, e-mailová adresa, telefonický kontakt a další data, a to z důvodu projeveného zájmu o nemovitost, kde prostřednictvím služby Serveru Správce osloví Uživatel inzerenta uvedeného v detailu
nemovitosti - Connecte REALITY s.r.o. (IČ 08866864) se zájmem o jeho služby. Tato společnost je součástí seskupení/sítě/franšízového modelu realitních kanceláří, jejich seznam můžete zobrazit kliknutím na tento odkaz.
Connecte REALITY s.r.o. (IČ 08866864) , Connecte DEVELOPMENT s.r.o. (IČ 05463211)
Uživatel tyto osobní údaje poskytuje dobrovolně a bere na vědomí, že součástí služeb Správce, které Správce Uživateli poskytuje, je vyhledání všech Uživateli vyhovujících (dle parametrů - cena, typ nemovitosti, lokalita atd.) nemovitostí. Správce za tímto účelem provozuje aplikace Hlídací pes a newsletter. Tyto služby je možné z každého zaslaného emailu odhlásit. Souhlas se zpracováním osobních údajů Uživatel poskytuje Správci na dobu neurčitou s tím, že svůj udělený souhlas může Uživatel kdykoliv na drese správce info@realitymix.cz odvolat. Správce garantuje Uživateli i další práva uvedené v ustanovení §11 a §21 zákoba č. 101/200 Sb. Ve znění pozdějších předpisů.
Více informací o zpracování údajů získáte zde (realitymix.cz/zasady-ochrany-osobnich-udaju)