Nabízíme k prodeji nadstandardně prostorný byt o dispozici 4+1 v Trutnově, ul. Lípová, který zaujme především svou velikostí, dispozicí a výbornou dostupností do centra města.
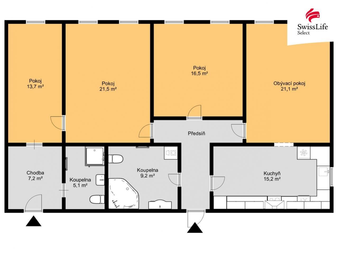
Bytová jednotka se nachází v přízemí zděného domu a její podlahová plocha je 117,25 m. K bytu náleží také sklep o velikosti 35 m.
Dispozice: vstupní chodba, kuchyně, prostorný obývací pokoj, tři samostatné pokoje a dvě koupelny, což zajišťuje komfort i pro větší rodinu.
Byt vznikl propojením dvou jednotek o dispozici 2+1 a v současné době tvoří jeden celek. V případě potřeby je možné opět rozdělit na dvě samostatné bytové jednotky.
Vytápění je řešeno podlahovým topením, které zajišťuje příjemný komfort bydlení. Vodovod obecní, odpadní vody svedeny do veřejné kanalizace. Dům je ve velmi dobrém stavu, udržovaný, s fungujícím SVJ.
Nemovitost se nachází v blízkosti centra Trutnova a v pěší vzdálenosti najdete kompletní občanskou vybavenost školu, školku, obchody s potravinami, MHD, polikliniku a další služby. Pěší zóna a náměstí jsou vzdálené jen pár minut chůze.
Pro více informací nebo sjednání prohlídky nás neváhejte kontaktovat. Rádi Vám zajistíme též financování koupě této nemovitosti, a to naším zkušeným hypotečním specialistou. Budeme se na Vás těšit u prohlídky.
Pomocí naší hypoteční kalkulačky si můžete udělat orientační představu o výši měsíčních splátek hypotéky. O vše ostatní se pak postaráme my ve spolupráci s našimi obchodními partnery.
30 365 Kč
* Odhadovaná měsíční splátka vychází z výše úvěru Kč s pevnou úrokovou sazbou % po celou dobu trvání úvěru.
Prodáváte nemovitost a potřebujete zjistit její reálnou hodnotu?
Uživatel serveru RealityMIX.cz (dále jen „Server“) dostupného na internetové adrese (URL) https://www.realitymix.cz, který provozuje společnost DALTEN media s.r.o., se sídlem Na Harfě 916/9a, Praha 9, 190 00, IČO: 271 35 306 (dále jen „Správce“) jako provozovateli tohoto Serveru uděluje svůj výslovný souhlas v souladu s ustanovením § 5 zákona č. 101/2000 Sb. O ochraně osobních údajů a o změně některých zákonů, v platném znění (dále jen „zákon o ochraně osobních údajů“), se zpracováním uživatelem poskytnutých osobních údajů a dalších dat.
Uživatel poskytuje Správci osobní údaje v rozsahu: jméno, příjmení, e-mailová adresa, telefonický kontakt a další data, a to z důvodu projeveného zájmu o nemovitost, kde prostřednictvím služby Serveru Správce osloví Uživatel inzerenta uvedeného v detailu
nemovitosti - Swiss Life Select Reality (IČ 24260444) se zájmem o jeho služby. Tato společnost je součástí seskupení/sítě/franšízového modelu realitních kanceláří, jejich seznam můžete zobrazit kliknutím na tento odkaz.
Fincentrum a.s. (IČ 24260444) , Swiss Life Select Reality (IČ 24260444)
Uživatel tyto osobní údaje poskytuje dobrovolně a bere na vědomí, že součástí služeb Správce, které Správce Uživateli poskytuje, je vyhledání všech Uživateli vyhovujících (dle parametrů - cena, typ nemovitosti, lokalita atd.) nemovitostí. Správce za tímto účelem provozuje aplikace Hlídací pes a newsletter. Tyto služby je možné z každého zaslaného emailu odhlásit. Souhlas se zpracováním osobních údajů Uživatel poskytuje Správci na dobu neurčitou s tím, že svůj udělený souhlas může Uživatel kdykoliv na drese správce info@realitymix.cz odvolat. Správce garantuje Uživateli i další práva uvedené v ustanovení §11 a §21 zákoba č. 101/200 Sb. Ve znění pozdějších předpisů.
Více informací o zpracování údajů získáte zde (realitymix.cz/zasady-ochrany-osobnich-udaju)