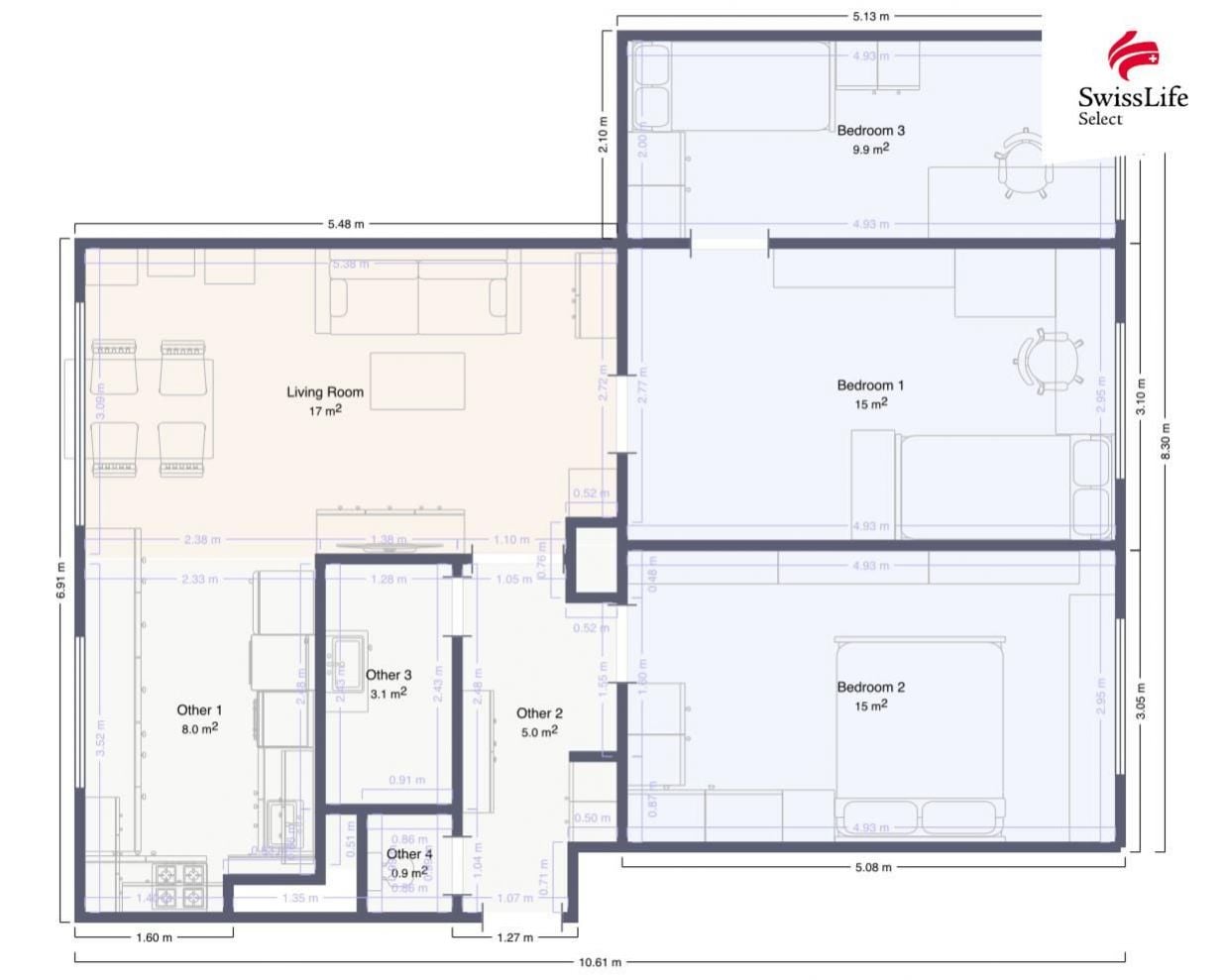
Hledáte byt, který nabídne dostatek prostoru pro rodinu, výborný technický stav a lokalitu, kde máte všechno důležité skutečně po ruce? V tom případě by vás mohl zaujmout tento byt o dispozici 4+1 a výměře 79 m v oblíbené části Trutnova Kryblice.
Byt se nachází ve 3. patře cihlového bytového domu a prošel rekonstrukcí v roce 2016. Díky tomu je ve výborném technickém stavu a připravený k pohodlnému bydlení bez nutnosti zásadních investic. Příjemným benefitem je také sklep o velikosti přibližně 10 m, který nabídne dostatek úložného prostoru pro věci, které není potřeba mít každý den po ruce.
Velkou předností této nabídky je samotná lokalita. V pěší dostupnosti najdete školku, školu, zastávku MHD, obchod i další služby. A když budete chtít na chvíli vypnout od běžného provozu, do lesa se dostanete během několika minut chůze. Právě tohle spojení každodenní praktičnosti a blízkosti přírody dělá z Kryblice dlouhodobě vyhledávané místo pro rodinné bydlení.
Dům je zateplený, parkování je možné v okolí domu a byt je v osobním vlastnictví, takže financování hypotečním úvěrem je samozřejmostí. Měsíční náklady se pohybují přibližně kolem 2.200 Kč na osobu, z toho fond oprav činí cca 500 Kč na osobu.
Interiér bytu působí velmi dobře udržovaným dojmem. Příjemným prvkem jsou také parketové podlahy, které mají svůj charakter a po případné renovaci mohou být výrazným estetickým bonusem celého interiéru.
Byt bude k dispozici od 1. 7. 2026. Součást vybavení, které v bytě zůstane, je možná po dohodě.
Pokud hledáte prostorné a dobře situované rodinné bydlení v Trutnově, které kombinuje praktičnost, dobrou dostupnost a příjemné okolí, rád vám tuto nemovitost osobně představím.
Pomocí naší hypoteční kalkulačky si můžete udělat orientační představu o výši měsíčních splátek hypotéky. O vše ostatní se pak postaráme my ve spolupráci s našimi obchodními partnery.
20 203 Kč
* Odhadovaná měsíční splátka vychází z výše úvěru Kč s pevnou úrokovou sazbou % po celou dobu trvání úvěru.
Prodáváte nemovitost a potřebujete zjistit její reálnou hodnotu?
Uživatel serveru RealityMIX.cz (dále jen „Server“) dostupného na internetové adrese (URL) https://www.realitymix.cz, který provozuje společnost DALTEN media s.r.o., se sídlem Na Harfě 916/9a, Praha 9, 190 00, IČO: 271 35 306 (dále jen „Správce“) jako provozovateli tohoto Serveru uděluje svůj výslovný souhlas v souladu s ustanovením § 5 zákona č. 101/2000 Sb. O ochraně osobních údajů a o změně některých zákonů, v platném znění (dále jen „zákon o ochraně osobních údajů“), se zpracováním uživatelem poskytnutých osobních údajů a dalších dat.
Uživatel poskytuje Správci osobní údaje v rozsahu: jméno, příjmení, e-mailová adresa, telefonický kontakt a další data, a to z důvodu projeveného zájmu o nemovitost, kde prostřednictvím služby Serveru Správce osloví Uživatel inzerenta uvedeného v detailu
nemovitosti - Swiss Life Select Reality (IČ 24260444) se zájmem o jeho služby. Tato společnost je součástí seskupení/sítě/franšízového modelu realitních kanceláří, jejich seznam můžete zobrazit kliknutím na tento odkaz.
Fincentrum a.s. (IČ 24260444) , Swiss Life Select Reality (IČ 24260444)
Uživatel tyto osobní údaje poskytuje dobrovolně a bere na vědomí, že součástí služeb Správce, které Správce Uživateli poskytuje, je vyhledání všech Uživateli vyhovujících (dle parametrů - cena, typ nemovitosti, lokalita atd.) nemovitostí. Správce za tímto účelem provozuje aplikace Hlídací pes a newsletter. Tyto služby je možné z každého zaslaného emailu odhlásit. Souhlas se zpracováním osobních údajů Uživatel poskytuje Správci na dobu neurčitou s tím, že svůj udělený souhlas může Uživatel kdykoliv na drese správce info@realitymix.cz odvolat. Správce garantuje Uživateli i další práva uvedené v ustanovení §11 a §21 zákoba č. 101/200 Sb. Ve znění pozdějších předpisů.
Více informací o zpracování údajů získáte zde (realitymix.cz/zasady-ochrany-osobnich-udaju)