Nabízíme k pronájmu prostornou halu o výměře 2072 m² v lokalitě Vésky, která je ideální pro skladování, logistiku i výrobu.
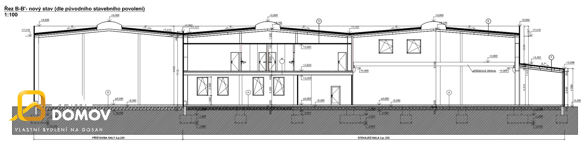
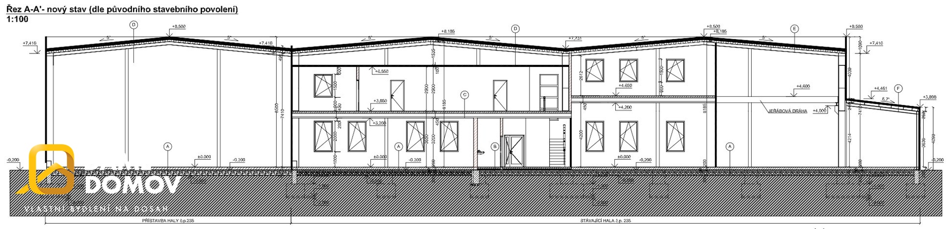
Hala disponuje výškou 6 až 8 metrů, což umožňuje maximální využití prostoru – ať už pro regálové systémy, manipulaci s materiálem nebo výrobní technologie.
Velkou výhodou jsou střešní světlíky, které zajišťují dostatek denního světla po celý den. Díky tomu nejen zlepšíte pracovní prostředí, ale zároveň snížíte náklady na energie.
Přímo v hale se nachází jeřáb, který výrazně usnadňuje manipulaci s těžkými břemeny a zvyšuje efektivitu provozu.
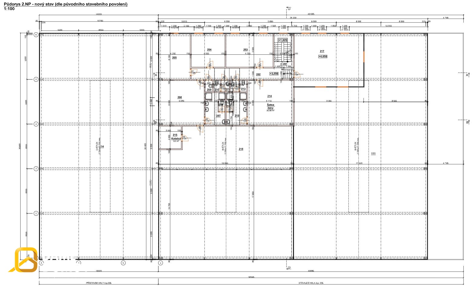
Součástí objektu je také administrativní zázemí v patře, kde najdete kanceláře, jídelnu i sociální zařízení – vše potřebné pro pohodlný chod firmy na jednom místě.
Hlavní výhody:
plocha haly 1700 m²
výška 6–8 m
vhodné pro skladování, logistiku i výrobu
světlíky = úspora energií
jeřáb přímo v hale
kompletní administrativní zázemí
rezervovaný příkon 400A
Dostupné od 1.5. 2026
Pokud hledáte prostor, který vám poskytne dostatek kapacity nejen dnes, ale i do budoucna, neváhejte se ozvat. Rádi vám sdělíme více informací a domluvíme osobní prohlídku. RK Dáme Domov, makléř Roman Krist
Uživatel serveru RealityMIX.cz (dále jen „Server“) dostupného na internetové adrese (URL) https://www.realitymix.cz, který provozuje společnost DALTEN media s.r.o., se sídlem Na Harfě 916/9a, Praha 9, 190 00, IČO: 271 35 306 (dále jen „Správce“) jako provozovateli tohoto Serveru uděluje svůj výslovný souhlas v souladu s ustanovením § 5 zákona č. 101/2000 Sb. O ochraně osobních údajů a o změně některých zákonů, v platném znění (dále jen „zákon o ochraně osobních údajů“), se zpracováním uživatelem poskytnutých osobních údajů a dalších dat.
Uživatel poskytuje Správci osobní údaje v rozsahu: jméno, příjmení, e-mailová adresa, telefonický kontakt a další data, a to z důvodu projeveného zájmu o nemovitost, kde prostřednictvím služby Serveru Správce osloví Uživatel inzerenta uvedeného v detailu
nemovitosti - Dáme domov s.r.o. (IČ 19369859) se zájmem o jeho služby.
Uživatel tyto osobní údaje poskytuje dobrovolně a bere na vědomí, že součástí služeb Správce, které Správce Uživateli poskytuje, je vyhledání všech Uživateli vyhovujících (dle parametrů - cena, typ nemovitosti, lokalita atd.) nemovitostí. Správce za tímto účelem provozuje aplikace Hlídací pes a newsletter. Tyto služby je možné z každého zaslaného emailu odhlásit. Souhlas se zpracováním osobních údajů Uživatel poskytuje Správci na dobu neurčitou s tím, že svůj udělený souhlas může Uživatel kdykoliv na drese správce info@realitymix.cz odvolat. Správce garantuje Uživateli i další práva uvedené v ustanovení §11 a §21 zákoba č. 101/200 Sb. Ve znění pozdějších předpisů.
Více informací o zpracování údajů získáte zde (realitymix.cz/zasady-ochrany-osobnich-udaju)