Prodej řadového rodinného domu 5+kk v Těšově u UB s pozemkem (č.7) 636 m².
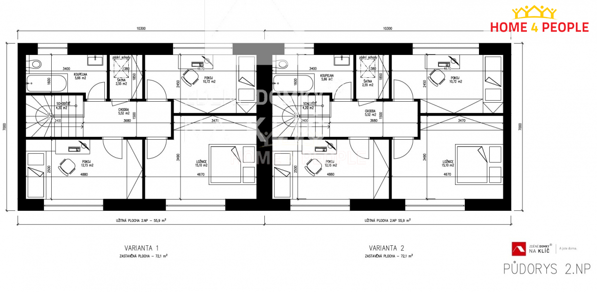
Zprostředkujeme Vám exkluzivní prodej zděného řadového rodinného domu typu ROW120+G o velikosti 5+kk 120 m² v Uherském Brodě části Těšov. Patrový dům ROW120 je typ rodinného domu vhodný do rovinatého, ale i mírně svažitého terénu. Součásti uvedené ceny, která již zahrnuje DPH je dům na klíč, inženýrské sítě včetně připojeného místa EDG (EON), mimo plynu, příjezdová komunikace, veřejné osvětlení, pozemek a veškeré projektové práce a stavební povolení. Přípojná místa budou vyvedena na pozemku. Pozemek (číslo.7) o rozloze 636 m² je na klidném místě obce. Šíře pozemku je 10,3 m. Navíc k nabízenému pozemku je i podíl na dalším pozemku za zahradou. Dle územního plánu je pozemek veden a schválen pro rodinné bydlení. Jedná se o zděnou stavbu a nabízí se ve variantě na klíč. Topení je řešeno nízko nákladovým podlahovým topením, rekuperací a fotovoltaickými panely. Uvedená cena domu obsahuje základovou desku, DPH a stavba bude provedena na klíč a předána po kolaudaci k okamžitému užívání. Parametry domu: užitná plocha 120 m² zastavěná plocha domu 72 m². V přízemí domu se nachází hlavní obytný prostor s odděleným kuchyňským koutem, sklad, úložný prostor pod schodištěm, technickou místnost a 2x WC s umyvadlem dvě samostatné zařízené koupelny, pracovna a praktická místnost třeba pro zahradní nábytek. V patře se nachází 3 pokoje, koupelna s WC a šatna. V blízkosti je veškerá občanská vybavenost. Možnost vybudovat na úkor pracovny garáž. Dotaci na fotovoltaické panely vyřídíme. Projekt zahrnuje výstavbu 10 domů. (Součástí ceny není kuchyňská linka a světla – dokážeme za zvýhodněných podmínek zajistit přes naše dodavatele). Financování zajišťujeme a můžete využití našich služeb, při prodeji Vaší nemovitosti. Doporučuji! Ev. číslo: 29908.
Cena:
8 689 500 Kč
Poznámka:
Cena včetně výstavby RD, IS, příjezdové komunikace a DPH.
Pomocí naší hypoteční kalkulačky si můžete udělat orientační představu o výši měsíčních splátek hypotéky. O vše ostatní se pak postaráme my ve spolupráci s našimi obchodními partnery.
35 181 Kč
* Odhadovaná měsíční splátka vychází z výše úvěru Kč s pevnou úrokovou sazbou % po celou dobu trvání úvěru.
Uživatel serveru RealityMIX.cz (dále jen „Server“) dostupného na internetové adrese (URL) https://www.realitymix.cz, který provozuje společnost DALTEN media s.r.o., se sídlem Na Harfě 916/9a, Praha 9, 190 00, IČO: 271 35 306 (dále jen „Správce“) jako provozovateli tohoto Serveru uděluje svůj výslovný souhlas v souladu s ustanovením § 5 zákona č. 101/2000 Sb. O ochraně osobních údajů a o změně některých zákonů, v platném znění (dále jen „zákon o ochraně osobních údajů“), se zpracováním uživatelem poskytnutých osobních údajů a dalších dat.
Uživatel poskytuje Správci osobní údaje v rozsahu: jméno, příjmení, e-mailová adresa, telefonický kontakt a další data, a to z důvodu projeveného zájmu o nemovitost, kde prostřednictvím služby Serveru Správce osloví Uživatel inzerenta uvedeného v detailu
nemovitosti - HOME 4 PEOPLE (IČ 29132886) se zájmem o jeho služby. Tato společnost je součástí seskupení/sítě/franšízového modelu realitních kanceláří, jejich seznam můžete zobrazit kliknutím na tento odkaz.
Dumrealit.cz (IČ 00537861) , HOME 4 PEOPLE (IČ 29132886) , Reality 11 (IČ 29132886) , REAL ESTATE CZECH REPUBLIC a.s. (IČ 29132886) , Národní Realitní Holding a.s. (IČ 02918897)
Uživatel tyto osobní údaje poskytuje dobrovolně a bere na vědomí, že součástí služeb Správce, které Správce Uživateli poskytuje, je vyhledání všech Uživateli vyhovujících (dle parametrů - cena, typ nemovitosti, lokalita atd.) nemovitostí. Správce za tímto účelem provozuje aplikace Hlídací pes a newsletter. Tyto služby je možné z každého zaslaného emailu odhlásit. Souhlas se zpracováním osobních údajů Uživatel poskytuje Správci na dobu neurčitou s tím, že svůj udělený souhlas může Uživatel kdykoliv na drese správce info@realitymix.cz odvolat. Správce garantuje Uživateli i další práva uvedené v ustanovení §11 a §21 zákoba č. 101/200 Sb. Ve znění pozdějších předpisů.
Více informací o zpracování údajů získáte zde (realitymix.cz/zasady-ochrany-osobnich-udaju)