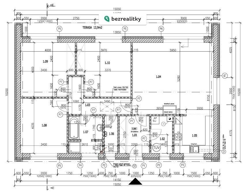
Nabízíme k prodeji novostavbu RD situovanou v obci Újezd, místní části Rybníček. Jde o kvalitní, dokončený, moderní, cihlový, samostatně stojící dům s užitnou plochou 110 m² a dispozicí 4+kk, prostorným půdním prostorem a velkou krytou terasou, pro komfortní bydlení (viz. přiložený půdorys) s ideální orientací zahrady na jihozápad. Novostavba je aktuálně v procesu kolaudace.
Pozemek má plochu 800 m² a dvě parkovací stání pro osobní automobily. Energetická třída A (kategorie mimořádně úsporná) znamená velmi nízkou spotřebu energie. Díky těmto parametrům můžete v dlouhodobém horizontu očekávat úsporu na energiích. Vytápění je řešeno tepelným čerpadlem a teplovodním podlahovým topením. Výměnu vzduchu zajišťuje větrání s rekuperací tepla.
Dojezdová vzdálenost od Olomouce je 22 km, od Litovle 15 km, od Šternberka 9 km a od Uničova 6 km.
Uvedená cena za nemovitost je včetně pozemku, zhotovených zpevněných ploch (nájezdy, chodníčky) a oplocení.
Kontaktujte nás na uvedeném telefonním čísle nebo e-mailu. Podrobné informace a fotografie na: rdrybnicek.cz
Nemáme zájem o žádnou formu zprostředkování prodeje.
Nepřejeme si být kontaktováni realitními kancelářemi. Tato nemovitost je určena výhradně přímým zájemcům o koupi. Na inzerát můžete také reagovat přímo na webu Bezrealitky.
Pomocí naší hypoteční kalkulačky si můžete udělat orientační představu o výši měsíčních splátek hypotéky. O vše ostatní se pak postaráme my ve spolupráci s našimi obchodními partnery.
35 588 Kč
* Odhadovaná měsíční splátka vychází z výše úvěru Kč s pevnou úrokovou sazbou % po celou dobu trvání úvěru.
reklama
reklama
Mapa
* Umístění na mapě je na základě GPS informací dodaných realitní kanceláří.
* Pozice na mapě je pouze orientační.
Souhlas se zpracováním osobních údajů
Uživatel serveru RealityMIX.cz (dále jen „Server“) dostupného na internetové adrese (URL) https://www.realitymix.cz, který provozuje společnost DALTEN media s.r.o., se sídlem Na Harfě 916/9a, Praha 9, 190 00, IČO: 271 35 306 (dále jen „Správce“) jako provozovateli tohoto Serveru uděluje svůj výslovný souhlas v souladu s ustanovením § 5 zákona č. 101/2000 Sb. O ochraně osobních údajů a o změně některých zákonů, v platném znění (dále jen „zákon o ochraně osobních údajů“), se zpracováním uživatelem poskytnutých osobních údajů a dalších dat.
Uživatel poskytuje Správci osobní údaje v rozsahu: jméno, příjmení, e-mailová adresa, telefonický kontakt a další data, a to z důvodu projeveného zájmu o nemovitost, kde prostřednictvím služby Serveru Správce osloví Uživatel inzerenta uvedeného v detailu
nemovitosti - Bezrealitky s.r.o. (IČ 08063168) se zájmem o jeho služby.
Uživatel tyto osobní údaje poskytuje dobrovolně a bere na vědomí, že součástí služeb Správce, které Správce Uživateli poskytuje, je vyhledání všech Uživateli vyhovujících (dle parametrů - cena, typ nemovitosti, lokalita atd.) nemovitostí. Správce za tímto účelem provozuje aplikace Hlídací pes a newsletter. Tyto služby je možné z každého zaslaného emailu odhlásit. Souhlas se zpracováním osobních údajů Uživatel poskytuje Správci na dobu neurčitou s tím, že svůj udělený souhlas může Uživatel kdykoliv na drese správce info@realitymix.cz odvolat. Správce garantuje Uživateli i další práva uvedené v ustanovení §11 a §21 zákoba č. 101/200 Sb. Ve znění pozdějších předpisů.
Více informací o zpracování údajů získáte zde (realitymix.cz/zasady-ochrany-osobnich-udaju)