Představujeme vám jedinečnou investiční příležitost v obci Úpice – obchodní prostory o celkové ploše přibližně 1705 m2, rozprostírající se ve třech nadzemních podlažích. Tento objekt již prošel velmi nákladnou a důkladnou sanací spodní stavby, což představuje zásadní základ pro vaše budoucí plány a minimalizuje rizika spojená s nejnáročnější fází rekonstrukce. Přestože je dům připraven k dalším úpravám a transformaci podle vašich představ, klíčové stavební zásahy odvlhčení již byly dokončeny, což otevírá dveře k realizaci vašich vizí.
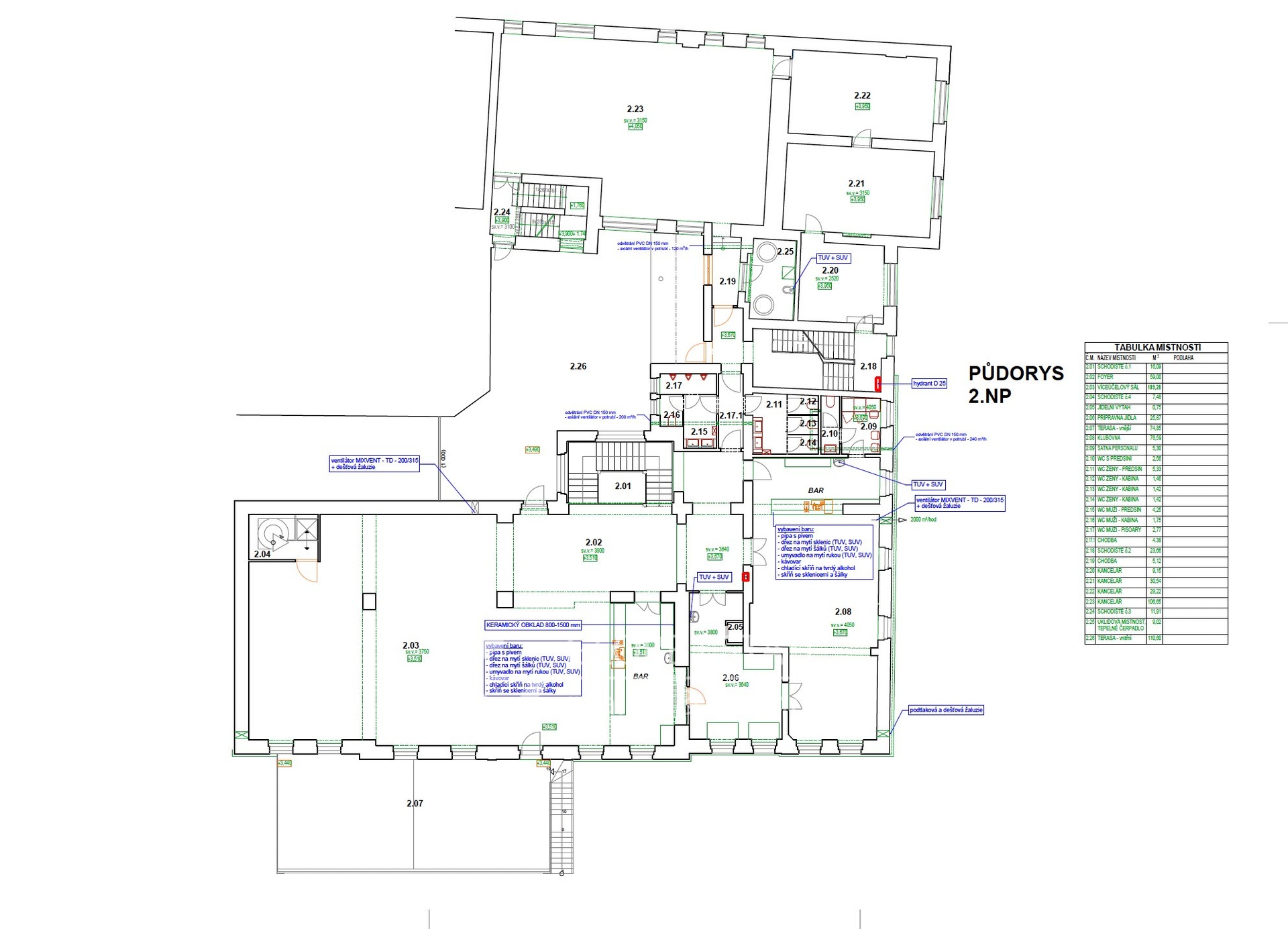
V současné době jsou prostory flexibilně využívány pro skladování nebo jako místo pro pořádání kulturních akcí, což dokazuje jejich okamžitou adaptabilitu. Druhé nadzemní podlaží bylo částečně zrekonstruováno právě pro tyto účely a nabízí moderní vzduchotechniku, kompletně zrekonstruované sociální zařízení a osazené požární hydranty, zajišťující bezpečnost a komfort pro návštěvníky. Tato již existující infrastruktura poskytuje okamžitou hodnotu a možnost generovat příjem, zatímco plánujete další rozvoj.
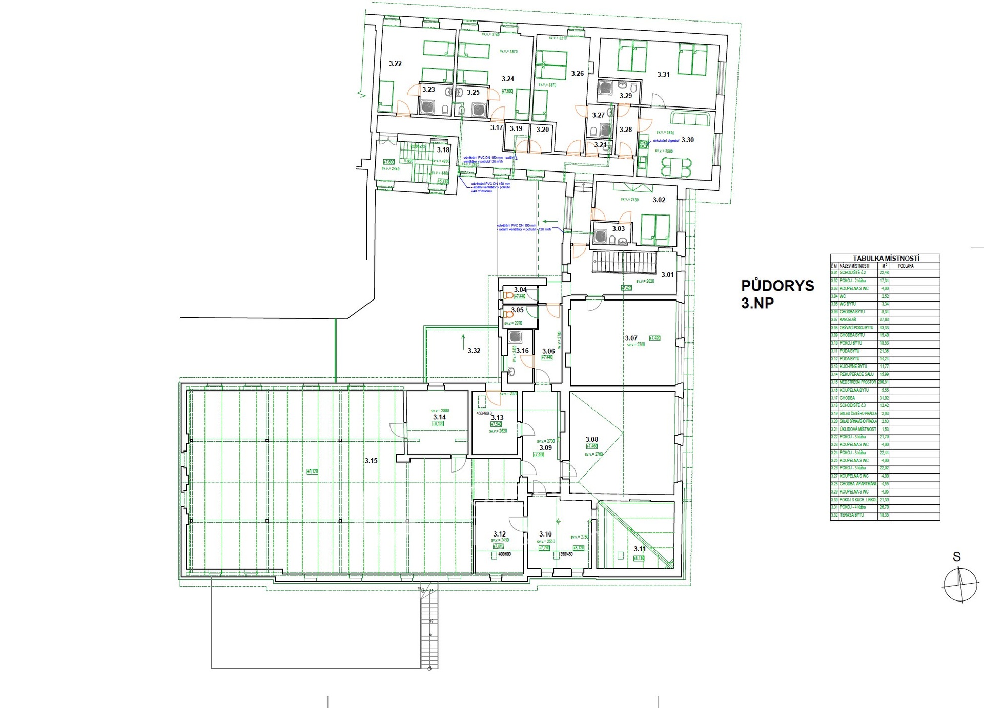
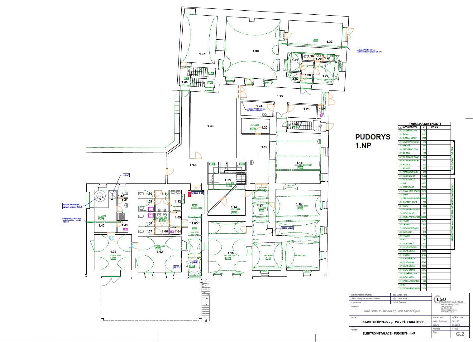
Kromě stávajícího stavu je součástí prodeje i kompletní projektová dokumentace, která detailně rozpracovává potenciál budovy. Podle tohoto projektu se v přízemí může nacházet atraktivní restaurace, v prvním nadzemním podlaží je pak plánován moderní bar, klubovna a veškeré potřebné zázemí. Druhé nadzemní podlaží je ideálně navrženo pro vytvoření komfortních bytových jednotek, což z objektu činí ideální mix pro komerční i rezidenční využití. Tato flexibilita otevírá široké spektrum investičních strategií, od pronájmu komerčních prostor po prodej bytů.
Tato nemovitost představuje mimořádnou šanci pro vizionáře a investory, kteří hledají projekt s pevným základem a jasnou cestou k budoucímu zhodnocení. S již provedenou sanací a připravenou projektovou dokumentací se jedná o investici s obrovským potenciálem v žádané lokalitě. Neváhejte a objevte všechny možnosti, které tento unikátní objekt v Úpici nabízí.
Kontaktujte nás pro bližší informace a prohlídku, abyste si mohli představit vaši budoucí úspěšnou realizaci.
Cena:
4 999 999 Kč
Poznámka:
včetně právního a hypotečního servisu, včetně provize RK, cena k jednání
Pomocí naší hypoteční kalkulačky si můžete udělat orientační představu o výši měsíčních splátek hypotéky. O vše ostatní se pak postaráme my ve spolupráci s našimi obchodními partnery.
20 244 Kč
* Odhadovaná měsíční splátka vychází z výše úvěru Kč s pevnou úrokovou sazbou % po celou dobu trvání úvěru.
Uživatel serveru RealityMIX.cz (dále jen „Server“) dostupného na internetové adrese (URL) https://www.realitymix.cz, který provozuje společnost DALTEN media s.r.o., se sídlem Na Harfě 916/9a, Praha 9, 190 00, IČO: 271 35 306 (dále jen „Správce“) jako provozovateli tohoto Serveru uděluje svůj výslovný souhlas v souladu s ustanovením § 5 zákona č. 101/2000 Sb. O ochraně osobních údajů a o změně některých zákonů, v platném znění (dále jen „zákon o ochraně osobních údajů“), se zpracováním uživatelem poskytnutých osobních údajů a dalších dat.
Uživatel poskytuje Správci osobní údaje v rozsahu: jméno, příjmení, e-mailová adresa, telefonický kontakt a další data, a to z důvodu projeveného zájmu o nemovitost, kde prostřednictvím služby Serveru Správce osloví Uživatel inzerenta uvedeného v detailu
nemovitosti - GLOBE ESTATE s.r.o. (IČ 11852828) se zájmem o jeho služby.
Uživatel tyto osobní údaje poskytuje dobrovolně a bere na vědomí, že součástí služeb Správce, které Správce Uživateli poskytuje, je vyhledání všech Uživateli vyhovujících (dle parametrů - cena, typ nemovitosti, lokalita atd.) nemovitostí. Správce za tímto účelem provozuje aplikace Hlídací pes a newsletter. Tyto služby je možné z každého zaslaného emailu odhlásit. Souhlas se zpracováním osobních údajů Uživatel poskytuje Správci na dobu neurčitou s tím, že svůj udělený souhlas může Uživatel kdykoliv na drese správce info@realitymix.cz odvolat. Správce garantuje Uživateli i další práva uvedené v ustanovení §11 a §21 zákoba č. 101/200 Sb. Ve znění pozdějších předpisů.
Více informací o zpracování údajů získáte zde (realitymix.cz/zasady-ochrany-osobnich-udaju)