Jedinečná příležitost na zhotovení půdní bytové jednotky dle svých představ v centru Ústí nad Labem
Ojedinělá příležitost v centru krajského města Ústí nad Labem.
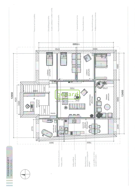
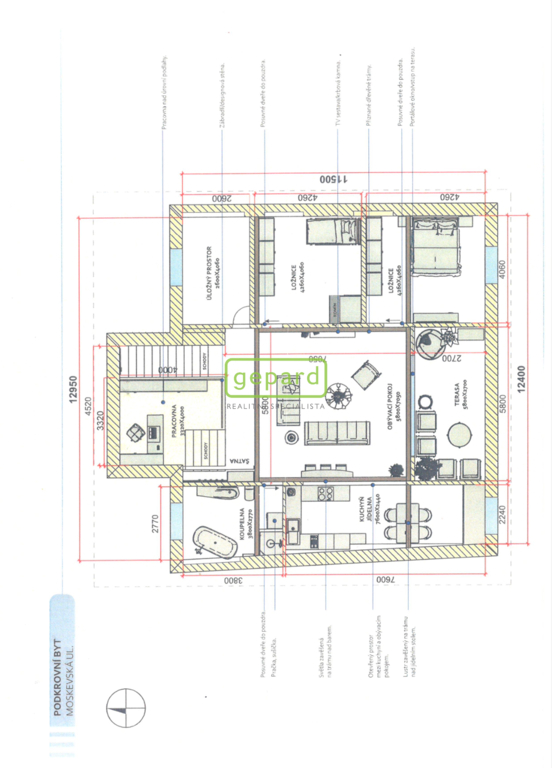
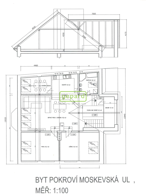
Nabízíme k prodeji půdní prostory se stavebním povolením v ulici Moskevská 1581/22, Ústí nad Labem (bytová jednotka č. 7). Tento prostor v centru Ústí nad Labem se nachází v pátém nadzemním podlaží bytového domu a představuje skvělou investiční příležitost či vlastní královské bydlení.
Lze vybudovat jeden exkluzivní nadstandardní půdní byt s rozlohou dle prohlášení vlastníka 159,8 m2. Můžete si vybrat zdali budete chtít unikátní terasu a kochat se výhledem či se bez ní obejít. Doporučujeme využít služeb současné stavební firmy, která zhotovila ostatní bytové jednotky v tomto domě. Rozpočet na vyhotovení bez terasy činí 4,2 mil. Kč či s terasou ve výši 4,72 mil. Kč.
Lokalita nabízí jedním slovem VŠE. Do 100 m od bytu se nachází namátkou kulturní a veřejný sál Hraničář, pošta, Billa, Teta, Alza, nespočet restaurací a obchodů.
Do 700 m OC Forum (více než 100 obchodů s kinem Cinema City), divadlo, Univerzita Jana Evangelisty Purkyně s osmi fakultami, obchodní akademie a jazyková škola, magistrát, krajský úřad, banky, pojišťovny a desítky a desítky obchodů, restaurací a úřadů.
V této lokalitě najdou ideální bydlení zájemci, kteří chtějí být vždy nablízku velkoměstu severu, netrávit dlouhý čas dojížděním za prací nebo pro ty, kteří hledají investiční příležitost, kapitálové zhodnocení a zároveň výnos z potencionálního pronájmu.
Možností do budoucna je ovlivnit vybudování společného výtahu. V domě je nově zřízeno SVJ. Možnost přikoupit sklepní prostory. Vstup do budoucího bytu je z podesty mezi 4. a 5. N.P., součástí bytu je část schodiště mezi 4. a 5. N.P. a podesta mezi 4. a 5. N.P.
Parkování možné na ulici před domem. Do budoucna možné vlastní parkovací místo u domu.
Nechte se inspirovat a vytvořte si ideální prostor v srdci Ústí nad Labem.
Neváhejte kontaktovat a zjistit na vlastní oči potenciál této nabídky.
Uvedené výměry jsou orientační. V případě více zájemců bude nemovitost prodána nejlepší nabídce a majitel si vyhrazuje právo vybrat kupujícího na základě jím zvolených kritérií. Veškeré zveřejněné údaje obsažené v tomto inzerátu mají pouze informativní charakter a nejsou nabídkou ve smyslu § 1731 nebo § 1732 občanského zákoníku, ani se nejedná o veřejný příslib dle § 1733 občanského zákoníku.
Pomocí naší hypoteční kalkulačky si můžete udělat orientační představu o výši měsíčních splátek hypotéky. O vše ostatní se pak postaráme my ve spolupráci s našimi obchodními partnery.
10 081 Kč
* Odhadovaná měsíční splátka vychází z výše úvěru Kč s pevnou úrokovou sazbou % po celou dobu trvání úvěru.
Prodáváte nemovitost a potřebujete zjistit její reálnou hodnotu?
Uživatel serveru RealityMIX.cz (dále jen „Server“) dostupného na internetové adrese (URL) https://www.realitymix.cz, který provozuje společnost DALTEN media s.r.o., se sídlem Na Harfě 916/9a, Praha 9, 190 00, IČO: 271 35 306 (dále jen „Správce“) jako provozovateli tohoto Serveru uděluje svůj výslovný souhlas v souladu s ustanovením § 5 zákona č. 101/2000 Sb. O ochraně osobních údajů a o změně některých zákonů, v platném znění (dále jen „zákon o ochraně osobních údajů“), se zpracováním uživatelem poskytnutých osobních údajů a dalších dat.
Uživatel poskytuje Správci osobní údaje v rozsahu: jméno, příjmení, e-mailová adresa, telefonický kontakt a další data, a to z důvodu projeveného zájmu o nemovitost, kde prostřednictvím služby Serveru Správce osloví Uživatel inzerenta uvedeného v detailu
nemovitosti - GEPARD REALITY/Motyčka Reality a Finance (IČ 21201722) se zájmem o jeho služby. Tato společnost je součástí seskupení/sítě/franšízového modelu realitních kanceláří, jejich seznam můžete zobrazit kliknutím na tento odkaz.
GEPARD REALITY/BOARS (IČ 26066734) , GEPARD REALITY/AB Domus (IČ 27611736) , GEPARD REALITY/Absoluta Real (IČ 28947444) , GEPARD REALITY/REALITY MUZEJKA (IČ 60739606) , GEPARD REALITY/KWitka Group Reality (IČ 06295428) , GEPARD REALITY/Pallas Athena Group (IČ 28528263) , GEPARD REALITY/Living (IČ 27892531) , GEPARD REALITY/Tobi reality a finance (IČ 11733837) , GEPARD REALITY/Nesreality (IČ 08480150) , GEPARD REALITY/ČESKÁ HYPOTEČNÍ reality (IČ 14153971) , GEPARD REALITY/Specialisté na bydlení (IČ 04779282) , GEPARD REALITY/New Home (IČ 14053365) , GEPARD REALITY/Dream nemovitosti (IČ 17567807) , GEPARD REALITY/Omega Real Estate Agency (IČ 17637635) , GEPARD REALITY/ILIĆ REALITY (IČ 07656645) , GEPARD REALITY/Motyčka Reality a Finance (IČ 21201722) , GEPARD REALITY/MARATHON Reality (IČ 21674451) , GEPARD REALITY/Kuba’s Eleven (IČ 21678294) , GEPARD REALITY/Kyjonka Reality & Hypotéky (IČ 23001356) , GEPARD REALITY/WestVary (IČ 23808756) , GEPARD REALITY (IČ 28528263)
Uživatel tyto osobní údaje poskytuje dobrovolně a bere na vědomí, že součástí služeb Správce, které Správce Uživateli poskytuje, je vyhledání všech Uživateli vyhovujících (dle parametrů - cena, typ nemovitosti, lokalita atd.) nemovitostí. Správce za tímto účelem provozuje aplikace Hlídací pes a newsletter. Tyto služby je možné z každého zaslaného emailu odhlásit. Souhlas se zpracováním osobních údajů Uživatel poskytuje Správci na dobu neurčitou s tím, že svůj udělený souhlas může Uživatel kdykoliv na drese správce info@realitymix.cz odvolat. Správce garantuje Uživateli i další práva uvedené v ustanovení §11 a §21 zákoba č. 101/200 Sb. Ve znění pozdějších předpisů.
Více informací o zpracování údajů získáte zde (realitymix.cz/zasady-ochrany-osobnich-udaju)