Pokud jste hledali byt, kde bude mít každý člen domácnosti svůj vlastní prostor, klid a soukromí, tak jste na správné adrese.
Nemovitost je v původním stavu, takže pokud jste chtěli mít bydlení přesně podle svého - tady máte příležitost! Byt se nachází v 1. nadzemním podlaží panelového domu a jeho celková podlahová plocha činí 81,6 m².
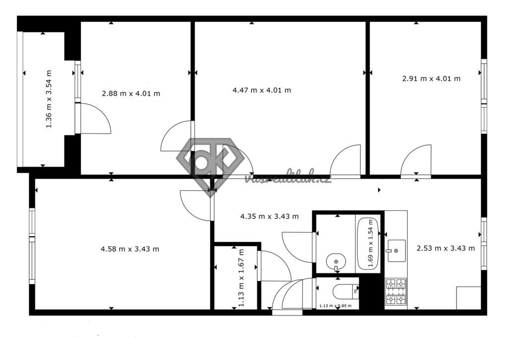
Jaká je dispozice bytu?
- předsíň
- kuchyně
- prostorný obývací pokoj
- tři pokoje
- koupelna
- toaleta
- komora
Nechybí ani lodžie a sklep.
Pár technických informací?
- podlahová plocha 81,6 m²
- původní stav - ideální k rekonstrukci
- panelový dům
- 1. nadzemní podlaží
- dálkové vytápění a ohřev vody
- plastová okna
Pro koho je byt ideální?
- pro rodinu, která potřebuje dostatek prostoru
- pro ty, kteří si chtějí bydlení upravit přesně podle svých představ a potřeb
- pro investory hledající nemovitost s potenciálem zhodnocení
- pro každého, kdo ocení praktickou dispozici a pohodlí života v bytě
O jakou se jedná lokalitu?
Ústí nad Orlicí nabízí kompletní občanskou vybavenost, jakou můžeme od okresního města očekávat. Najdete zde školy, školky, obchody, zdravotnická zařízení i široké možnosti sportovního a kulturního vyžití.
Město je dobře dopravně dostupné a zároveň obklopené krásnou přírodou.
Přijďte se podívat a objevte potenciál tohoto bytu na vlastní oči. Těším se na Vás na prohlídce.
Poznámka:
– uvedené výměry jsou pouze orientační
– v případě více zájemců bude nemovitost prodána nejlepší nabídce a majitel si vyhrazuje právo vybrat kupujícího na základě jim zvolených kritérií
– veškeré zveřejněné údaje obsažené v tomto inzerátu mají pouze informativní charakter a nejsou nabídkou ve smyslu § 1731 nebo § 1732 občanského zákoníku, ani se nejedná o veřejný příslib dle § 1733 občanského zákoníku
Pomocí naší hypoteční kalkulačky si můžete udělat orientační představu o výši měsíčních splátek hypotéky. O vše ostatní se pak postaráme my ve spolupráci s našimi obchodními partnery.
16 843 Kč
* Odhadovaná měsíční splátka vychází z výše úvěru Kč s pevnou úrokovou sazbou % po celou dobu trvání úvěru.
Prodáváte nemovitost a potřebujete zjistit její reálnou hodnotu?
Uživatel serveru RealityMIX.cz (dále jen „Server“) dostupného na internetové adrese (URL) https://www.realitymix.cz, který provozuje společnost DALTEN media s.r.o., se sídlem Na Harfě 916/9a, Praha 9, 190 00, IČO: 271 35 306 (dále jen „Správce“) jako provozovateli tohoto Serveru uděluje svůj výslovný souhlas v souladu s ustanovením § 5 zákona č. 101/2000 Sb. O ochraně osobních údajů a o změně některých zákonů, v platném znění (dále jen „zákon o ochraně osobních údajů“), se zpracováním uživatelem poskytnutých osobních údajů a dalších dat.
Uživatel poskytuje Správci osobní údaje v rozsahu: jméno, příjmení, e-mailová adresa, telefonický kontakt a další data, a to z důvodu projeveného zájmu o nemovitost, kde prostřednictvím služby Serveru Správce osloví Uživatel inzerenta uvedeného v detailu
nemovitosti - Ondřej Kolář - vasrealitak.cz (IČ 02837579) se zájmem o jeho služby.
Uživatel tyto osobní údaje poskytuje dobrovolně a bere na vědomí, že součástí služeb Správce, které Správce Uživateli poskytuje, je vyhledání všech Uživateli vyhovujících (dle parametrů - cena, typ nemovitosti, lokalita atd.) nemovitostí. Správce za tímto účelem provozuje aplikace Hlídací pes a newsletter. Tyto služby je možné z každého zaslaného emailu odhlásit. Souhlas se zpracováním osobních údajů Uživatel poskytuje Správci na dobu neurčitou s tím, že svůj udělený souhlas může Uživatel kdykoliv na drese správce info@realitymix.cz odvolat. Správce garantuje Uživateli i další práva uvedené v ustanovení §11 a §21 zákoba č. 101/200 Sb. Ve znění pozdějších předpisů.
Více informací o zpracování údajů získáte zde (realitymix.cz/zasady-ochrany-osobnich-udaju)