NOVOSTAVBA RODINNÉHO DOMU NA ÚBOČÍ JAVORNÍKU – ROHANOV, CENTRÁLNÍ ŠUMAVA
Pozemek: o výměře 999 m2, zastavěná plocha stavbou 215 m2.
Lokalita: CENTRÁLNÍ ŠUMAVA, Rohanov, horská osada 735 m n.m, pod vrcholem mohutného Javorníku v 1.066 m n.m. s rozhlednou z níž se otevírá jeden z nekrásnějších šumavských panoramatických výhledů. Horské středisko s lyžařskými vleky, penziony a restauracemi. Známé je i místní přírodní koupaliště s kempem. Krajina s nejčistším ovzduším v ČR. Hluboké lesy na horských úbočích Javorníku a Ždánova a úžasné výhledy do kraje činí z této méně známé části Šumavy jedno z jejích nejhezčích míst. Blízko je i na dohled vzdálený lyžařský areál Zadov-Churáňov.
Poloha nemovitostí: na okraji rozvolněné horské zástavby rázovité osady je realizován solitérní rodinný dům, obklopený nádhernou šumavskou přírodou. Nejedná se však o úplnou samotu. Dům je dobře přístupný autem i v zimě. Krásné, slunné místo vyzařující klid a pohodu v idylické části Šumavy.
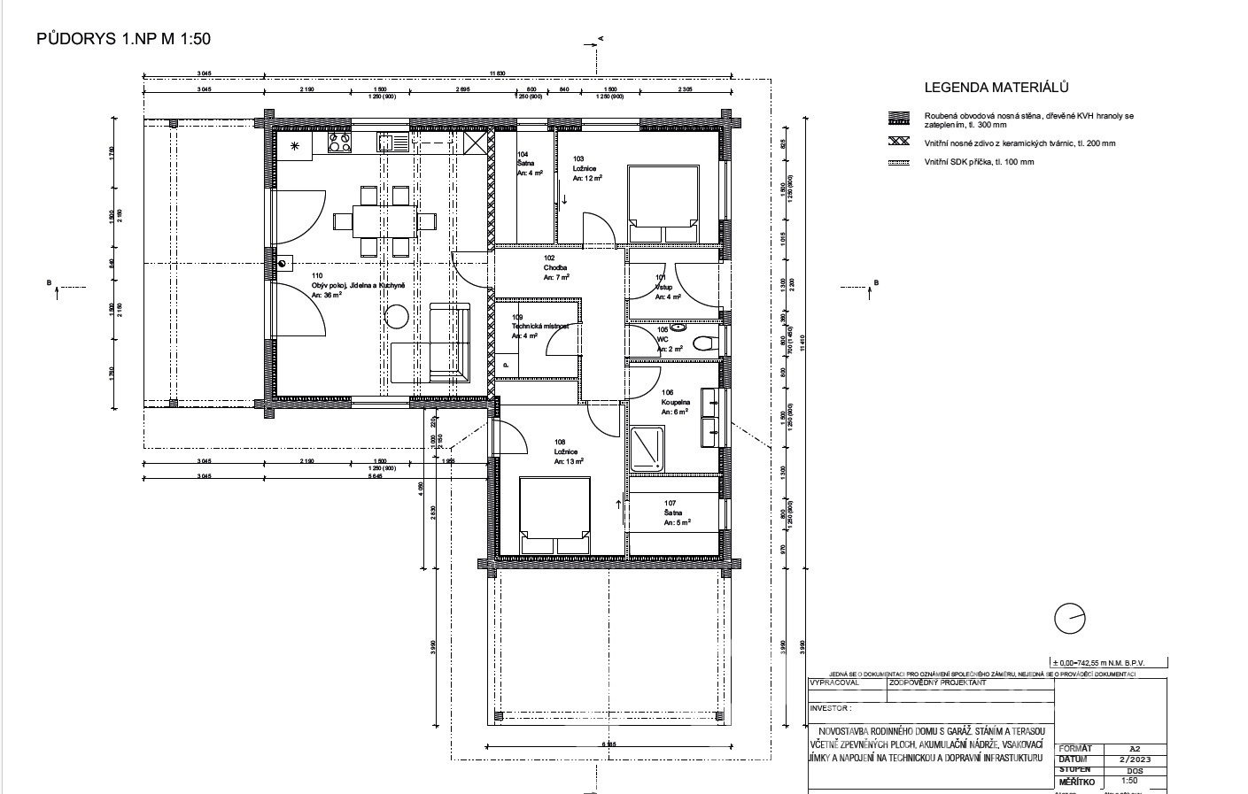
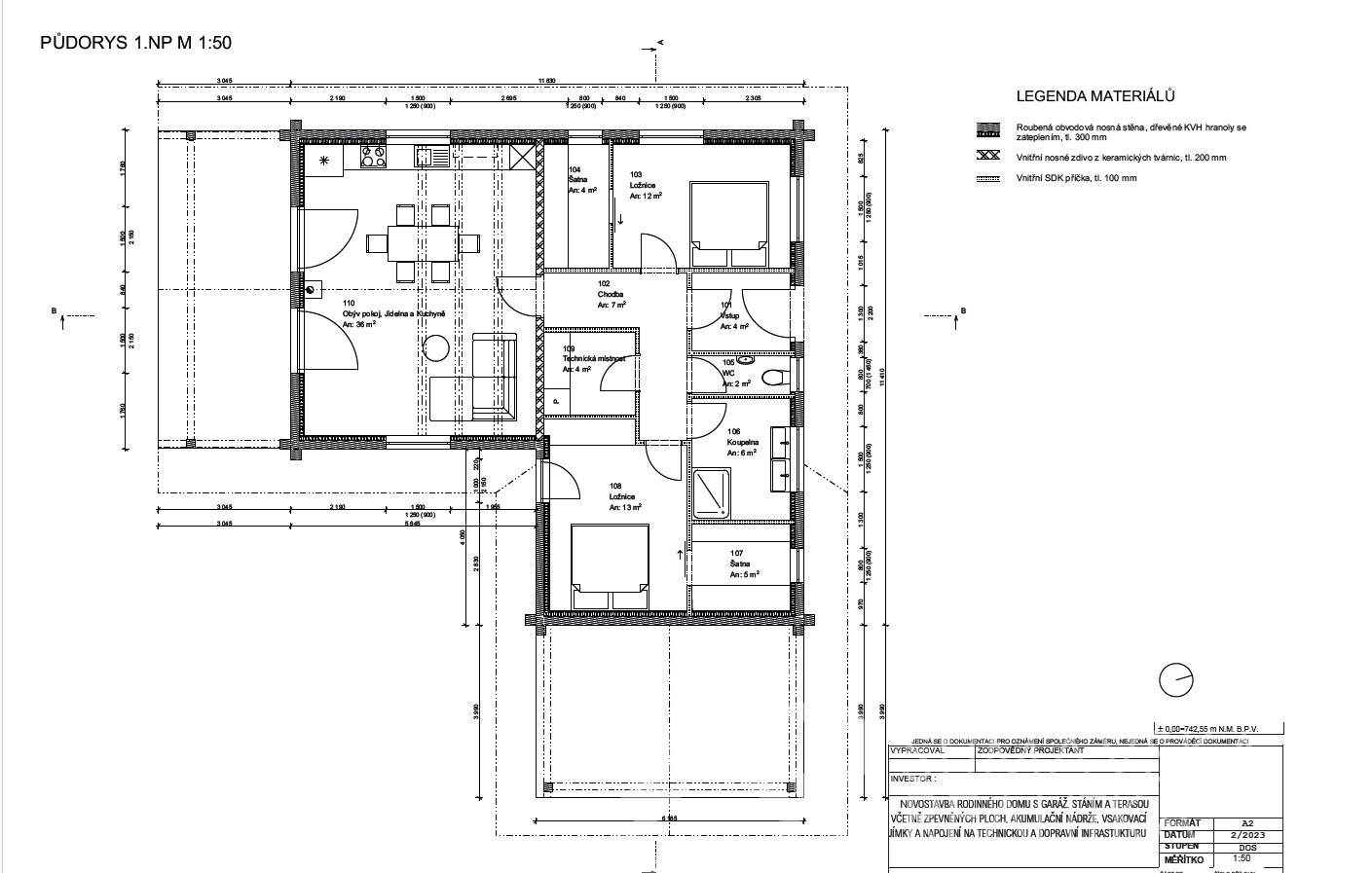
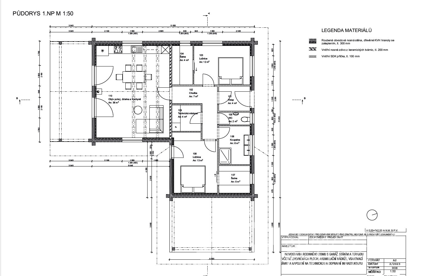
Popis nemovitosti: právě realizovaný rodinný dům je stavěný jako dřevostavba s roubenou obvodovou stěnou z lepených hranolů t.24 cm (bez sedání). Přírodní masivní dřevo je použito i uvnitř domů a vytváří tu správnou atmosféru. Dům je koncipován do tvaru „L“ s garážovým stáním na straně jedné a s velkorysým otevřeným obývacím pokojem s terasou na straně druhé. Uvnitř se nachází dvě ložnice (se šatnou), koupelna, samostatné WC, technická místnost a chodba. Pro užívání je připraveno i podkroví. Střešní krytina je Bramac Tegalit Protector, okna PVC Vekra, sanita od značek Villeroy Boch, Hans Grohe a Riho. Stavba je dokončena s použitím kvalitních standardů (podlahová krytina vinil, vypínače ABB Zoni v černé barvě a bezfalcové dveře). Stejně tak koupelny jsou voleny v materiálech a odstínech k přírodnímu dřevu. Vytápění zajišťuje tepelné čerpadlo Panasonic. Pro případného zájemce se mohou standardy upravit na přání.
Pomocí naší hypoteční kalkulačky si můžete udělat orientační představu o výši měsíčních splátek hypotéky. O vše ostatní se pak postaráme my ve spolupráci s našimi obchodními partnery.
50 609 Kč
* Odhadovaná měsíční splátka vychází z výše úvěru Kč s pevnou úrokovou sazbou % po celou dobu trvání úvěru.
Uživatel serveru RealityMIX.cz (dále jen „Server“) dostupného na internetové adrese (URL) https://www.realitymix.cz, který provozuje společnost DALTEN media s.r.o., se sídlem Na Harfě 916/9a, Praha 9, 190 00, IČO: 271 35 306 (dále jen „Správce“) jako provozovateli tohoto Serveru uděluje svůj výslovný souhlas v souladu s ustanovením § 5 zákona č. 101/2000 Sb. O ochraně osobních údajů a o změně některých zákonů, v platném znění (dále jen „zákon o ochraně osobních údajů“), se zpracováním uživatelem poskytnutých osobních údajů a dalších dat.
Uživatel poskytuje Správci osobní údaje v rozsahu: jméno, příjmení, e-mailová adresa, telefonický kontakt a další data, a to z důvodu projeveného zájmu o nemovitost, kde prostřednictvím služby Serveru Správce osloví Uživatel inzerenta uvedeného v detailu
nemovitosti - Šumavská realitka (IČ 21318182) se zájmem o jeho služby.
Uživatel tyto osobní údaje poskytuje dobrovolně a bere na vědomí, že součástí služeb Správce, které Správce Uživateli poskytuje, je vyhledání všech Uživateli vyhovujících (dle parametrů - cena, typ nemovitosti, lokalita atd.) nemovitostí. Správce za tímto účelem provozuje aplikace Hlídací pes a newsletter. Tyto služby je možné z každého zaslaného emailu odhlásit. Souhlas se zpracováním osobních údajů Uživatel poskytuje Správci na dobu neurčitou s tím, že svůj udělený souhlas může Uživatel kdykoliv na drese správce info@realitymix.cz odvolat. Správce garantuje Uživateli i další práva uvedené v ustanovení §11 a §21 zákoba č. 101/200 Sb. Ve znění pozdějších předpisů.
Více informací o zpracování údajů získáte zde (realitymix.cz/zasady-ochrany-osobnich-udaju)