Valtice - jedna z nejžádanějších vinařských lokalit jižní Moravy. Právě zde nabízíme k prodeji rodinný dům, který díky svému dispozičnímu řešení nabízí široké možnosti využití – zejména pro vícegenerační bydlení, kombinaci bydlení a podnikání nebo částečný pronájem.
Dům je rozdělen na dvě samostatné jednotky (4 apartmány), které lze využívat odděleně i jako jeden celek.
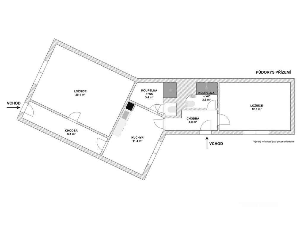
Dispozice a uspořádání
Apartmány 1 a 2:
- vhodné jako hlavní obytná část domu
- sdílená plně vybavená kuchyň
- každý apartmán má vlastní koupelnu (sprchový kout, WC, umyvadlo)
- možnost oddělení uzamykatelnými dveřmi
Apartmány 3 a 4:
- samostatný vstup a chodba
- každý apartmán má vlastní kuchyňku a sociální zázemí
- vhodné pro další členy rodiny, hosty nebo podnikání
Nemovitost je v současnosti využívána ke krátkodobému pronájmu a je možné navázat na stávající provoz.
Lokalita
Valtice jsou součástí Lednicko-valtického areálu a patří mezi nejvyhledávanější lokality jižní Moravy. Nabízí kompletní občanskou vybavenost, výbornou dostupnost a široké možnosti volnočasových aktivit.
Ráda vás provedu touto krásnou nemovitostí. Pro více informací nebo sjednání prohlídky mě neváhejte kontaktovat.
Pomocí naší hypoteční kalkulačky si můžete udělat orientační představu o výši měsíčních splátek hypotéky. O vše ostatní se pak postaráme my ve spolupráci s našimi obchodními partnery.
30 325 Kč
* Odhadovaná měsíční splátka vychází z výše úvěru Kč s pevnou úrokovou sazbou % po celou dobu trvání úvěru.
Uživatel serveru RealityMIX.cz (dále jen „Server“) dostupného na internetové adrese (URL) https://www.realitymix.cz, který provozuje společnost DALTEN media s.r.o., se sídlem Na Harfě 916/9a, Praha 9, 190 00, IČO: 271 35 306 (dále jen „Správce“) jako provozovateli tohoto Serveru uděluje svůj výslovný souhlas v souladu s ustanovením § 5 zákona č. 101/2000 Sb. O ochraně osobních údajů a o změně některých zákonů, v platném znění (dále jen „zákon o ochraně osobních údajů“), se zpracováním uživatelem poskytnutých osobních údajů a dalších dat.
Uživatel poskytuje Správci osobní údaje v rozsahu: jméno, příjmení, e-mailová adresa, telefonický kontakt a další data, a to z důvodu projeveného zájmu o nemovitost, kde prostřednictvím služby Serveru Správce osloví Uživatel inzerenta uvedeného v detailu
nemovitosti - Nemovision reality s.r.o. (IČ 08351538) se zájmem o jeho služby.
Uživatel tyto osobní údaje poskytuje dobrovolně a bere na vědomí, že součástí služeb Správce, které Správce Uživateli poskytuje, je vyhledání všech Uživateli vyhovujících (dle parametrů - cena, typ nemovitosti, lokalita atd.) nemovitostí. Správce za tímto účelem provozuje aplikace Hlídací pes a newsletter. Tyto služby je možné z každého zaslaného emailu odhlásit. Souhlas se zpracováním osobních údajů Uživatel poskytuje Správci na dobu neurčitou s tím, že svůj udělený souhlas může Uživatel kdykoliv na drese správce info@realitymix.cz odvolat. Správce garantuje Uživateli i další práva uvedené v ustanovení §11 a §21 zákoba č. 101/200 Sb. Ve znění pozdějších předpisů.
Více informací o zpracování údajů získáte zde (realitymix.cz/zasady-ochrany-osobnich-udaju)