Exkluzivní investiční příležitost – zavedený apartmánový dům ve Valticích
V jedné z nejžádanějších vinařských lokalit jižní Moravy nabízíme k prodeji stylový apartmánový dům s fungujícím ubytovacím provozem, který představuje ideální spojení investice, podnikání i vlastního rekreačního zázemí.
Nemovitost se nachází v malebném prostředí Valtic, města vína, historie a turistiky, které je každoročně vyhledávaným cílem návštěvníků z celé České republiky i zahraničí. Díky silné turistické poptávce nabízí dům stabilní potenciál pravidelného výnosu z krátkodobých pronájmů.
Velkou přidanou hodnotou je, že součástí prodeje je zavedená klientela i funkční webová prezentace, což umožňuje plynulé převzetí provozu bez nutnosti budovat podnikání od začátku.
Nemovitost s promyšleným konceptem
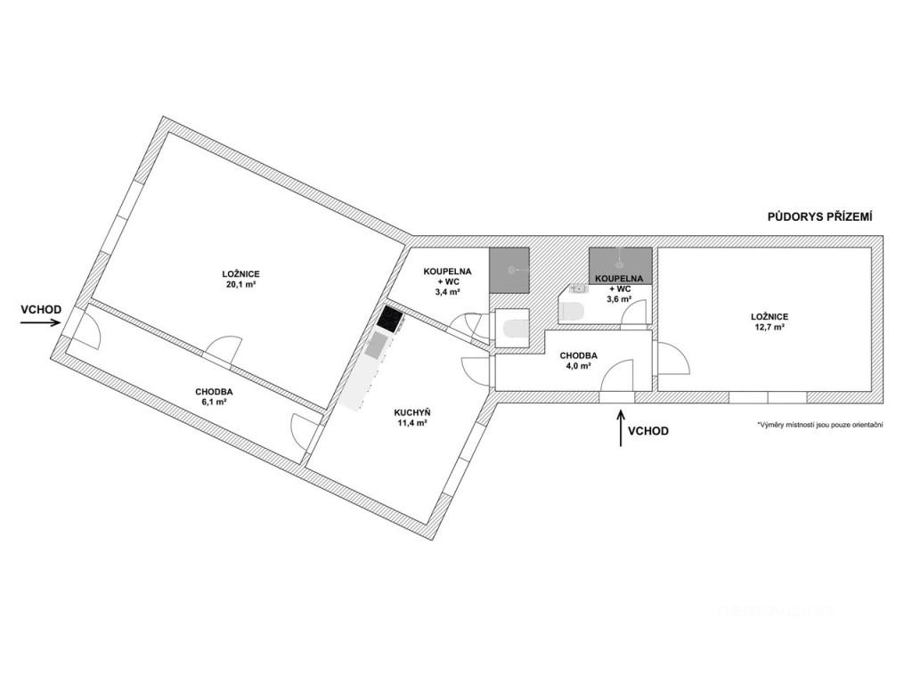
Dům o užitné ploše 111 m², stojící na pozemku 228 m², je prakticky rozdělen na čtyři samostatné apartmány, které umožňují maximální flexibilitu využití.
Dispozice domu umožňuje:
• plnohodnotný komerční provoz ubytování
• kombinaci vlastního bydlení a podnikání
• pronájem po jednotlivých apartmánech nebo jako celek pro větší skupiny
Díky tomuto řešení lze velmi efektivně reagovat na poptávku hostů a optimalizovat obsazenost během celého roku.
Dispozice apartmánů:
Apartmány 1 a 2
Tyto apartmány mohou fungovat samostatně nebo jako jeden celek, což je ideální pro rodiny či větší skupiny hostů.
Apartmán 1 (kapacita 3 osoby)
• manželská postel
• samostatné lůžko
• vlastní koupelna (sprcha, WC, umyvadlo)
Apartmán 2 (kapacita 2 osoby)
• manželská postel
• koupelna (sprcha, WC, umyvadlo)
Apartmány sdílí plně vybavenou kuchyň a lze je oddělit uzamykatelnými dveřmi.
Apartmány 3 a 4
Samostatná část domu se společným vstupem, ideální pro společné pobyty přátel či rodin.
Apartmán 3 (kapacita 2 osoby)
• oddělené postele s možností spojení
• vlastní kuchyňka
• samostatné WC
Apartmán 4 (kapacita 3 osoby – v patře)
• manželská postel
• samostatné lůžko
• kuchyňka
• samostatné WC
Každý apartmán disponuje vlastním zázemím. Ideální pro skupinové rezervace.
Valtice jsou součástí Lednicko-valtického areálu, zapsaného na seznamu UNESCO, a dlouhodobě patří mezi nejvyhledávanější turistické destinace na jižní Moravě.
Hosté zde vyhledávají:
• vinařskou turistiku
• cyklostezky mezi vinicemi
• historické památky
• gastronomii a kulturní akce
To vše zajišťuje stabilní poptávku po kvalitním ubytování po většinu roku.
Hlavní benefity investice
- prestižní turistická lokalita
- zavedený a funkční ubytovací provoz
- okamžitý potenciál výnosu
- flexibilní využití nemovitosti
- možnost dalšího rozvoje a marketingu
Možnosti využití
• investiční apartmánový dům
• kombinace vlastního bydlení a podnikání
• rekreační objekt pro rodinu
• vícegenerační bydlení
• pronájem přes platformy Airbnb nebo Booking
Tato nemovitost není pouze domem – představuje fungující projekt s potenciálem dalšího růstu v jedné z nejatraktivnějších vinařských oblastí České republiky.
Pomocí naší hypoteční kalkulačky si můžete udělat orientační představu o výši měsíčních splátek hypotéky. O vše ostatní se pak postaráme my ve spolupráci s našimi obchodními partnery.
30 325 Kč
* Odhadovaná měsíční splátka vychází z výše úvěru Kč s pevnou úrokovou sazbou % po celou dobu trvání úvěru.
Uživatel serveru RealityMIX.cz (dále jen „Server“) dostupného na internetové adrese (URL) https://www.realitymix.cz, který provozuje společnost DALTEN media s.r.o., se sídlem Na Harfě 916/9a, Praha 9, 190 00, IČO: 271 35 306 (dále jen „Správce“) jako provozovateli tohoto Serveru uděluje svůj výslovný souhlas v souladu s ustanovením § 5 zákona č. 101/2000 Sb. O ochraně osobních údajů a o změně některých zákonů, v platném znění (dále jen „zákon o ochraně osobních údajů“), se zpracováním uživatelem poskytnutých osobních údajů a dalších dat.
Uživatel poskytuje Správci osobní údaje v rozsahu: jméno, příjmení, e-mailová adresa, telefonický kontakt a další data, a to z důvodu projeveného zájmu o nemovitost, kde prostřednictvím služby Serveru Správce osloví Uživatel inzerenta uvedeného v detailu
nemovitosti - Nemovision reality s.r.o. (IČ 08351538) se zájmem o jeho služby.
Uživatel tyto osobní údaje poskytuje dobrovolně a bere na vědomí, že součástí služeb Správce, které Správce Uživateli poskytuje, je vyhledání všech Uživateli vyhovujících (dle parametrů - cena, typ nemovitosti, lokalita atd.) nemovitostí. Správce za tímto účelem provozuje aplikace Hlídací pes a newsletter. Tyto služby je možné z každého zaslaného emailu odhlásit. Souhlas se zpracováním osobních údajů Uživatel poskytuje Správci na dobu neurčitou s tím, že svůj udělený souhlas může Uživatel kdykoliv na drese správce info@realitymix.cz odvolat. Správce garantuje Uživateli i další práva uvedené v ustanovení §11 a §21 zákoba č. 101/200 Sb. Ve znění pozdějších předpisů.
Více informací o zpracování údajů získáte zde (realitymix.cz/zasady-ochrany-osobnich-udaju)