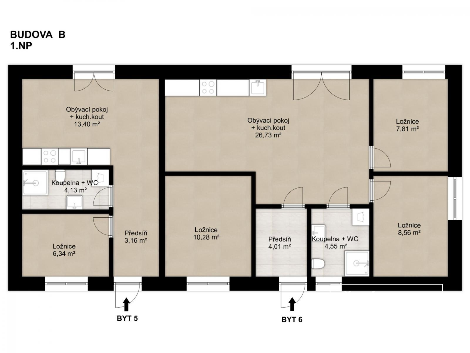
Nabízíme k prodeji rodinný dům rozdělený na čtyři samostatné bytové jednotky s další vedlejší stavbou vhodnou na přestavbu pro potřeby bydlení. V domě jsou nově zrekonstruovány čtyři samostatné bytové jednotky, z toho dvě se nacházejí v přízemí a dvě v obytném podkroví. Byty mají samostatná odběrná místa a v suterénu jsou pro ně vyčleněny sklepní kóje. Interiér celého domu prošel rozsáhlou a kompletní rekonstrukcí, a to včetně zcela nového krovu. Jedná se o dvoupodlažní cihlovou stavbu na kamenném soklu se sedlovou střechou opatřenou pálenou taškou. Původní dům pravděpodobně pocházel ze začátku 20. stol. Dům je celopodsklepený a situovaný v mírně svažitém pozemku, což umožňuje přístup do suterénů nejenom vnitřním schodištěm, ale i bočním vstupem. Za hlavním vstupem se nachází centrální schodiště vedoucí v každém z podlaží do dvou bytových jednotek. Jak již bylo zmíněno, byty jsou po právě dokončené celkové rekonstrukci a nebyly dosud užívány. Kompletní rekonstrukce se samozřejmě dotkla jak celé vnitřní infrastruktury rozvodů, tak i veškerých vnitřních omítek, podlah, oken a v neposlední řadě koupelen a toalet. Samotná, velmi zdařilá, vkusná a kvalitně řemeslně provedená rekonstrukce bytů zahrnuje i hotové kuchyňské linky s vestavnými spotřebiči. Každý byt má svůj vlastní elektrický kotel a elektrický bojler. Vytápění je prostřednictvím teplovodních radiátorů, okna jsou v přízemí plastová a v podkroví doplněna střešními. Exteriér domu je připraven pro finální zateplenou fasádu. Na pozemku, který v čisté nezastavěné ploše měří 909 m2, se počítá s vlastní parkovací plochou pro každou bytovou jednotku, plochou pro okrasnou zeleň i pro dvě samostatné zahrádky k dalším bytovým jednotkám. Tyto bytové jednotky by dle plánu měly vzniknout ve vedlejší budově.
Vedlejší budova je ve fázi hrubé stavby s dokončeným krovem a totožnou střešní krytinou jako hlavní dům. Projekt na tento dům počítá se vznikem dvou bytů v přízemí s možností zmíněných vlastních zahrádek a v podkroví s jedním velkým, či případně s dvěma menšími byty. Vzhledem k tomu, že tato budova není podsklepená, tak se se sklepními kójemi pro tyto byty počítalo ve vedlejším domě. Kóje jsou připraveny a zmíněný boční vstup do suterénu se nachází jen pár kroků. Elektrický rozvaděč je taktéž připraven na osazení čtyřmi elektroměry, tak aby i zde mohli bezproblémově vzniknout další byty.
Pokud Vás tento projekt zaujal, prosím neváhejte mne kontaktovat a domluvit si prohlídku.
Pomocí naší hypoteční kalkulačky si můžete udělat orientační představu o výši měsíčních splátek hypotéky. O vše ostatní se pak postaráme my ve spolupráci s našimi obchodními partnery.
36 034 Kč
* Odhadovaná měsíční splátka vychází z výše úvěru Kč s pevnou úrokovou sazbou % po celou dobu trvání úvěru.
Uživatel serveru RealityMIX.cz (dále jen „Server“) dostupného na internetové adrese (URL) https://www.realitymix.cz, který provozuje společnost DALTEN media s.r.o., se sídlem Na Harfě 916/9a, Praha 9, 190 00, IČO: 271 35 306 (dále jen „Správce“) jako provozovateli tohoto Serveru uděluje svůj výslovný souhlas v souladu s ustanovením § 5 zákona č. 101/2000 Sb. O ochraně osobních údajů a o změně některých zákonů, v platném znění (dále jen „zákon o ochraně osobních údajů“), se zpracováním uživatelem poskytnutých osobních údajů a dalších dat.
Uživatel poskytuje Správci osobní údaje v rozsahu: jméno, příjmení, e-mailová adresa, telefonický kontakt a další data, a to z důvodu projeveného zájmu o nemovitost, kde prostřednictvím služby Serveru Správce osloví Uživatel inzerenta uvedeného v detailu
nemovitosti - ŠMÍD & PARTNERS (IČ 24122955) se zájmem o jeho služby.
Uživatel tyto osobní údaje poskytuje dobrovolně a bere na vědomí, že součástí služeb Správce, které Správce Uživateli poskytuje, je vyhledání všech Uživateli vyhovujících (dle parametrů - cena, typ nemovitosti, lokalita atd.) nemovitostí. Správce za tímto účelem provozuje aplikace Hlídací pes a newsletter. Tyto služby je možné z každého zaslaného emailu odhlásit. Souhlas se zpracováním osobních údajů Uživatel poskytuje Správci na dobu neurčitou s tím, že svůj udělený souhlas může Uživatel kdykoliv na drese správce info@realitymix.cz odvolat. Správce garantuje Uživateli i další práva uvedené v ustanovení §11 a §21 zákoba č. 101/200 Sb. Ve znění pozdějších předpisů.
Více informací o zpracování údajů získáte zde (realitymix.cz/zasady-ochrany-osobnich-udaju)