Reprezentativní komerční prostory k pronájmu – Varnsdorf, Kmochova 3156
Nabízíme k pronájmu víceúčelové komerční prostory s celkovou čistou užitnou plochou cca 450 m², které se nachází na dostupné adrese Kmochova 3156, Varnsdorf. Aktuálně je objekt využíván jako prodejna (DM), ale je zcela vhodný pro nového nájemce a jeho vlastní podnikatelský záměr – přestavby a dispoziční úpravy jsou možné. Prostory jsou ideální pro obchod, sklad + výdejnu, kancelářské zázemí, lehkou výrobu, služby či kombinaci více funkcí.
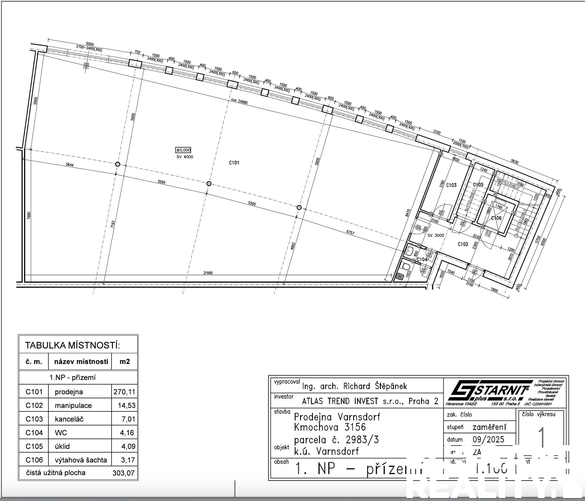
Dispozice:
1. NP – prodejní prostor / obchodní část (303,07 m²)
• Prostorná prodejní plocha 270,11 m²
• Samostatná místnost pro manipulaci / příjem zboží
• Kancelář, WC a úklidová místnost
• Výtahová šachta s plně funkčním výtahem. (ideální pro manipulaci se zbožím) + schodiště
2. NP – skladové a provozní zázemí (146,57 m²)
• Velký hlavní sklad 81 m²
• Další sklad potravin / drobného zboží
• Denní místnost, šatna (prostory vhodné pro zázemí zaměstnanců)
• Chodba, schodiště, výtahová šachta, WC
Významné výhody:
• Strategická poloha v samotném centru města
• Budova se nachází hned vedle Penny marketu a trafiky – vysoká frekvence zákazníků po celý den
• Okolí tvoří hustá zástavba panelových domů, která zajišťuje stabilní základnu místních obyvatel
• Flexibilní dispozice prostoru – možnost úprav podle potřeb nájemce
• Velká užitná plocha a logické členění na obchod + zázemí
• Výborná dostupnost pro zásobování – pohodlný přístup do zadní části budovy
• Bezbariérový přístup pro zákazníky přímo z hlavní ulice
• Objekt se nachází hned vedle parkoviště, což výrazně zvyšuje komfort zákazníků
• Ideální pro provozovny, které potřebují prodejní prostor + sklad
• Budova má moderní, čistou fasádu a díky dlouhému průčelí s výlohami je velmi dobře viditelná z hlavní ulice
Podmínky pronájmu:
• Cena: 85.000 Kč/měsíc
• Zálohy na energie: 15.000 Kč/měsíc
• Vratná kauce: 170.000 Kč
• Rezervační záloha ve výši 50.000,- Kč bude po podpisu nájemní smlouvy zaúčtována jako provize RK.
• K dispozici od 1.2.2026
Prostory je možné přizpůsobit novému provozu, a to jak po stránce dispozic, tak technického vybavení.
Neváhejte nás kontaktovat. Rádi vám poskytneme více informací a domluvíme termín prohlídky podle vašich možností.
Uživatel serveru RealityMIX.cz (dále jen „Server“) dostupného na internetové adrese (URL) https://www.realitymix.cz, který provozuje společnost DALTEN media s.r.o., se sídlem Na Harfě 916/9a, Praha 9, 190 00, IČO: 271 35 306 (dále jen „Správce“) jako provozovateli tohoto Serveru uděluje svůj výslovný souhlas v souladu s ustanovením § 5 zákona č. 101/2000 Sb. O ochraně osobních údajů a o změně některých zákonů, v platném znění (dále jen „zákon o ochraně osobních údajů“), se zpracováním uživatelem poskytnutých osobních údajů a dalších dat.
Uživatel poskytuje Správci osobní údaje v rozsahu: jméno, příjmení, e-mailová adresa, telefonický kontakt a další data, a to z důvodu projeveného zájmu o nemovitost, kde prostřednictvím služby Serveru Správce osloví Uživatel inzerenta uvedeného v detailu
nemovitosti - EU - Grand REALITY s.r.o. (IČ 25498410) se zájmem o jeho služby.
Uživatel tyto osobní údaje poskytuje dobrovolně a bere na vědomí, že součástí služeb Správce, které Správce Uživateli poskytuje, je vyhledání všech Uživateli vyhovujících (dle parametrů - cena, typ nemovitosti, lokalita atd.) nemovitostí. Správce za tímto účelem provozuje aplikace Hlídací pes a newsletter. Tyto služby je možné z každého zaslaného emailu odhlásit. Souhlas se zpracováním osobních údajů Uživatel poskytuje Správci na dobu neurčitou s tím, že svůj udělený souhlas může Uživatel kdykoliv na drese správce info@realitymix.cz odvolat. Správce garantuje Uživateli i další práva uvedené v ustanovení §11 a §21 zákoba č. 101/200 Sb. Ve znění pozdějších předpisů.
Více informací o zpracování údajů získáte zde (realitymix.cz/zasady-ochrany-osobnich-udaju)