Naše společnost Vám zprostředkuje možný prodej RD v obci Vědomice u Roudnice nad Labem. Jedná se o zrekonstruovaný dům s novou přístavbou před dokončením.
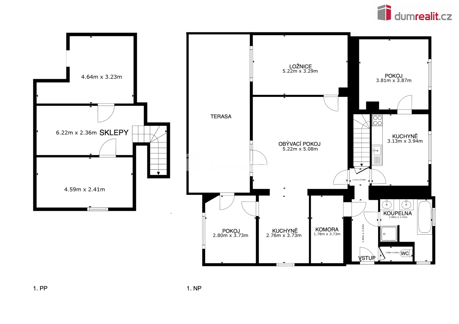
Dispozice je 5+1 - dům je velmi prostorný pro velkou rodinu, ale díky šikovně řešené rekonstrukci a rozvržení místností může být i dvougenerační. Vstupní chodba je ve středu nemovitosti, lze tedy využít jako vstup do samostatně bytových jednotek, každá se svou kuchyní. Z chodby je vstup do kromě klasických obytných místností i vchod do budoucí šatny a vstup do sklepa, kde může vzniknout například malá posilovna, díky vzduchotechnice i sauna nebo vířivka a zbyde prostor i pro úložnost čehokoliv.
Koupelna a oddělené WC jsou již připraveny k užívání. V koupelně není nutné se střídat, protože díky dvěma umyvadlům, vanou s masážní tryskou a vyzděným sprchovým koutem ji můžete využívat s více členy domácnosti. Je zde i prostor pro pračku a sušičku a umístěný úsporný kombinovaný plynový kotel s částečným podlahovým topením.
Dům má už dané dispozice, novou střechu, nové krovy, ale co si můžete zvolit sami jsou podlahové krytiny, osvětlení a kuchyňskou linku dle Vašeho vkusu a stylu, což je vlastně obrovskou výhodou.
Z obývacího pokoje a z místnosti za kuchyní, kterou lze využít jako jídelnu nebo malou ložnici, záleží dle počtu osob a potřeby, jsou balkonové dveře do naší zahrady a zároveň na předpřipravenou terasu, která je ohraničena betonovým plotem, vzniká tedy zde opravdové soukromí. Na pozemku je také studna.
Část domu do ulice má ještě původní kuchyňskou linku, která se při rekonstrukci využívala. Není nic jednoduššího než její demontáž, položení podlahové krytiny a vzniknou zde další dvě ložnice nebo pracovna.
Energetická náročnost budovy: D (méně úsporná)
Vzhledem k nedokončené rekonstrukci přikládáme vizualizaci, kde je možné si představit, jak může Váš nový domov vypadat. Matterport 3D scan Vám zase umožní projít nemovitost v klidu domova a pak s Vámi makléřka nemovitosti Jana Čmejlová s radostí celý dům projde osobně.
Kupní cenu momentálně neuvádíme, jsme nakloněni diskuzi a dohodě. Ev. číslo: 652685.
Pomocí naší hypoteční kalkulačky si můžete udělat orientační představu o výši měsíčních splátek hypotéky. O vše ostatní se pak postaráme my ve spolupráci s našimi obchodními partnery.
31 985 Kč
* Odhadovaná měsíční splátka vychází z výše úvěru Kč s pevnou úrokovou sazbou % po celou dobu trvání úvěru.
Uživatel serveru RealityMIX.cz (dále jen „Server“) dostupného na internetové adrese (URL) https://www.realitymix.cz, který provozuje společnost DALTEN media s.r.o., se sídlem Na Harfě 916/9a, Praha 9, 190 00, IČO: 271 35 306 (dále jen „Správce“) jako provozovateli tohoto Serveru uděluje svůj výslovný souhlas v souladu s ustanovením § 5 zákona č. 101/2000 Sb. O ochraně osobních údajů a o změně některých zákonů, v platném znění (dále jen „zákon o ochraně osobních údajů“), se zpracováním uživatelem poskytnutých osobních údajů a dalších dat.
Uživatel poskytuje Správci osobní údaje v rozsahu: jméno, příjmení, e-mailová adresa, telefonický kontakt a další data, a to z důvodu projeveného zájmu o nemovitost, kde prostřednictvím služby Serveru Správce osloví Uživatel inzerenta uvedeného v detailu
nemovitosti - Dumrealit.cz (IČ 00537861) se zájmem o jeho služby. Tato společnost je součástí seskupení/sítě/franšízového modelu realitních kanceláří, jejich seznam můžete zobrazit kliknutím na tento odkaz.
Dumrealit.cz (IČ 00537861) , HOME 4 PEOPLE (IČ 29132886) , Reality 11 (IČ 29132886) , REAL ESTATE CZECH REPUBLIC a.s. (IČ 29132886) , Národní Realitní Holding a.s. (IČ 02918897)
Uživatel tyto osobní údaje poskytuje dobrovolně a bere na vědomí, že součástí služeb Správce, které Správce Uživateli poskytuje, je vyhledání všech Uživateli vyhovujících (dle parametrů - cena, typ nemovitosti, lokalita atd.) nemovitostí. Správce za tímto účelem provozuje aplikace Hlídací pes a newsletter. Tyto služby je možné z každého zaslaného emailu odhlásit. Souhlas se zpracováním osobních údajů Uživatel poskytuje Správci na dobu neurčitou s tím, že svůj udělený souhlas může Uživatel kdykoliv na drese správce info@realitymix.cz odvolat. Správce garantuje Uživateli i další práva uvedené v ustanovení §11 a §21 zákoba č. 101/200 Sb. Ve znění pozdějších předpisů.
Více informací o zpracování údajů získáte zde (realitymix.cz/zasady-ochrany-osobnich-udaju)