Prodej apartmánu 1+KK v centru města, 46 m², ul. Úzká, Vejprty
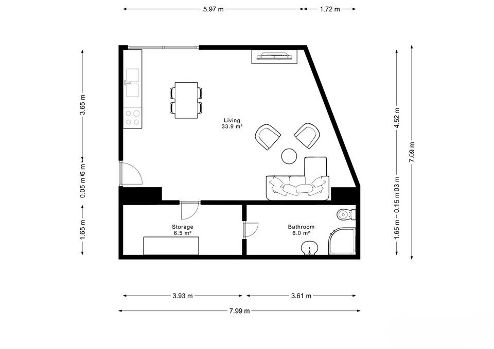
Nabízíme Vám ke koupi kompletně zařízený a prostorný ateliér, chytře řešený jako apartmán 1+kk, se sklepem (celkem 53 m²) v přízemí v centru Vejprt, pouze pár minut od skiareálu Klínovec. Předmětná jednotka je kolaudována jako Ateliér je však dispozičně a vybavením navržena pro plnohodnotné užívání k rekreačnímu bydlení. Nemovitost je bez starostí a další investice připravena k okamžitému užívání. K dispozici je moderní kuchyňská linka, která je plně vybavena všemi potřebnými spotřebiči, jako je lednice, trouba, varná deska i myčka. Plastová okna jsou vybavena elektrickou roletou. Vytápění je ústřední dálkové a pro ohřev vody slouží elektrický bojler. Dispozice je chytře řešena: z hlavní místnosti vstoupíte do místnosti sloužící jako šatna, ze které je následně přístup do koupelny vybavené WC, pračkou a sprchovým koutem. K jednotce náleží velký zděný sklep o velikosti 7 m², ideální pro uskladnění lyží a kol. Bezproblémové parkování je zajištěno přímo u domu. Lokalita je ideální pro aktivní život a rekreaci, jelikož se apartmán nachází jen pár minut jízdy od skiareálu Klínovec a je skvělým výchozím bodem pro cyklistiku a turistiku. Navíc díky rychlému přístupu do německého Bärensteinu představuje zajímavou příležitost i pro pracovní uplatnění v zahraničí, přičemž veškerá občanská vybavenost Vejprt je v pohodlné docházkové vzdálenosti. Ať už tedy hledáte stálé bydlení, víkendový apartmán nebo chytrou investici, tato nemovitost splní všechna Vaše očekávání.
Pomocí naší hypoteční kalkulačky si můžete udělat orientační představu o výši měsíčních splátek hypotéky. O vše ostatní se pak postaráme my ve spolupráci s našimi obchodními partnery.
7 689 Kč
* Odhadovaná měsíční splátka vychází z výše úvěru Kč s pevnou úrokovou sazbou % po celou dobu trvání úvěru.
Prodáváte nemovitost a potřebujete zjistit její reálnou hodnotu?
Uživatel serveru RealityMIX.cz (dále jen „Server“) dostupného na internetové adrese (URL) https://www.realitymix.cz, který provozuje společnost DALTEN media s.r.o., se sídlem Na Harfě 916/9a, Praha 9, 190 00, IČO: 271 35 306 (dále jen „Správce“) jako provozovateli tohoto Serveru uděluje svůj výslovný souhlas v souladu s ustanovením § 5 zákona č. 101/2000 Sb. O ochraně osobních údajů a o změně některých zákonů, v platném znění (dále jen „zákon o ochraně osobních údajů“), se zpracováním uživatelem poskytnutých osobních údajů a dalších dat.
Uživatel poskytuje Správci osobní údaje v rozsahu: jméno, příjmení, e-mailová adresa, telefonický kontakt a další data, a to z důvodu projeveného zájmu o nemovitost, kde prostřednictvím služby Serveru Správce osloví Uživatel inzerenta uvedeného v detailu
nemovitosti - REDOT Karlovy Vary (IČ 26774763) se zájmem o jeho služby. Tato společnost je součástí seskupení/sítě/franšízového modelu realitních kanceláří, jejich seznam můžete zobrazit kliknutím na tento odkaz.
REDOT Karlovy Vary (IČ 26774763) , ELIDCAT Prague s.r.o. (IČ 27122701) , REDOT, s.r.o. (IČ 26774763)
Uživatel tyto osobní údaje poskytuje dobrovolně a bere na vědomí, že součástí služeb Správce, které Správce Uživateli poskytuje, je vyhledání všech Uživateli vyhovujících (dle parametrů - cena, typ nemovitosti, lokalita atd.) nemovitostí. Správce za tímto účelem provozuje aplikace Hlídací pes a newsletter. Tyto služby je možné z každého zaslaného emailu odhlásit. Souhlas se zpracováním osobních údajů Uživatel poskytuje Správci na dobu neurčitou s tím, že svůj udělený souhlas může Uživatel kdykoliv na drese správce info@realitymix.cz odvolat. Správce garantuje Uživateli i další práva uvedené v ustanovení §11 a §21 zákoba č. 101/200 Sb. Ve znění pozdějších předpisů.
Více informací o zpracování údajů získáte zde (realitymix.cz/zasady-ochrany-osobnich-udaju)