Rádi bychom vám představili tento útulný byt nacházející se v obci Velešovice.
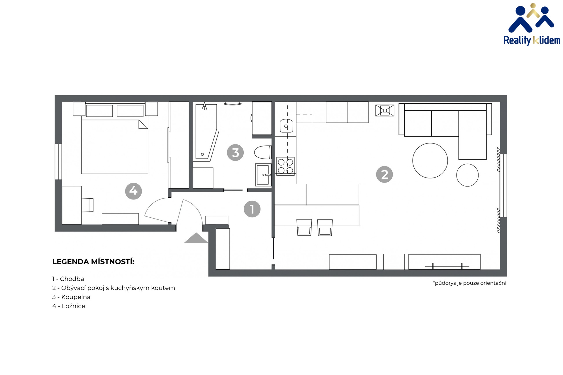
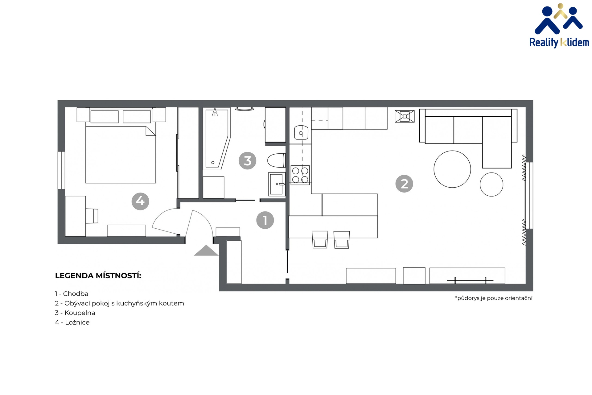
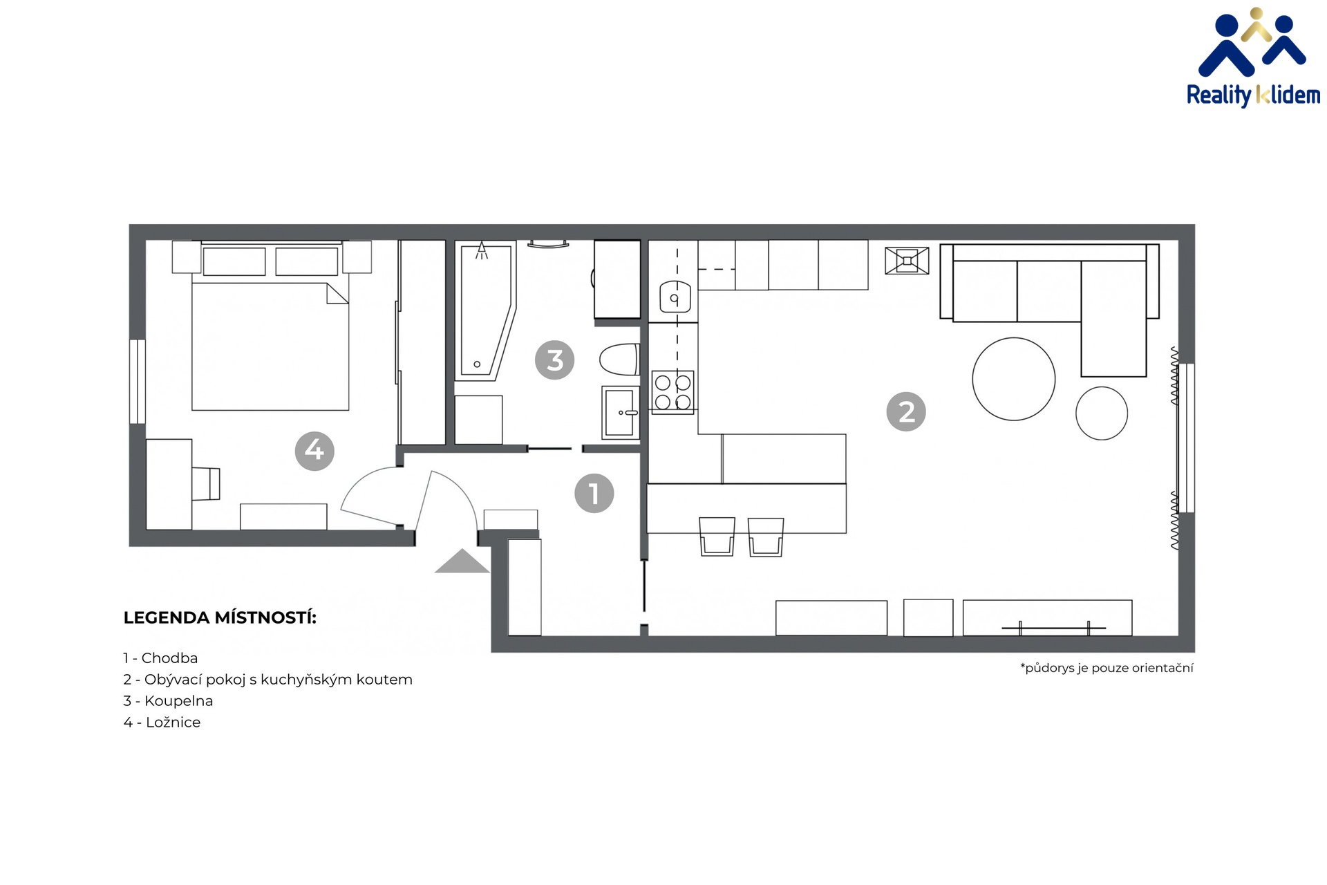
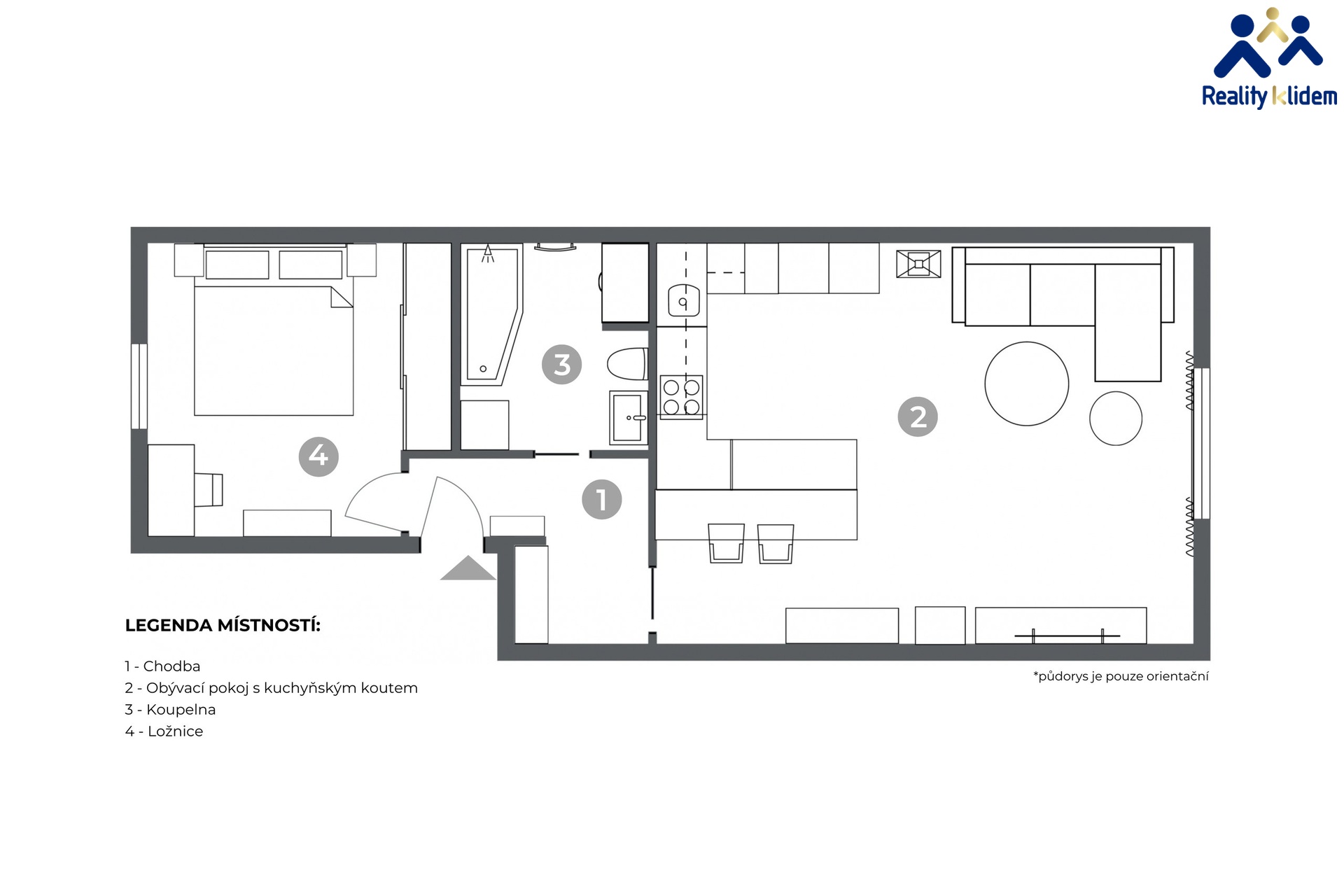
Jedná se o byt o rozloze 62 m² podlahové plochy a komorou 4 m², který je umístěn na 1. nadzemním podlaží cihlového bytového domu.
Vyúčtování za služby z loňského roku je k dispozici k nahlédnutí.
V bytě jsou instalovány bezpečností dveře, plastová okna jsou vybavena žaluziemi a ochrannými sítěmi proti hmyzu.
Součástí obývacího pokoje je krásná, na míru zhotovená, kuchyňská linka s vestavnými spotřebiči. Myčka na nádobí, trouba, mikrovlnná trouba, indukční deska a lednička s mrazákem jsou vkusně zakomponovány do interiéru. Byt je vytápěn deskovými radiátory, v koupelně se nachází topný žebřík.
Byt je zařízený s vynilovými podlahami, moderní koupelnou a vestavnou skříní v ložnici a na chodbě.
Součástí prodeje je i podíl na společné zahradě za domem k bytu též náleží 2 parkovací místa v garáži pod domem.
V okolí je dostatek parkovacích stání pro návštěvy a pěší vzdálenost od veškeré občanské vybavenosti, obchodů, restaurací a škol.
Velešovice jsou klidná obec nacházející se v blízkosti Brna a Rousínova.
Současně Velešovice nabízí vše, co je potřeba k pohodlnému bydlení, mateřskou školu, praktického lékaře, poštu, dětská hřiště, sportoviště i výběh pro psy. V případě potřeby se lze pohodlně a rychle dostat do centra Brna.
Tato nabídka je ideální pro ty, kteří hledají moderní a pohodlné bydlení v klidné lokalitě s dobrou dostupností služeb.
Pomocí naší hypoteční kalkulačky si můžete udělat orientační představu o výši měsíčních splátek hypotéky. O vše ostatní se pak postaráme my ve spolupráci s našimi obchodními partnery.
26 313 Kč
* Odhadovaná měsíční splátka vychází z výše úvěru Kč s pevnou úrokovou sazbou % po celou dobu trvání úvěru.
Prodáváte nemovitost a potřebujete zjistit její reálnou hodnotu?
Uživatel serveru RealityMIX.cz (dále jen „Server“) dostupného na internetové adrese (URL) https://www.realitymix.cz, který provozuje společnost DALTEN media s.r.o., se sídlem Na Harfě 916/9a, Praha 9, 190 00, IČO: 271 35 306 (dále jen „Správce“) jako provozovateli tohoto Serveru uděluje svůj výslovný souhlas v souladu s ustanovením § 5 zákona č. 101/2000 Sb. O ochraně osobních údajů a o změně některých zákonů, v platném znění (dále jen „zákon o ochraně osobních údajů“), se zpracováním uživatelem poskytnutých osobních údajů a dalších dat.
Uživatel poskytuje Správci osobní údaje v rozsahu: jméno, příjmení, e-mailová adresa, telefonický kontakt a další data, a to z důvodu projeveného zájmu o nemovitost, kde prostřednictvím služby Serveru Správce osloví Uživatel inzerenta uvedeného v detailu
nemovitosti - Irena Kotolanová (IČ 65372301) se zájmem o jeho služby.
Uživatel tyto osobní údaje poskytuje dobrovolně a bere na vědomí, že součástí služeb Správce, které Správce Uživateli poskytuje, je vyhledání všech Uživateli vyhovujících (dle parametrů - cena, typ nemovitosti, lokalita atd.) nemovitostí. Správce za tímto účelem provozuje aplikace Hlídací pes a newsletter. Tyto služby je možné z každého zaslaného emailu odhlásit. Souhlas se zpracováním osobních údajů Uživatel poskytuje Správci na dobu neurčitou s tím, že svůj udělený souhlas může Uživatel kdykoliv na drese správce info@realitymix.cz odvolat. Správce garantuje Uživateli i další práva uvedené v ustanovení §11 a §21 zákoba č. 101/200 Sb. Ve znění pozdějších předpisů.
Více informací o zpracování údajů získáte zde (realitymix.cz/zasady-ochrany-osobnich-udaju)