Stavební pozemek 603 m², kompletní sítě, okamžitá výstavba - Velká Bíteš
Nabízím k prodeji pozemek bez zbytečných starostí a čekání, připravený k okamžité výstavbě – stačí začít stavět.
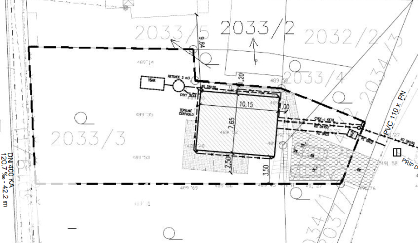
Stavební pozemek o výměře 603 m² se nachází v atraktivní lokalitě Velká Bíteš, která spojuje klidné bydlení s výbornou dostupností do Brna.
Hlavní výhody:
- kompletně zasíťovaný (voda, kanalizace, elektřina přímo na pozemku)
- připravený k okamžité výstavbě – bez nutnosti cokoliv řešit
- zastavitelnost až 60 %
- nová asfaltová komunikace až k pozemku
- vlastní studna s dostatkem vody (ideální pro zalévání, napouštění bazénu apod.)
- ze strany od hlavní silnice vzrostlý živý plot (v zimě opadavý) – přirozená protihluková a protiprašná bariéra
- ideální velikost pro rodinný dům i zahradu
Lokalita:
- nájezd na D1 cca 2 minuty jízdy
- výborná dostupnost do Brna
- plánovaná zastávka vysokorychlostní železnice (cca 2035) – dojezd na hlavní nádraží v Brně přibližně 19 minut
- lokalita s budoucím růstovým potenciálem.
O Velké Bíteši:
- příjemné menší město s kompletní občanskou vybaveností
- školy, školky, obchody, lékaři i restaurace přímo ve městě
- ideální kombinace klidného bydlení a rychlé dostupnosti do Brna
- okolí nabízí možnosti pro procházky, cyklovýlety i relax v přírodě
Bonus:
- možnost využití projektu rodinného domu 4+kk (dřevostavba), vizualizaci domu najdete na fotkách
Majitel preferuje rychlé jednání – dohoda o ceně možná.
V případě zájmu mě neváhejte kontaktovat – ráda Vám pozemek osobně ukážu.
Pomocí naší hypoteční kalkulačky si můžete udělat orientační představu o výši měsíčních splátek hypotéky. O vše ostatní se pak postaráme my ve spolupráci s našimi obchodními partnery.
17 369 Kč
* Odhadovaná měsíční splátka vychází z výše úvěru Kč s pevnou úrokovou sazbou % po celou dobu trvání úvěru.
Uživatel serveru RealityMIX.cz (dále jen „Server“) dostupného na internetové adrese (URL) https://www.realitymix.cz, který provozuje společnost DALTEN media s.r.o., se sídlem Na Harfě 916/9a, Praha 9, 190 00, IČO: 271 35 306 (dále jen „Správce“) jako provozovateli tohoto Serveru uděluje svůj výslovný souhlas v souladu s ustanovením § 5 zákona č. 101/2000 Sb. O ochraně osobních údajů a o změně některých zákonů, v platném znění (dále jen „zákon o ochraně osobních údajů“), se zpracováním uživatelem poskytnutých osobních údajů a dalších dat.
Uživatel poskytuje Správci osobní údaje v rozsahu: jméno, příjmení, e-mailová adresa, telefonický kontakt a další data, a to z důvodu projeveného zájmu o nemovitost, kde prostřednictvím služby Serveru Správce osloví Uživatel inzerenta uvedeného v detailu
nemovitosti - SMS reality s.r.o. (IČ 04095421) se zájmem o jeho služby.
Uživatel tyto osobní údaje poskytuje dobrovolně a bere na vědomí, že součástí služeb Správce, které Správce Uživateli poskytuje, je vyhledání všech Uživateli vyhovujících (dle parametrů - cena, typ nemovitosti, lokalita atd.) nemovitostí. Správce za tímto účelem provozuje aplikace Hlídací pes a newsletter. Tyto služby je možné z každého zaslaného emailu odhlásit. Souhlas se zpracováním osobních údajů Uživatel poskytuje Správci na dobu neurčitou s tím, že svůj udělený souhlas může Uživatel kdykoliv na drese správce info@realitymix.cz odvolat. Správce garantuje Uživateli i další práva uvedené v ustanovení §11 a §21 zákoba č. 101/200 Sb. Ve znění pozdějších předpisů.
Více informací o zpracování údajů získáte zde (realitymix.cz/zasady-ochrany-osobnich-udaju)