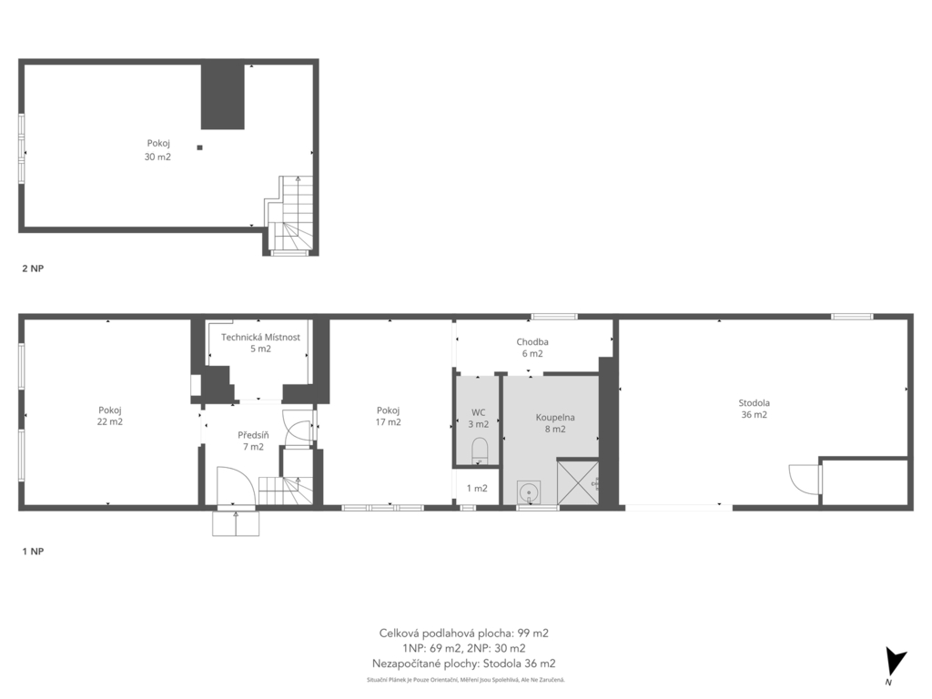
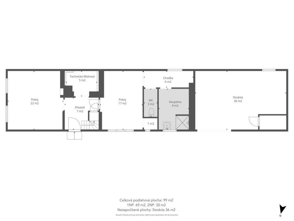
Prodej rodinného domu 137 m², pozemek 402 m² Velká Buková
V samém srdci Křivoklátska, v obci Velká Buková, se nachází tato původní zemědělská usedlost z roku 1840, která v sobě ukrývá poctivý základ a obrovský potenciál pro nového majitele. Dům s číslem popisným 31 stojí na vlastním pozemku o celkové výměře 402 m², který tvoří uzavřený a soukromý celek přímo v centru obce. Stavba o zastavěné ploše 137 m² je rozdělena na obytnou část a navazující stodolu, což nabízí jedinečnou možnost propojení obou částí do jednoho stylového bydlení nebo rekreačního sídla s výjimečnou atmosférou.
Dům je vyklizený a připravený k okamžitému zahájení rekonstrukce, díky které můžete tomuto objektu vdechnout nový život a vytvořit moderní komfort v tradičních kulisách. Z hlediska technické infrastruktury je dům skvěle připraven – je zde zavedena elektřina i obecní pitná voda, které jsou nyní pouze odpojené, ale plně k dispozici k opětovnému zapojení. Zásadním benefitem je pak obecní kanalizace dokončená v roce 2024, jejíž přípojka je dovedena až k hranici pozemku a je připravena k přímému napojení.
Lokalita Velké Bukové je synonymem pro klid a přírodu, přesto se nachází jen pár minut od hradu Křivoklát a kompletní občanské vybavenosti. Tato nemovitost bude vyhovovat především těm, kteří namísto katalogových novostaveb hledají dům s duší a chtějí si vytvořit vlastní útočiště v chráněné krajinné oblasti. V případě zájmu o více informací nebo prohlídku mě neváhejte kontaktovat.
Pomocí naší hypoteční kalkulačky si můžete udělat orientační představu o výši měsíčních splátek hypotéky. O vše ostatní se pak postaráme my ve spolupráci s našimi obchodními partnery.
5 628 Kč
* Odhadovaná měsíční splátka vychází z výše úvěru Kč s pevnou úrokovou sazbou % po celou dobu trvání úvěru.
Uživatel serveru RealityMIX.cz (dále jen „Server“) dostupného na internetové adrese (URL) https://www.realitymix.cz, který provozuje společnost DALTEN media s.r.o., se sídlem Na Harfě 916/9a, Praha 9, 190 00, IČO: 271 35 306 (dále jen „Správce“) jako provozovateli tohoto Serveru uděluje svůj výslovný souhlas v souladu s ustanovením § 5 zákona č. 101/2000 Sb. O ochraně osobních údajů a o změně některých zákonů, v platném znění (dále jen „zákon o ochraně osobních údajů“), se zpracováním uživatelem poskytnutých osobních údajů a dalších dat.
Uživatel poskytuje Správci osobní údaje v rozsahu: jméno, příjmení, e-mailová adresa, telefonický kontakt a další data, a to z důvodu projeveného zájmu o nemovitost, kde prostřednictvím služby Serveru Správce osloví Uživatel inzerenta uvedeného v detailu
nemovitosti - QARA s.r.o. (IČ 01740113) se zájmem o jeho služby. Tato společnost je součástí seskupení/sítě/franšízového modelu realitních kanceláří, jejich seznam můžete zobrazit kliknutím na tento odkaz.
QARA s.r.o. Ostrava (IČ 01740113) , QARA s.r.o. Brno (IČ 01740113) , QARA s.r.o. (IČ 01740113)
Uživatel tyto osobní údaje poskytuje dobrovolně a bere na vědomí, že součástí služeb Správce, které Správce Uživateli poskytuje, je vyhledání všech Uživateli vyhovujících (dle parametrů - cena, typ nemovitosti, lokalita atd.) nemovitostí. Správce za tímto účelem provozuje aplikace Hlídací pes a newsletter. Tyto služby je možné z každého zaslaného emailu odhlásit. Souhlas se zpracováním osobních údajů Uživatel poskytuje Správci na dobu neurčitou s tím, že svůj udělený souhlas může Uživatel kdykoliv na drese správce info@realitymix.cz odvolat. Správce garantuje Uživateli i další práva uvedené v ustanovení §11 a §21 zákoba č. 101/200 Sb. Ve znění pozdějších předpisů.
Více informací o zpracování údajů získáte zde (realitymix.cz/zasady-ochrany-osobnich-udaju)