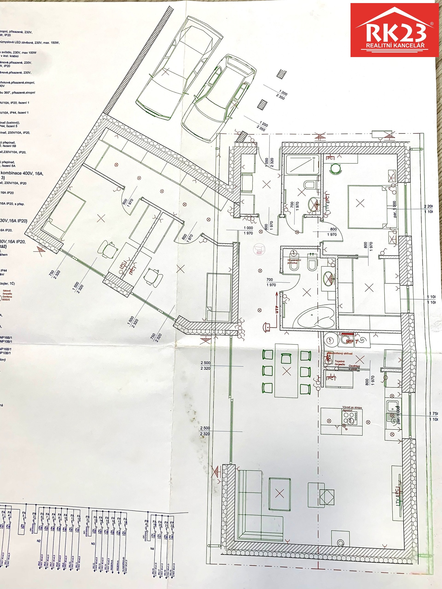
Nabízíme k prodeji výjimečnou novostavbu rodinného domu 4+kk v oblíbené lokalitě v obci Velká Hleďsebe. Tato novostavba s užitnou plochou 177 m2 se nachází na pozemku o velikosti 846 m2. Dům byl postaven v roce 2025. Objekt je jednopodlažní. V domě se nachází obývací pokoj s kuchyňským koutem a jídelnou, ložnice, dva samostatné pokoje, dvě koupelny se sprchou, vanou a toaletou, technická místnost a prostorná chodba. Ze tří pokojů je vstup na prostornou terasu a okrasnou zahradu. Celý pozemek je oplocený, což zajišťuje maximální soukromí. Vjezd na zahradu je možný z ulice přes pojízdnou bránu. Zahrada je zatravněná. Nachází se zde zahradní domek s osvětlením pro uložení zahradního nářadí. Také je zde vyvedená voda na zalévání zahrady. Dům je postaven v elegantním designu s použitím nejnovějších technologií a kvalitních materiálu. Vytápění je podlahové, které je zajištěno tepelným čerpadlem a ohřev vody bojlerem. Dům je napojen na veřejnou kanalizaci a vodovodní řad, je velmi úsporný, s nízkými náklady na provoz. Na pozemku je retenční nádrž na zadržování dešťové vody. Dům disponuje okny z trojskel, venkovními žaluziemi a venkovním osvětlením celého domu. Před domem je kryté parkovací stání pro dvě auta a také nabíjecí zásuvka na elektroauto. V domě je nainstalovaný kamerový systém a zabezpečení. Stavitel nabízí nadstandardní záruku 5 let na celý dům. Novostavba je postavená velmi precizně s důrazem na detail. Je připravená k nastěhování pro komfortní a pohodlný život celé rodiny. Je v dobré dopravní dostupnosti, cca 2 km od Mariánských Lázní. V obci je veškerá občanská vybavenost.
Pomocí naší hypoteční kalkulačky si můžete udělat orientační představu o výši měsíčních splátek hypotéky. O vše ostatní se pak postaráme my ve spolupráci s našimi obchodními partnery.
52 593 Kč
* Odhadovaná měsíční splátka vychází z výše úvěru Kč s pevnou úrokovou sazbou % po celou dobu trvání úvěru.
Uživatel serveru RealityMIX.cz (dále jen „Server“) dostupného na internetové adrese (URL) https://www.realitymix.cz, který provozuje společnost DALTEN media s.r.o., se sídlem Na Harfě 916/9a, Praha 9, 190 00, IČO: 271 35 306 (dále jen „Správce“) jako provozovateli tohoto Serveru uděluje svůj výslovný souhlas v souladu s ustanovením § 5 zákona č. 101/2000 Sb. O ochraně osobních údajů a o změně některých zákonů, v platném znění (dále jen „zákon o ochraně osobních údajů“), se zpracováním uživatelem poskytnutých osobních údajů a dalších dat.
Uživatel poskytuje Správci osobní údaje v rozsahu: jméno, příjmení, e-mailová adresa, telefonický kontakt a další data, a to z důvodu projeveného zájmu o nemovitost, kde prostřednictvím služby Serveru Správce osloví Uživatel inzerenta uvedeného v detailu
nemovitosti - RK23 – REALITNÍ KANCELÁŘ (IČ 29120527) se zájmem o jeho služby. Tato společnost je součástí seskupení/sítě/franšízového modelu realitních kanceláří, jejich seznam můžete zobrazit kliknutím na tento odkaz.
RK23 Mariánské Lázně (IČ 29120527) , RK23 Cheb (IČ 29120527) , RK23 Plzeň (IČ 29120527) , RK23 Praha (IČ 29120527) , RK23 Karlovy Vary (IČ 29120527) , RK23 Tachov (IČ 29120527) , RK23 Sokolov (IČ 29120527) , RK23 – REALITNÍ KANCELÁŘ (IČ 29120527)
Uživatel tyto osobní údaje poskytuje dobrovolně a bere na vědomí, že součástí služeb Správce, které Správce Uživateli poskytuje, je vyhledání všech Uživateli vyhovujících (dle parametrů - cena, typ nemovitosti, lokalita atd.) nemovitostí. Správce za tímto účelem provozuje aplikace Hlídací pes a newsletter. Tyto služby je možné z každého zaslaného emailu odhlásit. Souhlas se zpracováním osobních údajů Uživatel poskytuje Správci na dobu neurčitou s tím, že svůj udělený souhlas může Uživatel kdykoliv na drese správce info@realitymix.cz odvolat. Správce garantuje Uživateli i další práva uvedené v ustanovení §11 a §21 zákoba č. 101/200 Sb. Ve znění pozdějších předpisů.
Více informací o zpracování údajů získáte zde (realitymix.cz/zasady-ochrany-osobnich-udaju)