hledáte dům s charakterem, potenciálem a výjimečnou polohou? Máme pro vás zajímavou nabídku přímo v srdci Velkých Pavlovic – oblíbené vinařské obce s neopakovatelnou atmosférou a kompletní občanskou vybaveností.
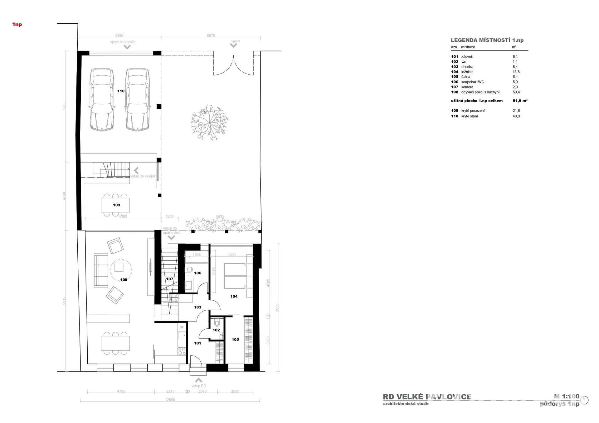
Nabízíme k prodeji rodinný dům určený ke kompletní rekonstrukci nebo demolici, s již hotovou architektonickou studií. Ta nabízí možnost vytvoření komfortního rodinného bydlení 4+kk nebo tří samostatných apartmánů – ideální příležitost pro investici v turisticky atraktivní lokalitě.
Celková užitná plocha domu je 150 m² a součástí nemovitosti je také klenutý sklep po rekonstrukci – chybí jen drobné dokončovací detaily. Výhodou jsou dvě parkovací místa na vlastním pozemku a další možnost parkování přímo před domem.
Dům se nachází v klidné, ale centrální části obce, jen pár kroků od vinohradů, sklepních uliček i centra. Rekonstrukce nebo nová výstavba zde nabízí jedinečnou možnost spojení klidného bydlení a atraktivního podnikání.
Pokud hledáte prostor pro realizaci vlastních představ nebo investiční příležitost s atmosférou a příběhem, neváhejte nás kontaktovat. Rádi vám poskytneme další informace a domluvíme osobní prohlídku.
Pomocí naší hypoteční kalkulačky si můžete udělat orientační představu o výši měsíčních splátek hypotéky. O vše ostatní se pak postaráme my ve spolupráci s našimi obchodními partnery.
15 183 Kč
* Odhadovaná měsíční splátka vychází z výše úvěru Kč s pevnou úrokovou sazbou % po celou dobu trvání úvěru.
Uživatel serveru RealityMIX.cz (dále jen „Server“) dostupného na internetové adrese (URL) https://www.realitymix.cz, který provozuje společnost DALTEN media s.r.o., se sídlem Na Harfě 916/9a, Praha 9, 190 00, IČO: 271 35 306 (dále jen „Správce“) jako provozovateli tohoto Serveru uděluje svůj výslovný souhlas v souladu s ustanovením § 5 zákona č. 101/2000 Sb. O ochraně osobních údajů a o změně některých zákonů, v platném znění (dále jen „zákon o ochraně osobních údajů“), se zpracováním uživatelem poskytnutých osobních údajů a dalších dat.
Uživatel poskytuje Správci osobní údaje v rozsahu: jméno, příjmení, e-mailová adresa, telefonický kontakt a další data, a to z důvodu projeveného zájmu o nemovitost, kde prostřednictvím služby Serveru Správce osloví Uživatel inzerenta uvedeného v detailu
nemovitosti - FRAMI REAL (IČ 75892189) se zájmem o jeho služby.
Uživatel tyto osobní údaje poskytuje dobrovolně a bere na vědomí, že součástí služeb Správce, které Správce Uživateli poskytuje, je vyhledání všech Uživateli vyhovujících (dle parametrů - cena, typ nemovitosti, lokalita atd.) nemovitostí. Správce za tímto účelem provozuje aplikace Hlídací pes a newsletter. Tyto služby je možné z každého zaslaného emailu odhlásit. Souhlas se zpracováním osobních údajů Uživatel poskytuje Správci na dobu neurčitou s tím, že svůj udělený souhlas může Uživatel kdykoliv na drese správce info@realitymix.cz odvolat. Správce garantuje Uživateli i další práva uvedené v ustanovení §11 a §21 zákoba č. 101/200 Sb. Ve znění pozdějších předpisů.
Více informací o zpracování údajů získáte zde (realitymix.cz/zasady-ochrany-osobnich-udaju)