Prodej rodinného domu 102 m2 Masarykova, Velké Popovice
Nabízíme k prodeji rodinný dům v obci Velké Popovice, ul. Masarykova, který je ideální volbou pro ty, kteří si chtějí vytvořit bydlení podle vlastních představ a zároveň ocení klidné zázemí obce s výbornou dostupností do Prahy.
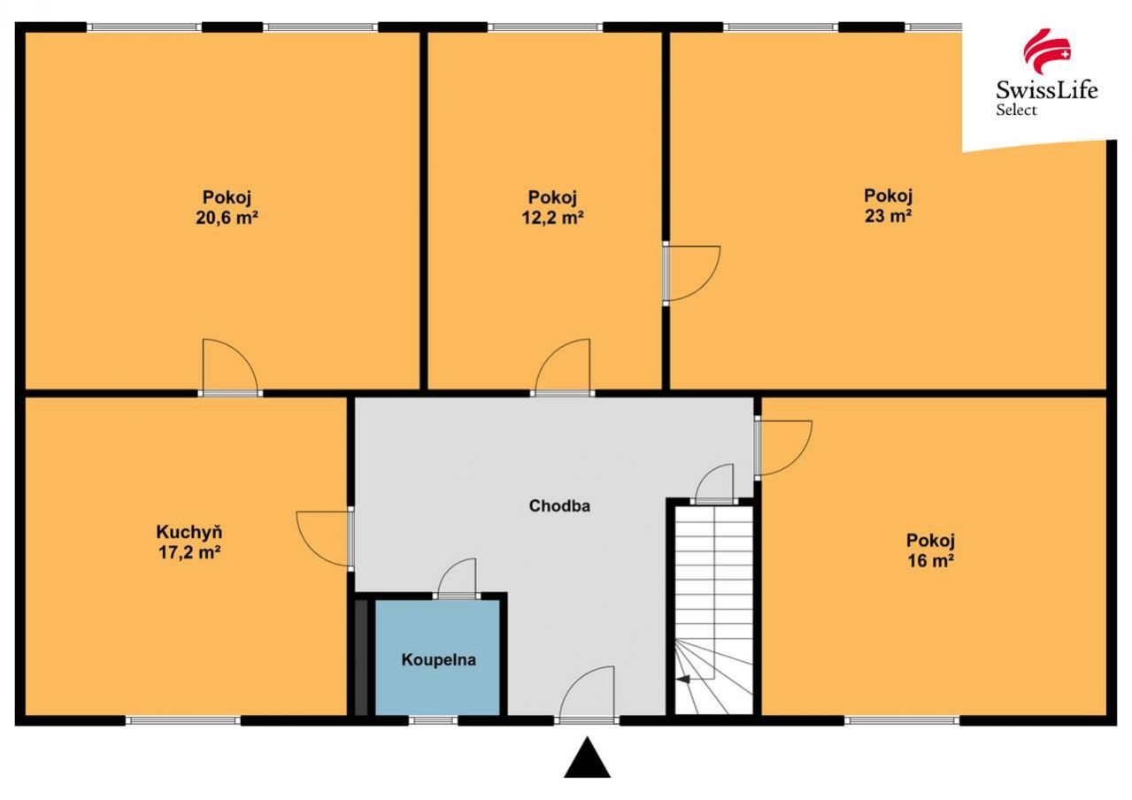
Jedná se o zděnou stavbu s dispozicí 4+1. Podlahová plocha obytné části v přízemí je 102,19 m, další velký potenciál nabízí půda o výměře 95 m, kde je možné vybudovat další obytné místnosti. Celková výměra pozemku je 656 m.
Nemovitost je určena k rekonstrukci, nicméně některé prvky již byly v minulých letech obnoveny plastová okna i střecha byly rekonstruovány přibližně před 12 lety. Vytápění zajišťuje plynový kotel s rozvodem do radiátorů. Nemovitost je napojena na elektřinu, plyn a veřejnou kanalizaci, k dispozici je také vlastní studna.
Dům nabízí ideální zázemí pro rodinu a díky své poloze představuje ideální příležitost pro ty, kteří chtějí bydlet na dosah Prahy, a přesto mít vlastní zahradu a dostatek prostoru. V obci se nachází mateřská i základní škola, obchody, sportoviště, dětská hřiště i známý pivovar.
Pro více informací nebo sjednání prohlídky nás neváhejte kontaktovat. Rádi Vám zajistím také financování koupě této nemovitosti.
Pomocí naší hypoteční kalkulačky si můžete udělat orientační představu o výši měsíčních splátek hypotéky. O vše ostatní se pak postaráme my ve spolupráci s našimi obchodními partnery.
34 009 Kč
* Odhadovaná měsíční splátka vychází z výše úvěru Kč s pevnou úrokovou sazbou % po celou dobu trvání úvěru.
Uživatel serveru RealityMIX.cz (dále jen „Server“) dostupného na internetové adrese (URL) https://www.realitymix.cz, který provozuje společnost DALTEN media s.r.o., se sídlem Na Harfě 916/9a, Praha 9, 190 00, IČO: 271 35 306 (dále jen „Správce“) jako provozovateli tohoto Serveru uděluje svůj výslovný souhlas v souladu s ustanovením § 5 zákona č. 101/2000 Sb. O ochraně osobních údajů a o změně některých zákonů, v platném znění (dále jen „zákon o ochraně osobních údajů“), se zpracováním uživatelem poskytnutých osobních údajů a dalších dat.
Uživatel poskytuje Správci osobní údaje v rozsahu: jméno, příjmení, e-mailová adresa, telefonický kontakt a další data, a to z důvodu projeveného zájmu o nemovitost, kde prostřednictvím služby Serveru Správce osloví Uživatel inzerenta uvedeného v detailu
nemovitosti - Swiss Life Select Reality (IČ 24260444) se zájmem o jeho služby. Tato společnost je součástí seskupení/sítě/franšízového modelu realitních kanceláří, jejich seznam můžete zobrazit kliknutím na tento odkaz.
Fincentrum a.s. (IČ 24260444) , Swiss Life Select Reality (IČ 24260444)
Uživatel tyto osobní údaje poskytuje dobrovolně a bere na vědomí, že součástí služeb Správce, které Správce Uživateli poskytuje, je vyhledání všech Uživateli vyhovujících (dle parametrů - cena, typ nemovitosti, lokalita atd.) nemovitostí. Správce za tímto účelem provozuje aplikace Hlídací pes a newsletter. Tyto služby je možné z každého zaslaného emailu odhlásit. Souhlas se zpracováním osobních údajů Uživatel poskytuje Správci na dobu neurčitou s tím, že svůj udělený souhlas může Uživatel kdykoliv na drese správce info@realitymix.cz odvolat. Správce garantuje Uživateli i další práva uvedené v ustanovení §11 a §21 zákoba č. 101/200 Sb. Ve znění pozdějších předpisů.
Více informací o zpracování údajů získáte zde (realitymix.cz/zasady-ochrany-osobnich-udaju)