Pronájem velkého řadového rodinného domu v obci Velké Přílepy, ulice Dvořákova č.p. 331.
Rodinný dům nabízí užitnou plochu o výměře 209 m2, a to ve třech nadzemních podlažích + půd ě.
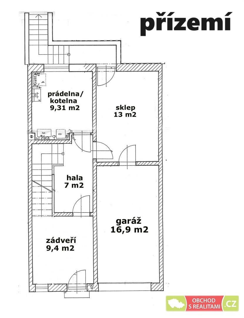
Přízemí domu nabízí sklad s regály, technickou místnost s vanou "pro psa", garáž pro jeden automobil a prostorné zádveří.
V prvním patře se nachází hlavní obytný prostor s kuchyňským koutem o celkové výměře 49 m2, odtud je výstup na terasu / zahradu, dále se v tomto patře nachází komora a WC.
Druhé patro domu nabízí 3 ložnice a koupelnu.
Prostorovou rezervou domu / pracovnou oddělenou od dění v domě / prostorem pro příležitostné přespání může být 33 m2 velká půda, kterou prosvětlují 2 okna a jsou zde radiátory centrálního topení.
Rodinný dům bude předán vybavený kuchyňskou linkou (s myčkou nádobí) dle přiložené fotodokumentace a dále 2 x vestavěnou skříní, jinak je dům nezařízený. Na oknech jsou sítě proti hmyzu, terasu je možné zastínit markýzou. Okna do zahrady jsou zabezpečena předokenními roletami, dále jsou bezpečností vstupní dveře do domu. V domě je možnost připojení internetu a TV od společnosti Cetin (o2 a jiní poskytovatelé).
Vytápění i ohřev vody zajišťuje nově instalovaný plynový kotel. Průkaz energetické náročnosti ve zpracování, po jeho dokončení bude hodnota energetické náročnosti aktualizována.
Zastávka autobusu je vzdálena od domu 250 m, BUS číslo 316 jede na metro A Bořislavka 16 minut (vysoká frekvence spojů ve špičkách).
Záloha na vodu a komunální služby ve výši 500 Kč / osoba.
Záloha na spotřebu plynu ve výši 2.500 Kč / měsíc (převod na nájemce).
Záloha na spotřebu elektrické energie ve výši 2.350 Kč / měsíc (převod na nájemce).
Jistota (kauce) 50.000 Kč (v případně chovu psa či kočky se jistota navyšuje o 10.000 Kč).
Provize realitní kanceláře jedno měsíční nájemné.
Rodinný dům je k nastěhování od 01.03.2026, prohlídky domu jsou možné již nyní!
Cena:
36 000 Kč / (za měsíc)
Datum k nastěhování:
01.03.2026
Číslo zakázky:
REALITYMIX-971319
Podrobné informace
Poloha objektu:řadový
Druh objektu:cihlová
Stav objektu:dobrý
Počet podlaží objektu:4
Typ domu:patrový
Zastavěná plocha:70 m²
Plocha parcely:245 m²
Zahrada:113 m²
Užitná plocha:209 m²
Sklep:ano
Terasa:ano
Ostatní:Garáž
Elektřina:Elektro - 230 V
Voda:Zdroj pro celý objekt, Voda - dálkový vodovod
Uživatel serveru RealityMIX.cz (dále jen „Server“) dostupného na internetové adrese (URL) https://www.realitymix.cz, který provozuje společnost DALTEN media s.r.o., se sídlem Na Harfě 916/9a, Praha 9, 190 00, IČO: 271 35 306 (dále jen „Správce“) jako provozovateli tohoto Serveru uděluje svůj výslovný souhlas v souladu s ustanovením § 5 zákona č. 101/2000 Sb. O ochraně osobních údajů a o změně některých zákonů, v platném znění (dále jen „zákon o ochraně osobních údajů“), se zpracováním uživatelem poskytnutých osobních údajů a dalších dat.
Uživatel poskytuje Správci osobní údaje v rozsahu: jméno, příjmení, e-mailová adresa, telefonický kontakt a další data, a to z důvodu projeveného zájmu o nemovitost, kde prostřednictvím služby Serveru Správce osloví Uživatel inzerenta uvedeného v detailu
nemovitosti - Obchod s realitami.cz (IČ 23253932) se zájmem o jeho služby.
Uživatel tyto osobní údaje poskytuje dobrovolně a bere na vědomí, že součástí služeb Správce, které Správce Uživateli poskytuje, je vyhledání všech Uživateli vyhovujících (dle parametrů - cena, typ nemovitosti, lokalita atd.) nemovitostí. Správce za tímto účelem provozuje aplikace Hlídací pes a newsletter. Tyto služby je možné z každého zaslaného emailu odhlásit. Souhlas se zpracováním osobních údajů Uživatel poskytuje Správci na dobu neurčitou s tím, že svůj udělený souhlas může Uživatel kdykoliv na drese správce info@realitymix.cz odvolat. Správce garantuje Uživateli i další práva uvedené v ustanovení §11 a §21 zákoba č. 101/200 Sb. Ve znění pozdějších předpisů.
Více informací o zpracování údajů získáte zde (realitymix.cz/zasady-ochrany-osobnich-udaju)