Prodej, zemědělská usedlost pozemek 4943 m2- Jivjany, Velký Malahov
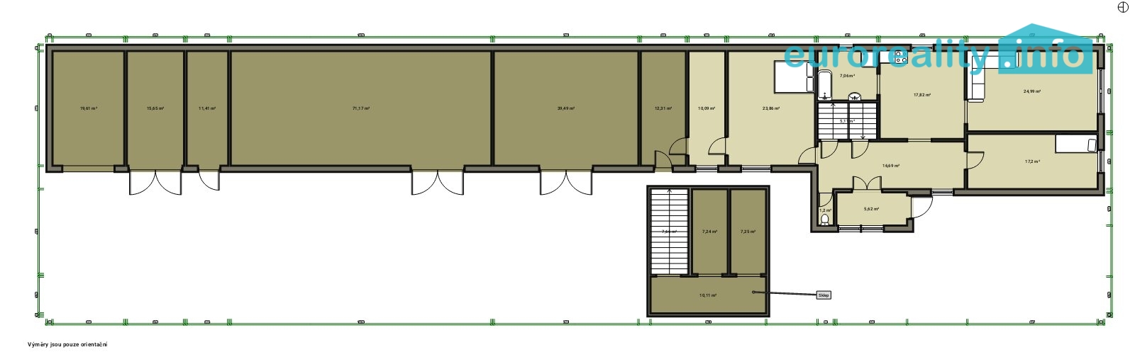
Nabízíme k prodeji zemědělskou usedlost v malebné vesnici Jivjany, část obce Velký Malahov okr. Domažlice, s pozemkem o celkové rozloze 4943 m². Z toho činí přes 500 m² zastavěné plochy, zahrnující obytnou část 3+1 (cca 120 m²), dále pak stodolu, garáž, chlévy a stáje – boxy pro koně. Vlastní studna s novou filtrací, jímka, tepelné čerpadlo, kachlová kamna s troubou. Začátkem roku 2026 připojení na obecní vodovod a kanalizaci. Usedlost nabízí široké možnosti využití – od farmářské činnosti přes chov koní či jiných hospodářských zvířat, až po rekreační či podnikatelské záměry. Klidná lokalita s krásným okolím nabízí dostatek soukromí i skvělou dostupnost. Neváhejte nás kontaktovat pro více informací nebo domluvení prohlídky, rádi s Vámi případně vyřídíme i výhodné financování. Cena je včetně veškerého právního servisu.
Pomocí naší hypoteční kalkulačky si můžete udělat orientační představu o výši měsíčních splátek hypotéky. O vše ostatní se pak postaráme my ve spolupráci s našimi obchodními partnery.
24 252 Kč
* Odhadovaná měsíční splátka vychází z výše úvěru Kč s pevnou úrokovou sazbou % po celou dobu trvání úvěru.
Uživatel serveru RealityMIX.cz (dále jen „Server“) dostupného na internetové adrese (URL) https://www.realitymix.cz, který provozuje společnost DALTEN media s.r.o., se sídlem Na Harfě 916/9a, Praha 9, 190 00, IČO: 271 35 306 (dále jen „Správce“) jako provozovateli tohoto Serveru uděluje svůj výslovný souhlas v souladu s ustanovením § 5 zákona č. 101/2000 Sb. O ochraně osobních údajů a o změně některých zákonů, v platném znění (dále jen „zákon o ochraně osobních údajů“), se zpracováním uživatelem poskytnutých osobních údajů a dalších dat.
Uživatel poskytuje Správci osobní údaje v rozsahu: jméno, příjmení, e-mailová adresa, telefonický kontakt a další data, a to z důvodu projeveného zájmu o nemovitost, kde prostřednictvím služby Serveru Správce osloví Uživatel inzerenta uvedeného v detailu
nemovitosti - Euro Reality ML s.r.o. (IČ 21139865) se zájmem o jeho služby.
Uživatel tyto osobní údaje poskytuje dobrovolně a bere na vědomí, že součástí služeb Správce, které Správce Uživateli poskytuje, je vyhledání všech Uživateli vyhovujících (dle parametrů - cena, typ nemovitosti, lokalita atd.) nemovitostí. Správce za tímto účelem provozuje aplikace Hlídací pes a newsletter. Tyto služby je možné z každého zaslaného emailu odhlásit. Souhlas se zpracováním osobních údajů Uživatel poskytuje Správci na dobu neurčitou s tím, že svůj udělený souhlas může Uživatel kdykoliv na drese správce info@realitymix.cz odvolat. Správce garantuje Uživateli i další práva uvedené v ustanovení §11 a §21 zákoba č. 101/200 Sb. Ve znění pozdějších předpisů.
Více informací o zpracování údajů získáte zde (realitymix.cz/zasady-ochrany-osobnich-udaju)