Prodej prostorného bytu 3+kk, 2 balkony a šatna, Veselí nad Lužnicí – ulice Weisova
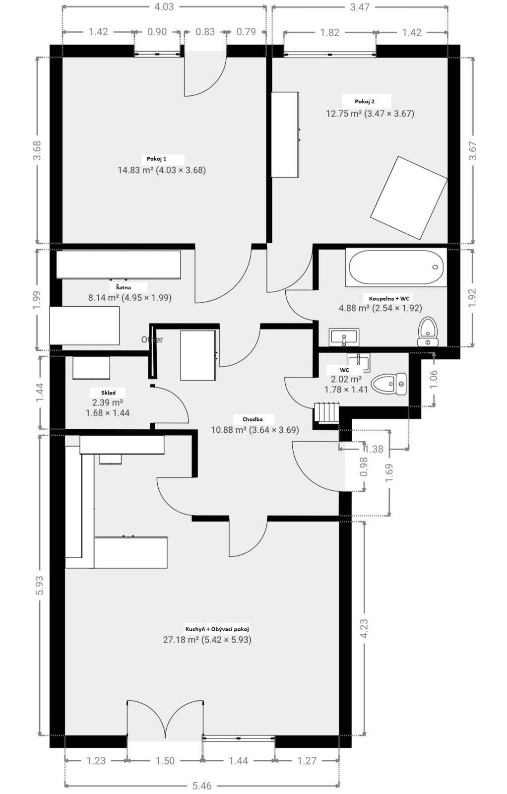
Nabízíme k prodeji velmi pěkný a dobře řešený byt o dispozici 3+kk s užitnou plochou 89 m², který se nachází ve 2. patře zděného bytového domu v ulici Weisova ve Veselí nad Lužnicí. Dům byl postaven v roce 1999 a nachází se v příjemné, udržované zástavbě s výbornou dostupností do centra města.
Byt působí vzdušně a nabízí funkční dispoziční uspořádání:
obývací pokoj (20 m²) propojený s kuchyňským koutem (6,7 m²),
dětský pokoj (14 m²),
ložnice (12,6 m²),
předsíň (9 m²),
koupelna (4,3 m²),
samostatné WC (1,8 m²),
komora (2,5 m²),
šatna (8 m²).
K bytu náleží dva balkony (5,6 m² a 4,4 m²) s pěkným výhledem do okolí.
Vytápění zajišťuje nový samostatný plynový kondenzační kotel z roku 2023, který slouží i k ohřevu vody. Energetická náročnost budovy: třída D.
Parkování je možné veřejně před domem a v jeho blízkosti.
V okolí se nachází škola, školka, dětské hřiště, obchody i autobusová zastávka, vše v pohodlné pěší vzdálenosti. Lokalita je klidná, s množstvím zeleně a dobrým napojením na hlavní dopravní tahy směrem na České Budějovice, Tábor a Prahu.
Cena:
Rezervováno
Dispozice/podlahová plocha:
3+kk/89 m²
Číslo zakázky:
REALITYMIX-CB251111
Podrobné informace
Dispozice bytu:3+kk
Číslo podlaží v domě:2
Počet podlaží objektu:1
Užitná plocha:89 m²
Celková podlahová plocha:89 m²
Druh objektu:cihlová
Stav objektu:dobrý
Vlastnictví:osobní
Umístění objektu:centrum obce
Elektřina:Elektro - 230 V
Plyn:Plynovod
Topení:Ústřední - plynové
Energetická náročnost budovy:D - Méně úsporná
Energetický ukazatel podle vyhlášky:č. 264/2020 Sb.
Uživatel serveru RealityMIX.cz (dále jen „Server“) dostupného na internetové adrese (URL) https://www.realitymix.cz, který provozuje společnost DALTEN media s.r.o., se sídlem Na Harfě 916/9a, Praha 9, 190 00, IČO: 271 35 306 (dále jen „Správce“) jako provozovateli tohoto Serveru uděluje svůj výslovný souhlas v souladu s ustanovením § 5 zákona č. 101/2000 Sb. O ochraně osobních údajů a o změně některých zákonů, v platném znění (dále jen „zákon o ochraně osobních údajů“), se zpracováním uživatelem poskytnutých osobních údajů a dalších dat.
Uživatel poskytuje Správci osobní údaje v rozsahu: jméno, příjmení, e-mailová adresa, telefonický kontakt a další data, a to z důvodu projeveného zájmu o nemovitost, kde prostřednictvím služby Serveru Správce osloví Uživatel inzerenta uvedeného v detailu
nemovitosti - SORENT-CB s.r.o. (IČ 28104102) se zájmem o jeho služby.
Uživatel tyto osobní údaje poskytuje dobrovolně a bere na vědomí, že součástí služeb Správce, které Správce Uživateli poskytuje, je vyhledání všech Uživateli vyhovujících (dle parametrů - cena, typ nemovitosti, lokalita atd.) nemovitostí. Správce za tímto účelem provozuje aplikace Hlídací pes a newsletter. Tyto služby je možné z každého zaslaného emailu odhlásit. Souhlas se zpracováním osobních údajů Uživatel poskytuje Správci na dobu neurčitou s tím, že svůj udělený souhlas může Uživatel kdykoliv na drese správce info@realitymix.cz odvolat. Správce garantuje Uživateli i další práva uvedené v ustanovení §11 a §21 zákoba č. 101/200 Sb. Ve znění pozdějších předpisů.
Více informací o zpracování údajů získáte zde (realitymix.cz/zasady-ochrany-osobnich-udaju)