Prodej ostatní komerční nemovitosti, 391 m² - Veselí nad Moravou
Výjimečná příležitost – ve výhradním zastoupení nabízíme k prodeji přízemní, částečně podsklepený podnikatelský objekt přímo v centru Veselí nad Moravou, jen pár metrů od nádraží a samotného středu města. Zastavěná plocha 391 m2, celková plocha pozemku 885 m2.
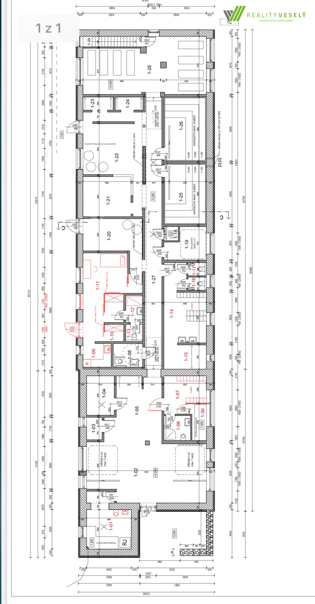
V současnosti je objekt využíván jako zavedené Wellness – finská a parní sauna, dvě vířivé vany, ochlazovací bazén, odpočívárna, recepce, bar, šatny, venkovní ochlazovací terasa, sklepní prostory využívány jako masérna. Část objektu je využívána jako zařízený apartmán s kapacitou 4 lůžek ke krátkodobému pronájmu. Objekt byl nákladně kompletně rekonstruován a uveden do provozu v roce 2020, vytápění ústřední, tepelným čerpadlem. Možno pokračovat ve stávající činnosti, popřípadě předělat pouze na ubytování nebo jakoukoliv činnost dle vlastních představ. Součástí nemovitosti je stavební pozemek před budovou umožňující vlastní parkování nebo stavbu dalšího objektu. Pro více informací a prohlídku volejte makléři.
Cena:
Cena na vyžádání
Poznámka:
info v RK
Plocha:
391 m²
Číslo zakázky:
REALITYMIX-00640
Podrobné informace
Celková plocha:391 m²
Počet podlaží objektu:1
Druh objektu:cihlová
Stav objektu:po rekonstrukci
Účel budovy:Jiný
Ostatní:Bezbarierový přístup
Umístění objektu:centrum obce
Doprava:vlak, silnice, autobus
Topení:Ústřední - elektrické
Energetická náročnost budovy:B - Velmi úsporná
Ukazatel energetické náročnosti budovy:174 kWh/m²
Energetický ukazatel podle vyhlášky:č. 78/2013 Sb.
Uživatel serveru RealityMIX.cz (dále jen „Server“) dostupného na internetové adrese (URL) https://www.realitymix.cz, který provozuje společnost DALTEN media s.r.o., se sídlem Na Harfě 916/9a, Praha 9, 190 00, IČO: 271 35 306 (dále jen „Správce“) jako provozovateli tohoto Serveru uděluje svůj výslovný souhlas v souladu s ustanovením § 5 zákona č. 101/2000 Sb. O ochraně osobních údajů a o změně některých zákonů, v platném znění (dále jen „zákon o ochraně osobních údajů“), se zpracováním uživatelem poskytnutých osobních údajů a dalších dat.
Uživatel poskytuje Správci osobní údaje v rozsahu: jméno, příjmení, e-mailová adresa, telefonický kontakt a další data, a to z důvodu projeveného zájmu o nemovitost, kde prostřednictvím služby Serveru Správce osloví Uživatel inzerenta uvedeného v detailu
nemovitosti - REALITY VESELÝ s.r.o. (IČ 02203316) se zájmem o jeho služby.
Uživatel tyto osobní údaje poskytuje dobrovolně a bere na vědomí, že součástí služeb Správce, které Správce Uživateli poskytuje, je vyhledání všech Uživateli vyhovujících (dle parametrů - cena, typ nemovitosti, lokalita atd.) nemovitostí. Správce za tímto účelem provozuje aplikace Hlídací pes a newsletter. Tyto služby je možné z každého zaslaného emailu odhlásit. Souhlas se zpracováním osobních údajů Uživatel poskytuje Správci na dobu neurčitou s tím, že svůj udělený souhlas může Uživatel kdykoliv na drese správce info@realitymix.cz odvolat. Správce garantuje Uživateli i další práva uvedené v ustanovení §11 a §21 zákoba č. 101/200 Sb. Ve znění pozdějších předpisů.
Více informací o zpracování údajů získáte zde (realitymix.cz/zasady-ochrany-osobnich-udaju)