Zprostředkujeme Vám prodej pěkného stavebního pozemku o velikosti 1.507 m2 v obci Veverské Knínice, který nabízíme k prodeji ve výhradním zastoupení majitele. Pozemek se nachází na kraji obce ve velmi klidné části. Stavební šířka pozemku je cca 15,5 m a délka cca 97,2 m. Vjezd na pozemek vede z obecní cesty. Inženýrské sítě jsou vzdálené několik metrů.
Doporučujeme na tomto pozemku postavit rodinný patrový kompaktní 5-pokojový dům KUBIS 121, který je častým požadavkem našich zákazníků. Tento rodinný dům má plnohodnotnou ložnici/pracovnu v přízemí a další 3 velké pokoje v patře. Pultová střecha a velká okna podtrhávají jeho moderní vzhled. Čtvercový půdorys a zastavěná plocha necelých sto metrů čtverečních jsou ideální i na menší pozemky. Přesto se vám bude v tomto typovém domě pohodlně bydlet, protože poskytuje 121 m2 obytné plochy. Garážové stání formou zastřešené pergoly a krytý vstup do domu zvyšují jeho komfort a oblíbenost. Proč si vybrat dům od RD Rýmařov? Tepelné čerpadlo v ceně domu, čerpadlo vzduch - vzduch v zimě dům vyhřeje, v létě zase ochladí v ceně domu, fotovoltaická elektrárna v ceně domu - systém ON GRID s akumulací do zásobníku TUV: využívá sluneční energii pro ohřev užitkové vody v 200 litrovém zásobníku. Základová deska je v ceně domu - ušetříte, a navíc vám odpadne spousta starostí.
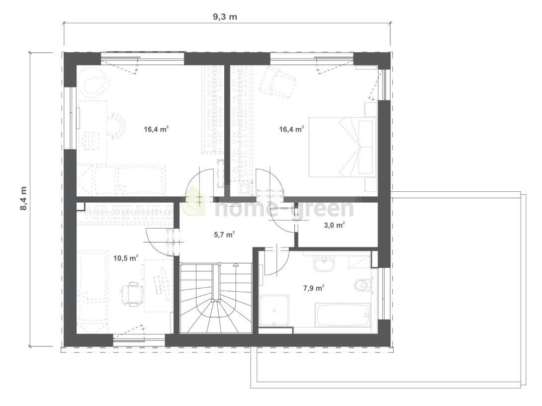
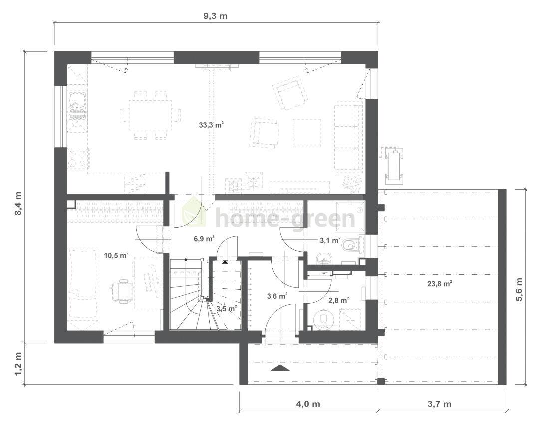
Provedení domu 5 + kk
Užitná plocha 121 m2
Zastavěná plocha vč. stání 104 m2
Rozměry domu 9.1 x 8.4 m
Veverské Knínice jsou obec v okrese Brno-venkov v Jihomoravském kraji. Leží na rozhraní Boskovické brázdy a Křižanovské vrchoviny. Krásná příroda v okolí obce poskytuje velké možnosti pro volnočasovou aktivitu v blízkosti Brněnské přehrady a hradu Veveří. Ve Veverských Knínicích můžete navštívit kapličku sv. Ludmily s kamenem z Araratu, případně zrekonstruovanou sokolovnu. Pro výlety do okolí se hodí Podkomorské lesy s památníkem Helenky z Pohádky máje, nebo se můžete vydat na nedalekou vyhlídku Trůn. Mezi další blízké cíle patří Jarošův mlýn ve Veverské Bítýšce , hrad Veveří nebo Auto-motodrom Brno v Ostrovačicích. Obec je součástí dobrovolného svazku obcí Panství hradu veverského. V současné době je v obci 332 domů a žije tu přibližně 954 obyvatel. Obec je vzdálená cca 10 km od města Rosice a cca 20 Km západně od města Brno. Sjezd z dálnice D1 je v blízkosti 3 km u obce Ostrovačice a v centru Brna lze být autem za 15 minut. Vizualizace RD k výstavbě je pouze ilustrativní. Nabídku doporučujeme a se zajištěním financování Vám rádi pomůžeme.
Energetický štítek: B - Úsporná dle vyhlášky č. 264/2020 Sb.
Pomocí naší hypoteční kalkulačky si můžete udělat orientační představu o výši měsíčních splátek hypotéky. O vše ostatní se pak postaráme my ve spolupráci s našimi obchodními partnery.
24 252 Kč
* Odhadovaná měsíční splátka vychází z výše úvěru Kč s pevnou úrokovou sazbou % po celou dobu trvání úvěru.
Uživatel serveru RealityMIX.cz (dále jen „Server“) dostupného na internetové adrese (URL) https://www.realitymix.cz, který provozuje společnost DALTEN media s.r.o., se sídlem Na Harfě 916/9a, Praha 9, 190 00, IČO: 271 35 306 (dále jen „Správce“) jako provozovateli tohoto Serveru uděluje svůj výslovný souhlas v souladu s ustanovením § 5 zákona č. 101/2000 Sb. O ochraně osobních údajů a o změně některých zákonů, v platném znění (dále jen „zákon o ochraně osobních údajů“), se zpracováním uživatelem poskytnutých osobních údajů a dalších dat.
Uživatel poskytuje Správci osobní údaje v rozsahu: jméno, příjmení, e-mailová adresa, telefonický kontakt a další data, a to z důvodu projeveného zájmu o nemovitost, kde prostřednictvím služby Serveru Správce osloví Uživatel inzerenta uvedeného v detailu
nemovitosti - HOME GREEN (IČ 02609096) se zájmem o jeho služby.
Uživatel tyto osobní údaje poskytuje dobrovolně a bere na vědomí, že součástí služeb Správce, které Správce Uživateli poskytuje, je vyhledání všech Uživateli vyhovujících (dle parametrů - cena, typ nemovitosti, lokalita atd.) nemovitostí. Správce za tímto účelem provozuje aplikace Hlídací pes a newsletter. Tyto služby je možné z každého zaslaného emailu odhlásit. Souhlas se zpracováním osobních údajů Uživatel poskytuje Správci na dobu neurčitou s tím, že svůj udělený souhlas může Uživatel kdykoliv na drese správce info@realitymix.cz odvolat. Správce garantuje Uživateli i další práva uvedené v ustanovení §11 a §21 zákoba č. 101/200 Sb. Ve znění pozdějších předpisů.
Více informací o zpracování údajů získáte zde (realitymix.cz/zasady-ochrany-osobnich-udaju)