Prodej poloviny moderního dvojdomu 5+kk (130 m²) s privátní zahradou 564 m² — nový začátek na dosah
Hledáte nový směr? Místo, kde můžete zpomalit, najít rovnováhu a žít blíž přírodě, aniž byste museli obětovat pohodlí moderního života? Tahle polovina nového cihlového dvojdomu z roku 2024 může být přesně tím startem, který hledáte. Ideální pro ty, kdo pracují odkudkoli, chtějí více volnosti, klidu a čerstvého vzduchu — a přesto chtějí zůstat v kontaktu s městem.
Dům stojí na kraji obce, kde končí silnice a začínají louky, lesy a čistá šumavská příroda.
Co získáte?
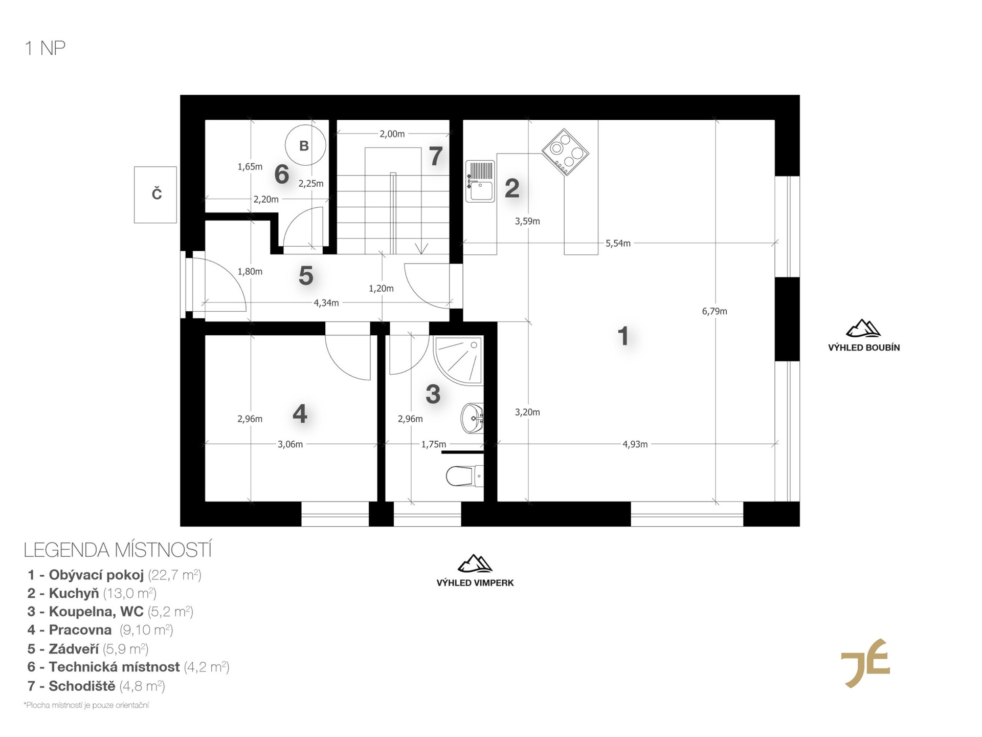
- Dům o dispozici 5+kk a užitné ploše 130 m² — dostatek prostoru pro rodinu, práci i koníčky.
- Soukromou zahradu 564 m², která nabízí absolutní klid, soukromí a prostor pro relaxaci i hry dětí.
- Pokoj pro hosty nebo pracovna v přízemí hned za vchodem do domu.
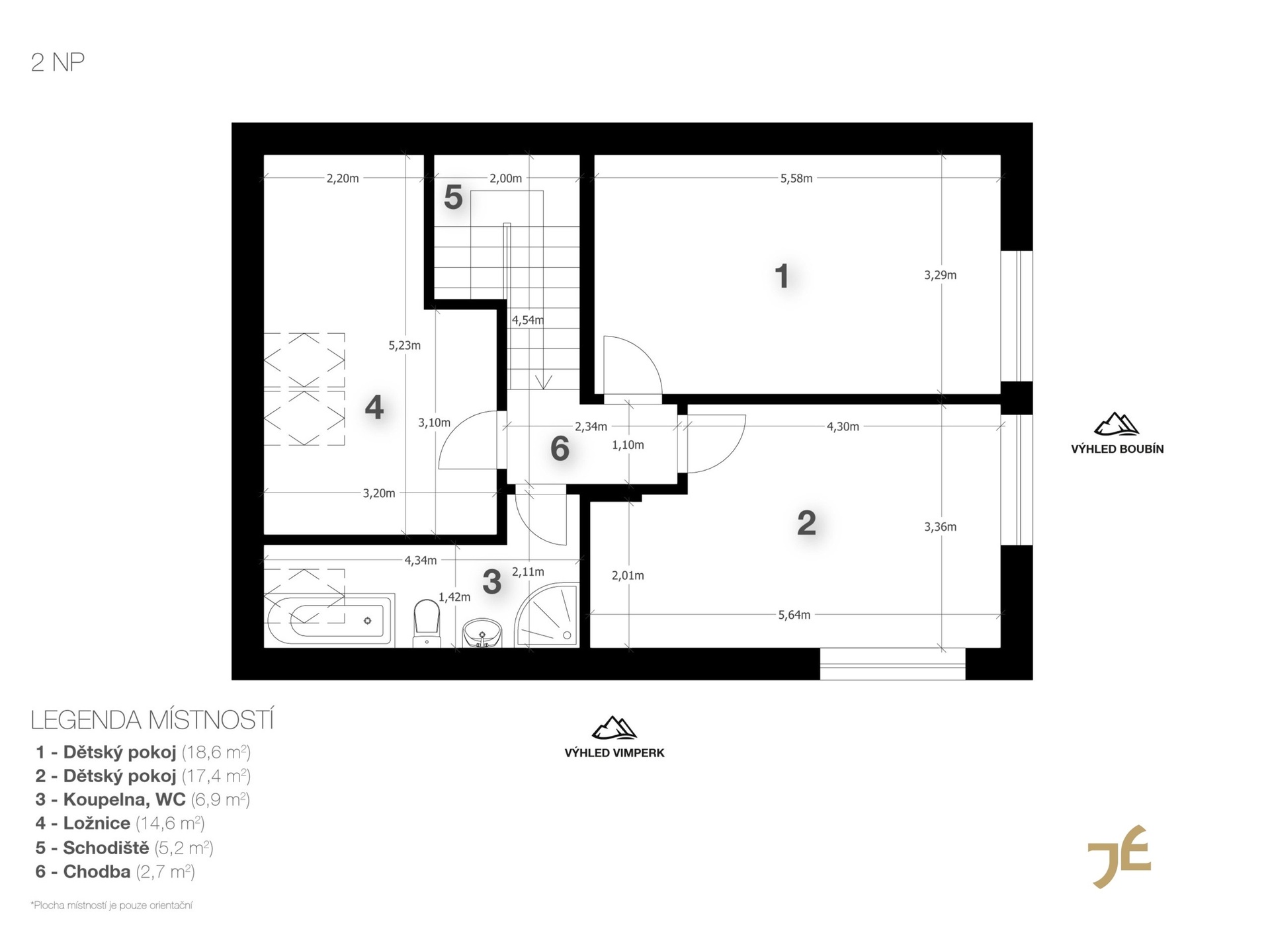
- Dvě koupelny - v přízemí se sprchovým koutem, v patře s vanou.
- Podlahové vytápění v celém domě a komín na krbová kamna v obývacím pokoji.
- Dvě vlastní parkovací místa s přípravou na nabíjení elektromobilu.
- Panoramatický výhled na Boubín — každý den připomíná blízkost Šumavy.
- Špičkové odhlučnění mezi oběma polovinami dvojdomu zaručuje maximální soukromí.
- Úsporný provoz díky tepelnému čerpadlu, retenční nádrži a přípravě na fotovoltaiku.
- Hotové koupelny, toalety i podlahy — stačí se nastěhovat a doladit detaily podle svého.
Promyšlené řešení, klidné bydlení
Každá polovina dvojdomu má vlastní kanalizační přípojku, vodoměr i podlahové vytápění v celém domě.
Tři pokoje nabízí výhled na šumavský Boubín a rohový pokoj s lomenými okny navíc odkrývá panorama Vimperka.
Prostor, který působí svěže a příjemně — ideální pro nový životní rytmus.
Klid na konci ulice, služby na dosah
Dům leží na samém okraji zástavby, přímo u přírody. Jen 3 minuty autem od domu je RETAIL PARK VIMPERK, takže nákupy máte doslova za rohem. Do centra Vimperka to máte pár minut, a když se budete chtít projít, 500 m nad domem se tyčí Velká Homolka s fantastickým výhledem na celé město.
Šumava, lesy, traily, louky — vše kousek od vašeho nového domova.
Zavolejte mi a domluvte si prohlídku. Tenhle dům může být vaším novým začátkem.
Cena:
Rezervováno
Číslo zakázky:
REALITYMIX-00008
Podrobné informace
Poloha objektu:samostatný
Druh objektu:cihlová
Stav objektu:novostavba
Počet podlaží objektu:2
Typ domu:patrový
Zastavěná plocha:83 m²
Plocha parcely:677 m²
Zahrada:594 m²
Užitná plocha:130 m²
Terasa:10 m²
Ostatní:Parkoviště
Umístění objektu:okraj obce
Doprava:vlak, silnice, autobus
Komunikace:asfaltová
Elektřina:Elektro - 230 V, Elektro - 400 V
Voda:Voda - dálkový vodovod
Telekomunikace:Internet
Topení:Lokální - tuhá paliva, Ústřední - elektrické
Odpad:Kanalizace
Energetická náročnost budovy:B - Velmi úsporná
Ukazatel energetické náročnosti budovy:77 kWh/m²
Energetický ukazatel podle vyhlášky:č. 264/2020 Sb.
Uživatel serveru RealityMIX.cz (dále jen „Server“) dostupného na internetové adrese (URL) https://www.realitymix.cz, který provozuje společnost DALTEN media s.r.o., se sídlem Na Harfě 916/9a, Praha 9, 190 00, IČO: 271 35 306 (dále jen „Správce“) jako provozovateli tohoto Serveru uděluje svůj výslovný souhlas v souladu s ustanovením § 5 zákona č. 101/2000 Sb. O ochraně osobních údajů a o změně některých zákonů, v platném znění (dále jen „zákon o ochraně osobních údajů“), se zpracováním uživatelem poskytnutých osobních údajů a dalších dat.
Uživatel poskytuje Správci osobní údaje v rozsahu: jméno, příjmení, e-mailová adresa, telefonický kontakt a další data, a to z důvodu projeveného zájmu o nemovitost, kde prostřednictvím služby Serveru Správce osloví Uživatel inzerenta uvedeného v detailu
nemovitosti - Bc. Šimon Jelínek - realitní makléř (IČ 87830809) se zájmem o jeho služby.
Uživatel tyto osobní údaje poskytuje dobrovolně a bere na vědomí, že součástí služeb Správce, které Správce Uživateli poskytuje, je vyhledání všech Uživateli vyhovujících (dle parametrů - cena, typ nemovitosti, lokalita atd.) nemovitostí. Správce za tímto účelem provozuje aplikace Hlídací pes a newsletter. Tyto služby je možné z každého zaslaného emailu odhlásit. Souhlas se zpracováním osobních údajů Uživatel poskytuje Správci na dobu neurčitou s tím, že svůj udělený souhlas může Uživatel kdykoliv na drese správce info@realitymix.cz odvolat. Správce garantuje Uživateli i další práva uvedené v ustanovení §11 a §21 zákoba č. 101/200 Sb. Ve znění pozdějších předpisů.
Více informací o zpracování údajů získáte zde (realitymix.cz/zasady-ochrany-osobnich-udaju)