Pozemek 2041 m² + dřevostavba 6+kk – Střížov u Vladislavi
Hledáte klid, prostor a nadstandardní bydlení? Nabízíme jedinečnou příležitost pro náročné zájemce, kteří hledají moderní, prostorné a energeticky úsporné bydlení v krásné venkovské lokalitě. Součástí nabídky je stavební pozemek ve Střížově u Vladislavi a nadstandardně velká dřevostavba 6+kk s užitnou plochou 220 m².
Rodinný dům je navržen jako nízkoenergetická dřevostavba z prefabrikovaných rámových stěnových panelů. Jedná se o hrubou stavbu, u které lze individuálně domluvit její dokončení. Dispozice i vzhled domu může stavební firma upravit podle přání klienta. Realizace hrubé stavby je do 4 měsíců
Pozemek se nachází v klidné lokalitě 10 km od Třebíče. Ze Střížova jezdí autobus do Vladislavi i Třebíče, ve Vladislavi (3 km) je vlakové spojení do Třebíče, Brna i Náměště nad Oslavou a kompletní občanská vybavenost: škola, školka, lékař, pošta, knihovna i sportovní zázemí.
Na pozemku je vodovodní a kanalizační přípojka, elektřinu je nutné vyřídit. Přístup na pozemek je z obou stran - z obecní komunikace i z polní cesty.
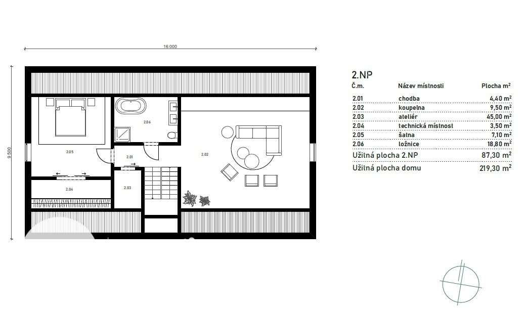
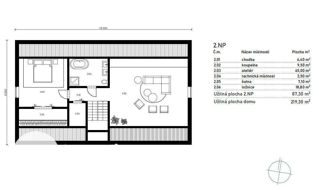
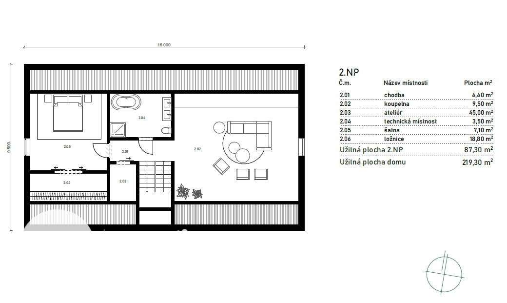
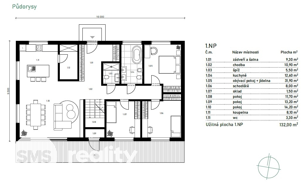
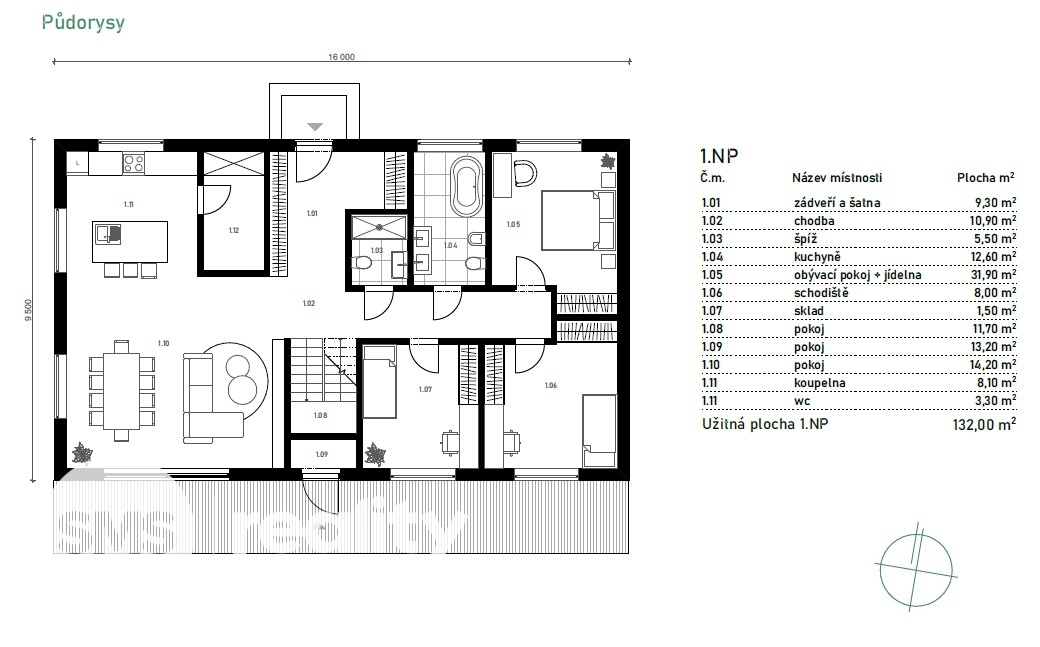
Pro lepší představu přikládám vizualizaci domu, umístění na pozemku a půdorysy obou podlaží.
Pozemek je možné koupit i samostatně. Cena pozemku je k jednání.
Pomocí naší hypoteční kalkulačky si můžete udělat orientační představu o výši měsíčních splátek hypotéky. O vše ostatní se pak postaráme my ve spolupráci s našimi obchodními partnery.
31 693 Kč
* Odhadovaná měsíční splátka vychází z výše úvěru Kč s pevnou úrokovou sazbou % po celou dobu trvání úvěru.
Uživatel serveru RealityMIX.cz (dále jen „Server“) dostupného na internetové adrese (URL) https://www.realitymix.cz, který provozuje společnost DALTEN media s.r.o., se sídlem Na Harfě 916/9a, Praha 9, 190 00, IČO: 271 35 306 (dále jen „Správce“) jako provozovateli tohoto Serveru uděluje svůj výslovný souhlas v souladu s ustanovením § 5 zákona č. 101/2000 Sb. O ochraně osobních údajů a o změně některých zákonů, v platném znění (dále jen „zákon o ochraně osobních údajů“), se zpracováním uživatelem poskytnutých osobních údajů a dalších dat.
Uživatel poskytuje Správci osobní údaje v rozsahu: jméno, příjmení, e-mailová adresa, telefonický kontakt a další data, a to z důvodu projeveného zájmu o nemovitost, kde prostřednictvím služby Serveru Správce osloví Uživatel inzerenta uvedeného v detailu
nemovitosti - SMS reality s.r.o. (IČ 04095421) se zájmem o jeho služby.
Uživatel tyto osobní údaje poskytuje dobrovolně a bere na vědomí, že součástí služeb Správce, které Správce Uživateli poskytuje, je vyhledání všech Uživateli vyhovujících (dle parametrů - cena, typ nemovitosti, lokalita atd.) nemovitostí. Správce za tímto účelem provozuje aplikace Hlídací pes a newsletter. Tyto služby je možné z každého zaslaného emailu odhlásit. Souhlas se zpracováním osobních údajů Uživatel poskytuje Správci na dobu neurčitou s tím, že svůj udělený souhlas může Uživatel kdykoliv na drese správce info@realitymix.cz odvolat. Správce garantuje Uživateli i další práva uvedené v ustanovení §11 a §21 zákoba č. 101/200 Sb. Ve znění pozdějších předpisů.
Více informací o zpracování údajů získáte zde (realitymix.cz/zasady-ochrany-osobnich-udaju)