Nabízíme k postoupení smlouvu o budoucí koupi moderního rodinného domu v obci Vlasatice s výbornou dostupností do Brna. Jedná se o ideální příležitost pro ty, kteří chtějí nové bydlení bez dlouhého čekání a zároveň si interiér doladit podle vlastních představ.
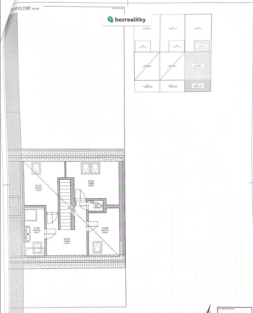
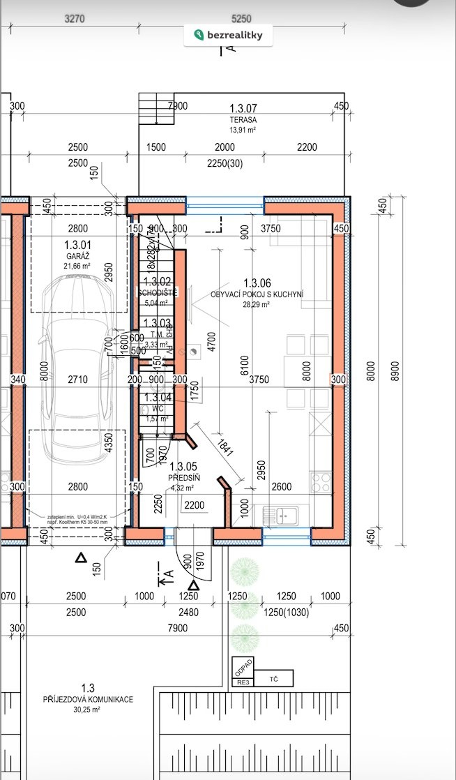
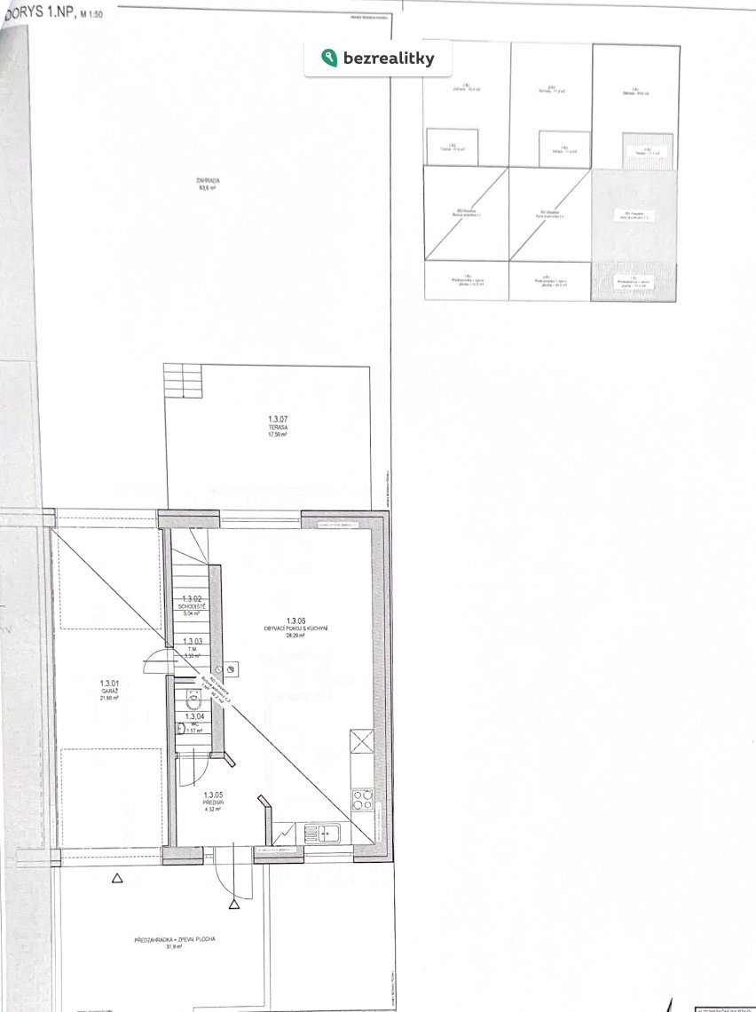
Dům je řešen jako prostorné 4+kk o podlahové ploše 125 m² a stojí na pozemku o velikosti cca 220 m². Velkou výhodou je, že se jedná o krajní dům, díky čemuž máte z jedné strany více soukromí a žádné přímé sousedy. Pozemek tak nabízí příjemné venkovní zázemí bez zbytečné náročnosti na údržbu.
Dispozice je navržena velmi prakticky pro rodinné bydlení – k dispozici jsou dvě samostatná WC a koupelna, která počítá jak se sprchovým koutem, tak s vanou.
Velkým benefitem domu je jeho standard a vybavení. V celém domě je podlahové vytápění, které zajišťuje komfortní a úsporné bydlení, a dominantou obývací části je krb, který dodává prostoru příjemnou atmosféru. V přízemí je použita dlažba, v patře pak vinylové podlahy.
Součástí kupní ceny je také kuchyň, kterou si může budoucí majitel realizovat dle vlastních představ – získáváte tedy nejen prostor, ale i možnost přizpůsobit si srdce domova přesně podle sebe, bez kompromisů.
Nemovitost je aktuálně ve výstavbě, přičemž předpokládané dokončení je v průběhu léta 2026 (dle smlouvy nejpozději do konce července 2026). Kupující tak vstupuje do již rozběhlého projektu bez nutnosti čekat na jeho zahájení.
Po dokončení stavby dojde k uzavření kupní smlouvy a převodu vlastnictví, přičemž převod probíhá formou postoupení smlouvy o budoucí kupní smlouvě, kdy kupující přebírá veškerá práva a povinnosti vůči developerovi .
Cena za postoupení této smlouvy činí 1 800 000 Kč, přičemž zbývající doplatek developerovi je přibližně 7 200 000 Kč. Financování je možné hypotečním úvěrem.
Vlasatice jsou klidnou obcí s dobrou dostupností do Brna a představují ideální kombinaci dostupného bydlení a příjemného prostředí pro rodinu.
Pro více informací nebo domluvení osobní schůzky nás neváhejte kontaktovat. Tato nemovitost je určena výhradně přímým zájemcům o koupi. Na inzerát můžete také reagovat přímo na webu Bezrealitky.
Pomocí naší hypoteční kalkulačky si můžete udělat orientační představu o výši měsíčních splátek hypotéky. O vše ostatní se pak postaráme my ve spolupráci s našimi obchodními partnery.
36 439 Kč
* Odhadovaná měsíční splátka vychází z výše úvěru Kč s pevnou úrokovou sazbou % po celou dobu trvání úvěru.
reklama
reklama
Mapa
* Umístění na mapě je na základě GPS informací dodaných realitní kanceláří.
* Pozice na mapě je pouze orientační.
Souhlas se zpracováním osobních údajů
Uživatel serveru RealityMIX.cz (dále jen „Server“) dostupného na internetové adrese (URL) https://www.realitymix.cz, který provozuje společnost DALTEN media s.r.o., se sídlem Na Harfě 916/9a, Praha 9, 190 00, IČO: 271 35 306 (dále jen „Správce“) jako provozovateli tohoto Serveru uděluje svůj výslovný souhlas v souladu s ustanovením § 5 zákona č. 101/2000 Sb. O ochraně osobních údajů a o změně některých zákonů, v platném znění (dále jen „zákon o ochraně osobních údajů“), se zpracováním uživatelem poskytnutých osobních údajů a dalších dat.
Uživatel poskytuje Správci osobní údaje v rozsahu: jméno, příjmení, e-mailová adresa, telefonický kontakt a další data, a to z důvodu projeveného zájmu o nemovitost, kde prostřednictvím služby Serveru Správce osloví Uživatel inzerenta uvedeného v detailu
nemovitosti - Bezrealitky s.r.o. (IČ 08063168) se zájmem o jeho služby.
Uživatel tyto osobní údaje poskytuje dobrovolně a bere na vědomí, že součástí služeb Správce, které Správce Uživateli poskytuje, je vyhledání všech Uživateli vyhovujících (dle parametrů - cena, typ nemovitosti, lokalita atd.) nemovitostí. Správce za tímto účelem provozuje aplikace Hlídací pes a newsletter. Tyto služby je možné z každého zaslaného emailu odhlásit. Souhlas se zpracováním osobních údajů Uživatel poskytuje Správci na dobu neurčitou s tím, že svůj udělený souhlas může Uživatel kdykoliv na drese správce info@realitymix.cz odvolat. Správce garantuje Uživateli i další práva uvedené v ustanovení §11 a §21 zákoba č. 101/200 Sb. Ve znění pozdějších předpisů.
Více informací o zpracování údajů získáte zde (realitymix.cz/zasady-ochrany-osobnich-udaju)