Exkluzivně doporučujeme ke koupi nadstandardní novostavbu rodinného domu ve Vlašimi z roku 2025 o dispozici 5+kk, se dvěma koupelnami, samostatným WC, terasou a dvojgaráží. Dům je navržen ve velmi vysokém standardu (až luxusním provedení) s důrazem na detail, kvalitní materiály, světlo a úsporný provoz.
Dominantou hlavního obytného prostoru jsou velkoformátová okna Schüco s trojskly a hliníkový HS portál, který propojuje obývací pokoj se zahradou, mimochodem tato okna jsou použita v celém domě. Komfort a bezpečí doplňují bezpečnostní hliníkové vstupní dveře, elektrické předokenní hliníkové žaluzie v kombinaci s předokenními roletami a promyšlené osvětlení včetně integrovaných LED prvků. Interiér působí čistě a moderně díky bezfalcovým interiérovým dveřím s magnetickými zámky. Podlahy jsou vinylové, obklady a dlažby velkoformátové (Itálie) a použita je prémiová sanita Hansgrohe a Laufen. Každá místnost nabízí dostatek prostoru pro vestavěné skříně a úložná řešení.
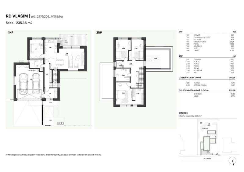
Dispozici tvoří:
1.NP: vstupní hala a chodba s místem pro vestavěné skříně, koupelna s WC, obývací pokoj s kuchyňským koutem a výstupem přes HS portál na terasu a zahradu, pracovna/pokoj pro hosty, dvojgaráž, malý skládek po schody.
2.NP: hlavní ložnice se šatnou, dva pokoje, koupelna s vanou a sprchovým koutem, samostatné WC a terasa přístupná z chodby.
Hlavní benefity, které vás budou bavit :
- Novostavba 2025
- 5+kk | 2 koupelny | samostatné WC
- Dvojgaráž
- Velkoformátová okna s trojskly + HS portál (propojení obýváku se zahradou)
- Elektrické předokenní hliníkové žaluzie + rolety
- Bioklimatická hliníková pergola + screenové rolety
- Nízké provozní náklady - nízkoenergetický dům
- TČ NIBE (vzduch/voda) + teplovodní podlahové topení v celém domě
- Příprava na FVE (fotovoltaiku)
Technické parametry:
- Nosné zdivo Ytong Lambda YQ 450 PDK
- Vytápění TČ NIBE vzduch voda + podlahové teplovodní topení
- Okna Schüco s izolačními trojskly
- Vstupní dveře hliníkové bezpečnostní
- Hliníkový HS portál
- Hliníková bioklimatická pergola se screenovými roletami
- IS vodovod, kanalizace, elektřina
- Předokenní elektricky ovládané rolety a žaluzie
Na spodní terase je bioklimatická hliníková pergola se screenovými roletami. Pozemek je připraven pro budoucí realizaci bazénu a dětského hřiště. Součástí je retenční nádrž o objemu 6 m³ připravená pro automatickou závlahu.
Vytápění zajišťuje tepelné čerpadlo NIBE (vzduch/voda) a v celém domě je teplovodní podlahové topení. Dům je nízkoenergetický a má přípravu pro instalaci fotovoltaiky (FVE).
Lokalita Vlašim nabízí klidné bydlení s kompletní občanskou vybaveností a dobrou dopravní dostupností.
Dům je aktuálně bez nábytku, a proto v prezentaci využíváme virtuální homestaging - abyste si lépe představili, jak může vypadat zařízený. Na prohlídce uvidíte reálný prostor i jeho možnosti na maximum.
Pro více informací, kompletní podklady a domluvení prohlídky mě neváhejte kontaktovat.
Cena:
17 990 000 Kč
Poznámka:
cena vč. kompletního právního i hypotečního servisu
Pomocí naší hypoteční kalkulačky si můžete udělat orientační představu o výši měsíčních splátek hypotéky. O vše ostatní se pak postaráme my ve spolupráci s našimi obchodními partnery.
72 837 Kč
* Odhadovaná měsíční splátka vychází z výše úvěru Kč s pevnou úrokovou sazbou % po celou dobu trvání úvěru.
Uživatel serveru RealityMIX.cz (dále jen „Server“) dostupného na internetové adrese (URL) https://www.realitymix.cz, který provozuje společnost DALTEN media s.r.o., se sídlem Na Harfě 916/9a, Praha 9, 190 00, IČO: 271 35 306 (dále jen „Správce“) jako provozovateli tohoto Serveru uděluje svůj výslovný souhlas v souladu s ustanovením § 5 zákona č. 101/2000 Sb. O ochraně osobních údajů a o změně některých zákonů, v platném znění (dále jen „zákon o ochraně osobních údajů“), se zpracováním uživatelem poskytnutých osobních údajů a dalších dat.
Uživatel poskytuje Správci osobní údaje v rozsahu: jméno, příjmení, e-mailová adresa, telefonický kontakt a další data, a to z důvodu projeveného zájmu o nemovitost, kde prostřednictvím služby Serveru Správce osloví Uživatel inzerenta uvedeného v detailu
nemovitosti - Bidli reality, a.s. (IČ 06790763) se zájmem o jeho služby. Tato společnost je součástí seskupení/sítě/franšízového modelu realitních kanceláří, jejich seznam můžete zobrazit kliknutím na tento odkaz.
Hypocentrum modré pyramidy - Praha (IČ ) , Hypocentrum modré pyramidy - Brno (IČ ) , Hypocentrum Modré pyramidy - Hradec Králové (IČ ) , Hypocentrum Modré pyramidy - České Budějovice (IČ ) , Hypocentrum Modré pyramidy - Pardubice (IČ ) , Hypocentrum Modré pyramidy - Plzeň (IČ ) , Hypocentrum Modré pyramidy - Ústí nad Labem (IČ ) , Hypocentrum Modré pyramidy - Ostrava (IČ ) , Hypocentrum Modré pyramidy - Olomouc (IČ ) , Bidli reality, a.s. (IČ 06790763)
Uživatel tyto osobní údaje poskytuje dobrovolně a bere na vědomí, že součástí služeb Správce, které Správce Uživateli poskytuje, je vyhledání všech Uživateli vyhovujících (dle parametrů - cena, typ nemovitosti, lokalita atd.) nemovitostí. Správce za tímto účelem provozuje aplikace Hlídací pes a newsletter. Tyto služby je možné z každého zaslaného emailu odhlásit. Souhlas se zpracováním osobních údajů Uživatel poskytuje Správci na dobu neurčitou s tím, že svůj udělený souhlas může Uživatel kdykoliv na drese správce info@realitymix.cz odvolat. Správce garantuje Uživateli i další práva uvedené v ustanovení §11 a §21 zákoba č. 101/200 Sb. Ve znění pozdějších předpisů.
Více informací o zpracování údajů získáte zde (realitymix.cz/zasady-ochrany-osobnich-udaju)