Prodej rodinného domu v Korosekách u Českých Budějovic
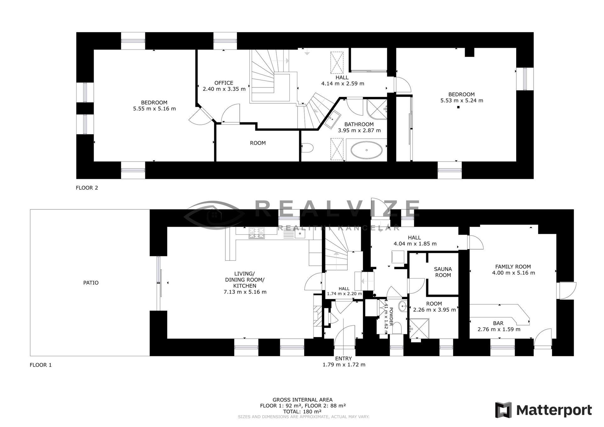
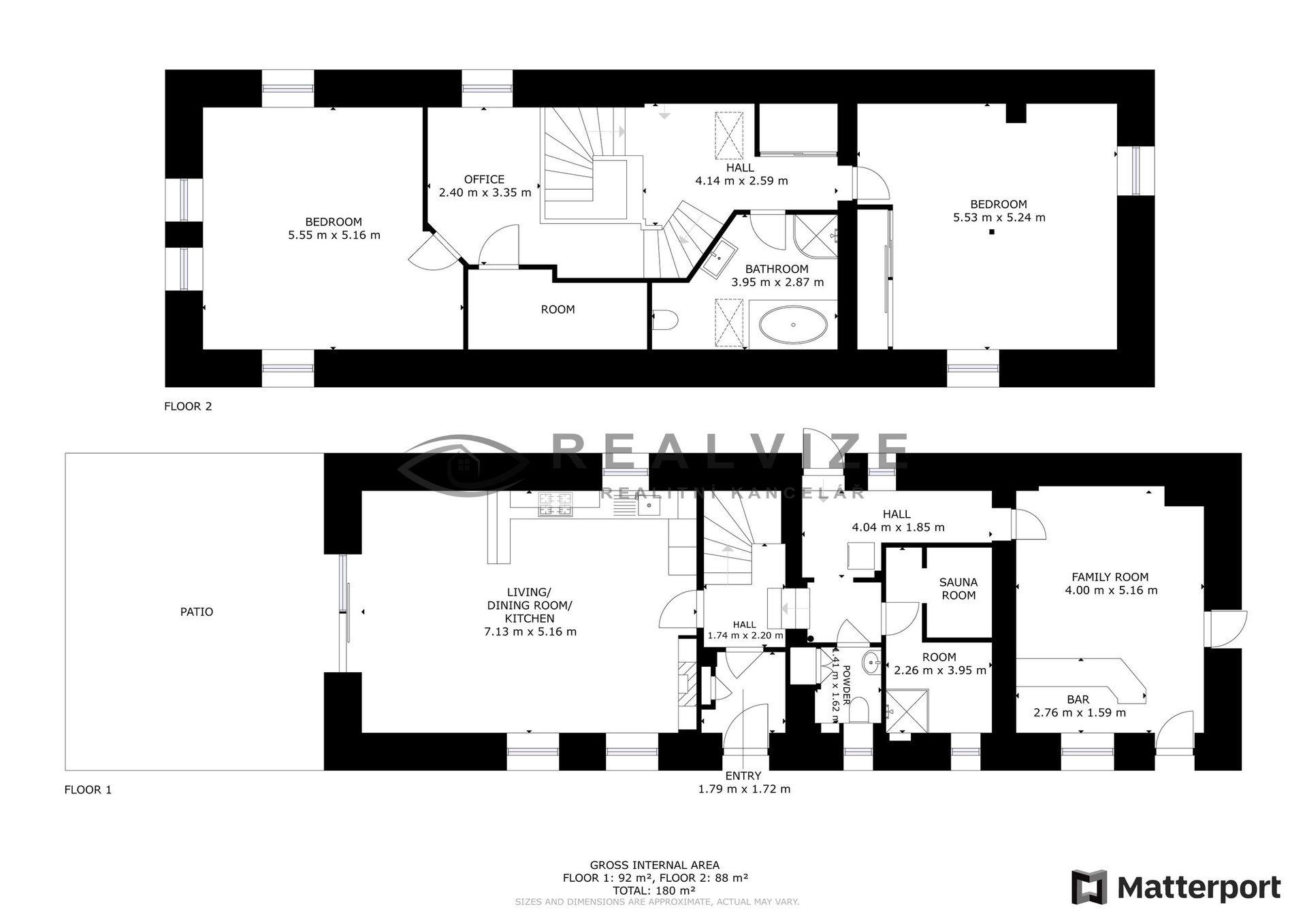
Nabízíme k prodeji samostatně stojící rodinný dům po rekonstrukci, který se nachází v klidné lokalitě Koroseky-Vrábče u Českých Budějovic. Dům má užitnou plochu 180 m², stojí na pozemku o velikosti 207 m² a je ideální pro rodinu, která hledá pohodlí, klid a minimum starostí s údržbou.
V domě najdete 4 pokoje, 2 koupelny a garáž pro jedno auto. Dům je rozložen do dvou podlaží, což umožňuje praktické a pohodlné využití prostoru.
Vytápění zajišťuje podlahové topení, topení na tuhá paliva s výměníkem, tepelné čerpadlo a fotovoltaika – to vše výrazně snižuje náklady na provoz.
Napojení na obecní vodovod, odpad řešen čtyřkomorovým septikem.
Dům se nachází ve velmi klidné lokalitě obklopené přírodou, ideální pro ty, kteří chtějí klidné bydlení bez nutnosti starat se o velký pozemek – zahrada je přesně tak akorát.
Skvělá volba pro rodinu, která hledá harmonické a udržitelné bydlení mimo městský ruch.
Více informací na vyžádání u makléře. Budeme se těšit na prohlídce.
Pomocí naší hypoteční kalkulačky si můžete udělat orientační představu o výši měsíčních splátek hypotéky. O vše ostatní se pak postaráme my ve spolupráci s našimi obchodními partnery.
52 229 Kč
* Odhadovaná měsíční splátka vychází z výše úvěru Kč s pevnou úrokovou sazbou % po celou dobu trvání úvěru.
Uživatel serveru RealityMIX.cz (dále jen „Server“) dostupného na internetové adrese (URL) https://www.realitymix.cz, který provozuje společnost DALTEN media s.r.o., se sídlem Na Harfě 916/9a, Praha 9, 190 00, IČO: 271 35 306 (dále jen „Správce“) jako provozovateli tohoto Serveru uděluje svůj výslovný souhlas v souladu s ustanovením § 5 zákona č. 101/2000 Sb. O ochraně osobních údajů a o změně některých zákonů, v platném znění (dále jen „zákon o ochraně osobních údajů“), se zpracováním uživatelem poskytnutých osobních údajů a dalších dat.
Uživatel poskytuje Správci osobní údaje v rozsahu: jméno, příjmení, e-mailová adresa, telefonický kontakt a další data, a to z důvodu projeveného zájmu o nemovitost, kde prostřednictvím služby Serveru Správce osloví Uživatel inzerenta uvedeného v detailu
nemovitosti - RK Realvize s.r.o. (IČ 19893621) se zájmem o jeho služby.
Uživatel tyto osobní údaje poskytuje dobrovolně a bere na vědomí, že součástí služeb Správce, které Správce Uživateli poskytuje, je vyhledání všech Uživateli vyhovujících (dle parametrů - cena, typ nemovitosti, lokalita atd.) nemovitostí. Správce za tímto účelem provozuje aplikace Hlídací pes a newsletter. Tyto služby je možné z každého zaslaného emailu odhlásit. Souhlas se zpracováním osobních údajů Uživatel poskytuje Správci na dobu neurčitou s tím, že svůj udělený souhlas může Uživatel kdykoliv na drese správce info@realitymix.cz odvolat. Správce garantuje Uživateli i další práva uvedené v ustanovení §11 a §21 zákoba č. 101/200 Sb. Ve znění pozdějších předpisů.
Více informací o zpracování údajů získáte zde (realitymix.cz/zasady-ochrany-osobnich-udaju)