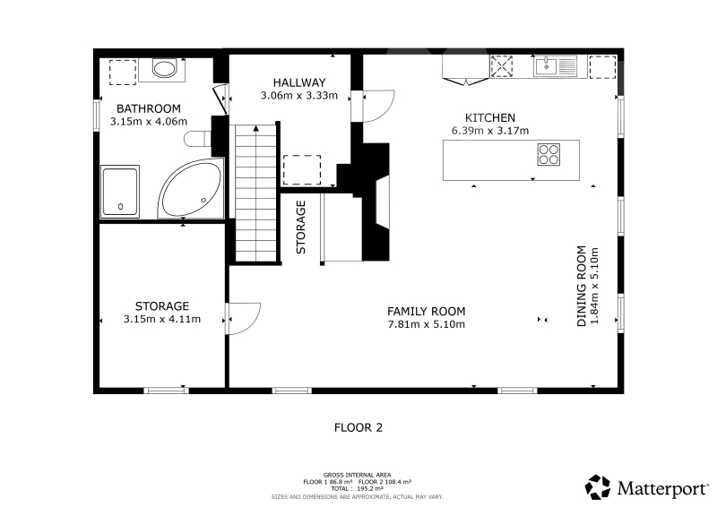
Prostorný dům s dílnou a stodolou - Sedlec u Vysokého Mýta
Nabízíme k prodeji velký dům v obci Sedlec u Vysokého Mýta, který je ideální jak pro rodinné bydlení, tak i pro podnikání. Na katastrálním úřadu veden jako zemědělská usedlost. Jedná se o třípodlažní, částečně podsklepený dům s celkovou užitnou plochou 318 m². Součástí objektu je také rozsáhlá dílna s garáží o velikosti 123 m², stodola, terasa a další přístavky, domeček třeba k pronájmu.
Dům prošel a prochází rekonstrukcí, která je již z velké části dokončena - nová střecha, plastová okna a vkusně zrekonstruované obytné patro s dřevěnými trámy, které vytvářejí útulnou a příjemnou atmosféru. Interiér doplňují dřevěné dveře a kvalitní materiály.
Vytápění je momentálně řešeno krbovými kamny a možností ležení, s možností dobudování jiného zdroje tepla dle přání nového majitele. V suterénu jsou zachovány klenby a je zde vstup do sklepa. Dům je napojen na veřejný vodovod a disponuje septikem s přepadem do veřejné kanalizace. V suterénu příprava na kotelnu.
Parkování je možné přímo na pozemku, kde se nachází garáž i velká odstavná plocha. Příjezdová cesta je obecní. Vstup pojezdová vrata. Součástí pozemku je také zahrada se skleníkem, skalkou a záhony, a menší přístavek, který lze využít například k samostatnému pronájmu nebo jako ateliér. Díky své dispozici a prostorám nabízí dům široké možnosti využití - od komfortního rodinného bydlení až po podnikatelské účely, jako je například autoservis, truhlářská nebo zámečnická dílna.
Pomocí naší hypoteční kalkulačky si můžete udělat orientační představu o výši měsíčních splátek hypotéky. O vše ostatní se pak postaráme my ve spolupráci s našimi obchodními partnery.
40 487 Kč
* Odhadovaná měsíční splátka vychází z výše úvěru Kč s pevnou úrokovou sazbou % po celou dobu trvání úvěru.
Uživatel serveru RealityMIX.cz (dále jen „Server“) dostupného na internetové adrese (URL) https://www.realitymix.cz, který provozuje společnost DALTEN media s.r.o., se sídlem Na Harfě 916/9a, Praha 9, 190 00, IČO: 271 35 306 (dále jen „Správce“) jako provozovateli tohoto Serveru uděluje svůj výslovný souhlas v souladu s ustanovením § 5 zákona č. 101/2000 Sb. O ochraně osobních údajů a o změně některých zákonů, v platném znění (dále jen „zákon o ochraně osobních údajů“), se zpracováním uživatelem poskytnutých osobních údajů a dalších dat.
Uživatel poskytuje Správci osobní údaje v rozsahu: jméno, příjmení, e-mailová adresa, telefonický kontakt a další data, a to z důvodu projeveného zájmu o nemovitost, kde prostřednictvím služby Serveru Správce osloví Uživatel inzerenta uvedeného v detailu
nemovitosti - Bidli reality, a.s. (IČ 06790763) se zájmem o jeho služby. Tato společnost je součástí seskupení/sítě/franšízového modelu realitních kanceláří, jejich seznam můžete zobrazit kliknutím na tento odkaz.
Hypocentrum modré pyramidy - Praha (IČ ) , Hypocentrum modré pyramidy - Brno (IČ ) , Hypocentrum Modré pyramidy - Hradec Králové (IČ ) , Hypocentrum Modré pyramidy - České Budějovice (IČ ) , Hypocentrum Modré pyramidy - Pardubice (IČ ) , Hypocentrum Modré pyramidy - Plzeň (IČ ) , Hypocentrum Modré pyramidy - Ústí nad Labem (IČ ) , Hypocentrum Modré pyramidy - Ostrava (IČ ) , Hypocentrum Modré pyramidy - Olomouc (IČ ) , Bidli reality, a.s. (IČ 06790763)
Uživatel tyto osobní údaje poskytuje dobrovolně a bere na vědomí, že součástí služeb Správce, které Správce Uživateli poskytuje, je vyhledání všech Uživateli vyhovujících (dle parametrů - cena, typ nemovitosti, lokalita atd.) nemovitostí. Správce za tímto účelem provozuje aplikace Hlídací pes a newsletter. Tyto služby je možné z každého zaslaného emailu odhlásit. Souhlas se zpracováním osobních údajů Uživatel poskytuje Správci na dobu neurčitou s tím, že svůj udělený souhlas může Uživatel kdykoliv na drese správce info@realitymix.cz odvolat. Správce garantuje Uživateli i další práva uvedené v ustanovení §11 a §21 zákoba č. 101/200 Sb. Ve znění pozdějších předpisů.
Více informací o zpracování údajů získáte zde (realitymix.cz/zasady-ochrany-osobnich-udaju)