Nabízím k prodeji moderní rodinný dům o dispozici 5+kk a užitné ploše 127 m² (+ garáž 30 m²), situovaný na mimořádně prostorném pozemku o rozloze 2 694 m² v klidné obci Vranov. Nemovitost zaujme především kombinací komfortního bydlení, dostatku soukromí a velkorysého venkovního prostoru, který nabízí široké možnosti využití – od relaxace, sportovního vyžití přes zahradničení až po případné další úpravy dle vašich představ. Dům je ideální volbou pro rodinu hledající klidné bydlení v přírodě s dobrou dostupností do města.
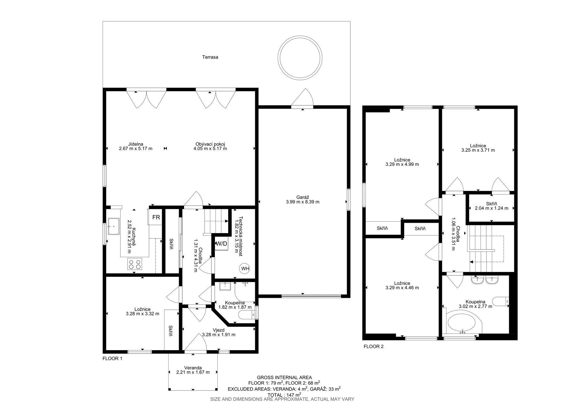
Dispozičně je dům velmi prakticky řešen. V přízemí se nachází prostorná předsíň, pracovna, koupelna se sprchovým koutem a toaletou, technická místnost, ve které najdete elektrokotel a velkokapacitní bojler, dále světlý obývací pokoj propojený s plně vybavenou kuchyní. Součástí přízemí je také garáž o velikosti 30 m² s pracovním ponkem a úložným prostorem pod krovem. V patře najdete druhou koupelnu s vanou, toaletou a dvěma umyvadly, dva dětské pokoje a ložnici se samostatnou šatnou. Velkým benefitem je rozlehlý pozemek, ideální pro zahradničení, rodinné aktivity, relaxaci. Disponuje mimo jiné terasou, posezením a bazénem. Dům má vlastní studnu a má velmi přijatelné provozní náklady, které se vejdou do 4000,- měsíčně, nejen díky zateplení a dvěma solárním panelům, které ohřívají teplou vodu.
Obec Vranov nabízí příjemné a klidné bydlení s dobrou občanskou vybaveností, ideální pro rodinný život i každodenní pohodu. Přímo u domu se nachází autobusová zastávka s návazností na vlakové spojení. Velkým benefitem je také výborná dostupnost do Prahy – na okraj metropole se autem dostanete přibližně za 20 minut, na metro C Opatov zhruba za 30 minut díky rychlému napojení na dálnici D1. Veřejnou dopravou lze pohodlně cestovat například kombinací autobus + vlak přes Čerčany, přičemž celková doba do centra Prahy se pohybuje přibližně 60 minut.
Výborná je také dostupnost do Benešova, kam se autem dostanete přibližně za 10–15 minut, veřejnou dopravou pak zhruba za 20 minut. V docházkové vzdálenosti od domu se nachází tenisový kurt, rybník, potraviny a hospodu. Lokalita tak nabízí ideální rovnováhu mezi klidem venkova, prostorem pro rodinu a výbornou dostupností hlavního města.
Pomocí naší hypoteční kalkulačky si můžete udělat orientační představu o výši měsíčních splátek hypotéky. O vše ostatní se pak postaráme my ve spolupráci s našimi obchodními partnery.
44 496 Kč
* Odhadovaná měsíční splátka vychází z výše úvěru Kč s pevnou úrokovou sazbou % po celou dobu trvání úvěru.
Uživatel serveru RealityMIX.cz (dále jen „Server“) dostupného na internetové adrese (URL) https://www.realitymix.cz, který provozuje společnost DALTEN media s.r.o., se sídlem Na Harfě 916/9a, Praha 9, 190 00, IČO: 271 35 306 (dále jen „Správce“) jako provozovateli tohoto Serveru uděluje svůj výslovný souhlas v souladu s ustanovením § 5 zákona č. 101/2000 Sb. O ochraně osobních údajů a o změně některých zákonů, v platném znění (dále jen „zákon o ochraně osobních údajů“), se zpracováním uživatelem poskytnutých osobních údajů a dalších dat.
Uživatel poskytuje Správci osobní údaje v rozsahu: jméno, příjmení, e-mailová adresa, telefonický kontakt a další data, a to z důvodu projeveného zájmu o nemovitost, kde prostřednictvím služby Serveru Správce osloví Uživatel inzerenta uvedeného v detailu
nemovitosti - VADAS reality s.r.o. (IČ 09334831) se zájmem o jeho služby.
Uživatel tyto osobní údaje poskytuje dobrovolně a bere na vědomí, že součástí služeb Správce, které Správce Uživateli poskytuje, je vyhledání všech Uživateli vyhovujících (dle parametrů - cena, typ nemovitosti, lokalita atd.) nemovitostí. Správce za tímto účelem provozuje aplikace Hlídací pes a newsletter. Tyto služby je možné z každého zaslaného emailu odhlásit. Souhlas se zpracováním osobních údajů Uživatel poskytuje Správci na dobu neurčitou s tím, že svůj udělený souhlas může Uživatel kdykoliv na drese správce info@realitymix.cz odvolat. Správce garantuje Uživateli i další práva uvedené v ustanovení §11 a §21 zákoba č. 101/200 Sb. Ve znění pozdějších předpisů.
Více informací o zpracování údajů získáte zde (realitymix.cz/zasady-ochrany-osobnich-udaju)