Prodej stavebních pozemků o výměře 13.327 m2 – 11 parcel. Nepomuk.
Představujeme nově vzniklou lokalitu určenou pro výstavbu 11. rodinných domů o celkové výměře 13.327 m2!
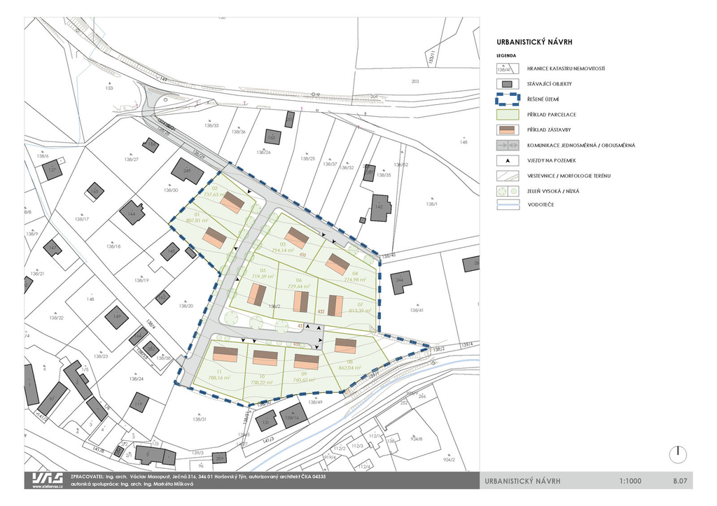
Jedná se o zcela novou lokalitu o 11 parcelách v obci Vrčeň, ležící cca 3km od Nepomuka.
Dle územního plánu je lokalita Vrčeň Z03 určena pro výstavbu rodinných domů. Předmětem prodeje jsou pozemky p.č.: 139/1, 138/2, 138/29,138/28, 139/34 o celkové výměře 13.327 m2.
V lokalitě již byla zpracována územní studie, která je schválená zastupitelstvem obce. Dále pak stanovisko Povodí Vltavy a vyjádření od Kanalizace a Vodovody Starý Plzenec a.s., ohledně dostatečné kapacity vodovodu.
V lokalitě je také naplánována obecní kanalizace, do její realizace bude využívána k rodinným domům DČOV se zásakem (viz. stanovisko Povodí Vltavy).
Na budoucím investorovi bude lokalitu zasíťovat a tyto pozemky prodat nebo na nich postavit nové RD, případně investici kombinovat.
Pro jakékoliv další informace kontaktujte makléře nebo si zavolejte rovnou o prohlídku. Uvedená cena v inzerci nezahrnuje DPH. Prodej od plátce DPH. Uvedená cena je bez DPH.
Jedinečná investice, DOPORUČUJEME!
Cena:
5 480 000 Kč
Poznámka:
Cena je vč. kompletního právního servisu. K ceně bude připočteno DPH.
Pomocí naší hypoteční kalkulačky si můžete udělat orientační představu o výši měsíčních splátek hypotéky. O vše ostatní se pak postaráme my ve spolupráci s našimi obchodními partnery.
22 187 Kč
* Odhadovaná měsíční splátka vychází z výše úvěru Kč s pevnou úrokovou sazbou % po celou dobu trvání úvěru.
Uživatel serveru RealityMIX.cz (dále jen „Server“) dostupného na internetové adrese (URL) https://www.realitymix.cz, který provozuje společnost DALTEN media s.r.o., se sídlem Na Harfě 916/9a, Praha 9, 190 00, IČO: 271 35 306 (dále jen „Správce“) jako provozovateli tohoto Serveru uděluje svůj výslovný souhlas v souladu s ustanovením § 5 zákona č. 101/2000 Sb. O ochraně osobních údajů a o změně některých zákonů, v platném znění (dále jen „zákon o ochraně osobních údajů“), se zpracováním uživatelem poskytnutých osobních údajů a dalších dat.
Uživatel poskytuje Správci osobní údaje v rozsahu: jméno, příjmení, e-mailová adresa, telefonický kontakt a další data, a to z důvodu projeveného zájmu o nemovitost, kde prostřednictvím služby Serveru Správce osloví Uživatel inzerenta uvedeného v detailu
nemovitosti - Zdeněk Polesný (IČ 76081583) se zájmem o jeho služby.
Uživatel tyto osobní údaje poskytuje dobrovolně a bere na vědomí, že součástí služeb Správce, které Správce Uživateli poskytuje, je vyhledání všech Uživateli vyhovujících (dle parametrů - cena, typ nemovitosti, lokalita atd.) nemovitostí. Správce za tímto účelem provozuje aplikace Hlídací pes a newsletter. Tyto služby je možné z každého zaslaného emailu odhlásit. Souhlas se zpracováním osobních údajů Uživatel poskytuje Správci na dobu neurčitou s tím, že svůj udělený souhlas může Uživatel kdykoliv na drese správce info@realitymix.cz odvolat. Správce garantuje Uživateli i další práva uvedené v ustanovení §11 a §21 zákoba č. 101/200 Sb. Ve znění pozdějších předpisů.
Více informací o zpracování údajů získáte zde (realitymix.cz/zasady-ochrany-osobnich-udaju)